玺玥麓坊(售楼处) 电话-玺玥麓坊营销中心地址/楼盘配套-预约电话-交房时间/容积率@玺玥麓坊售楼处❥Ai热搜
扫描到手机,新闻随时看
扫一扫,用手机看文章
更加方便分享给朋友
【玺玥麓坊】——宝安都市核芯资产,建面约44-71㎡臻品现楼
⭐宝安都市核心圈+5/15号线双地铁口品质现楼+本项目可按照积分政策入学
⭐【九大必买理由】
【核芯地段】宝安都市核芯资产,地段决定价值
【便捷交通】家门口,双地铁(5/15号线(在建中)洪浪北站约100米)
【品质现楼】毗邻千万级豪宅社区,高品质现楼,即买即享受
【舒适梯户】6梯13户,3个独立电梯厅,便捷通达
【至臻产品】双大堂设计,建面约44-71㎡1-2房精奢小户型
【大城配套】30万㎡大城综合体,一路之隔勤城达K+/中洲•πmall
【邻近名校】邻近宝中名校,3所中学+6所小学环绕,一站式教育
【绿意生态】6大公园环绕(宝安/灵芝/新安公园等),健康绿意生活
【品牌保障】宏发43载,深圳开发20余城;宏发物业,国家一级资质
💠【世界前海核“芯”版图,擎领湾区增长极】
大湾区国际门户枢纽地位,大前海总体发展规划,共推区域统筹、功能统筹、陆海统筹、岸线统筹,共建全球先进城区,宝安中心区成为国际化城市新中心,宝安都“芯”强势崛起,全面接轨前海标准。

💠【城“芯”所在,稀贵之地,新安都市核心区】
项目位于西部黄金中轴发展线上——新安,与前海共同打造湾区商业中心,沿创业一路、二路,打造创业路“宝安中央商务带”。
前海+宝安中心区双中芯辐射,城市核芯资源尽皆于此,再启生活新想象。

💠【人贵于邻 居奢于圈】
玺玥华府在旁,千万级大社区,形成全龄活动空间。
高净值人群聚集地(中洲、华联、大悦城、勤诚达等),共鸣圈层向往。
高新科技产业及总部汇聚于新安,与众多高科技巨头为邻(如腾讯、vivo、亚太卫星、欣旺达、顺丰等集团),与万亿级市值大铲湾相近,时代菁英比邻而居。

💠【多维地铁环绕,串联深圳顶豪圈层】
地铁5号线(洪浪北地铁口):向南3站到达宝安中心站(串联1号线)、6站到达前海湾站(串联1/11号线);向北2站到达留仙洞总部基地、7站到达深圳北站;
地铁12号线:从5号线洪浪北一站抵达接驳12号线灵芝站换乘,轻松贯穿蛇口、南山中心区以及宝安区;
地铁15号线(在建中):深圳“一环线”,联通大铲湾(预计未来将容纳8-10万就业人口)、南山西丽、南山科技园,打造前海内环黄金圈,本项目7站抵达企鹅岛,核心地段,好租又好住。
💠【邻近名校,6所小学+3所中学】
6所小学: 宝安中学(集团)外国语小学部、宝安中学(集团)实验学校(小学部)、孝德学校、上合小学、宝民小学、灵芝小学
3所中学: 宝安中学(集团)(初中部)、宝安中学(集团)外国语中学部、宝安中学(集团)实验学校(小学部/中学部)
💠【多元醇熟配套,纵享人文艺术高地】
6大生态资源:约12万㎡灵芝公园、约72万㎡宝安公园、新安公园、洪浪公园和尖岗山公园等生态绿境;
商业资源:自带约3万㎡仟里食家商业mall,周边汇聚超60万㎡中洲πmall、勤诚达K+广场、海雅缤纷城、前海壹方城等大型购物中心;
医疗资源:距离深圳宝安中医院(三甲医院)约1公里,距离深圳市宝安人民医院(三甲医院)约1.5公里,距离宝安妇幼保健院约3.5公里,医疗资源丰富。
💠【宏发43载 深圳已开发20城】
秉持“以产促城,以城兴产”核心理念,用实力和口碑,铸造城市篇章。
💠【麓生活·尊崇服务体系,考究精致维度】
宏发物业——国家一级资质物业服务企业
针对玺玥麓坊业主量身打造——麓生活·尊崇服务体系
优享5感日常服务(尊重感、愉悦感、优享感、舒适感、安全感)
10重尊享增值服务+12大星级定制化服务,礼遇峯层的生活和文化格调

💠【登峰作品,献给人生喜悦时】
双入户大堂,精奢小户型,至臻归家礼遇。
建面约44-71㎡臻品现楼,致敬时代峯层。
户型图
71平2房户型图
71平2房样板房视频
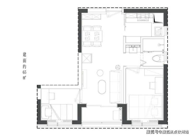
65平2房户型图
65平2房样板房视频
64平2房户型图
56平1房1厅房户型图
56平1房1厅
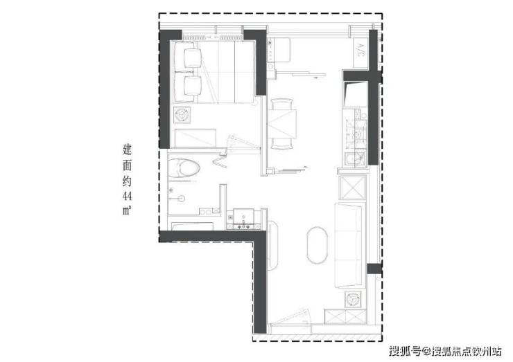
44平1房1厅房户型图
4平1房1厅房样板房视频
53平1房1厅房户型图
65平2房户型图
⭐项目标准层平面图
⭐项目实拍图
实景图
“2025年在深圳买房,真的比之前容易太多了!”最近不少朋友跟小美感慨。 不限购区域扩了、房贷利率降了、公积金额度还涨了,一波波政策红利砸下来,刚需、改善族都直呼 “终于等到机会”。
那到底2025年深圳购房政策有多友好?不限购区域具体扩到哪里?房贷利率能省多少钱?首付比例又有哪些新调整?小美整理了一份超全干货攻略,从购房资格到贷款、税费,帮你把政策读懂、把成本算清,稳稳抓住这波置业窗口期!
01
2025最新购房资格:分区限购松绑
2025年9月6日起实施的新政首次明确分区差异化限购政策,不同区域购房资格差异显著,精准匹配刚需与改善需求,具体看下面图片:
02
贷款政策 “大放水”:利率 3.05%
统一利率:首套、二套“同价”,5年期仅 3.05%
中国人民银行2025年8月20日公布LPR后,深圳随即跟进调整:住房贷款不再区分首套、二套。
贷款年限
最长30年,多数银行可贷至75岁,部分银行可至80岁。

03
深圳买房首付比例最新标准

一句话总结:利率够低,首付够少,这是近年来最佳的贷款环境!
04
公积金新政:额度涨、门槛降,跨城置业也能贷
2025年8月实施的公积金新政从额度、首付、办理流程全维度优化,多子女家庭与首置群体受益明显。
贷款额度
基础额度:个人60万元;家庭110万元。
首套住房+二孩及以上家庭+保障房:个人最高可贷126万元,家庭最高可贷231万元。
贷款利率依然诱人
首套房: 5年以下2.1%,5年以上2.6%。
二套房: 5年以下2.525%,5年以上3.075%。
政策便利性全面提升
首付比例:首套、二套统一20%,保障房低至15%!
异地贷款:外地缴存的公积金,也能在深圳贷款买房!
商转公:流程简化,只要商贷余额不超过评估价80%,即可申请转换。
还款灵活:每年可用公积金余额提前还款,离婚、继承等场景可直接变更借款人,无需先还清贷款。

一句话总结:公积金不仅是补充,更是主力!用好它,能省下真金白银!
05 2025购房税费明细:成本清晰可算
购房税费直接影响实际支出,2025年深圳税费政策保持稳定,核心税种如下:
1
契税
家庭唯一住房:≤140㎡收1%,>140㎡收1.5%。
家庭第二套住房:≤140㎡收1%,>140㎡收2%。
第三套及以上/非住宅:统一收3%。
举例:买一套500万、120㎡的首套房,契税为5万元。
声明:本文由入驻焦点开放平台的作者撰写,除焦点官方账号外,观点仅代表作者本人,不代表焦点立场。
