深圳@海智云谷售楼处电话_海智云谷_海智云谷-24小时电话详情丨海智云谷-售楼处地址
扫描到手机,新闻随时看
扫一扫,用手机看文章
更加方便分享给朋友
深圳——海智云谷【2025最新楼盘详情】
官方详情咨询/预约看房热线:400-102-8162【已认证】(营销中心)
盐田【海智云谷】售楼中心电话:400-102-8162【售楼处24小时电话】【已认证】
▼▼Vip贵宾置业====欢迎来电预约尊享内部折扣====匠心钜制恭迎品鉴!
海智云谷开发商售楼处售楼处电话:400-102-8162(营销中心)【VIP贵宾专线】
海智云谷楼盘最新介绍:备案价、折扣、学区、地铁、交通、户型图、特价房、优缺点、得房率、优惠活动、小区图片、开盘时间、交房时间、周边配套、最新详情等咨询。
海纳百川盐田区面积约75平方公里,是深圳最小的区,但盐田拥有着得天独厚的区位优势,毗邻港澳,面向南海,坐拥249.5平方公里海域面积、30.2公里海岸线,是深圳东部建设世界级海岸带的重要组成部分。
按照《盐田区创建全球海洋中心城市核心区实施方案(2022—2025年)》规划部署,盐田区将抢抓“双区”驱动、“双区”叠加和“双改”示范重大历史机遇,把握深圳建设全球海洋中心城市有利契机,深入推进产业兴盐、创新驱动战略,深度对接香港北部都会区发展策略,全力打造全球海洋中心城市核心区,成为“一带一路”全球贸易关键节点,建成海洋高端产业集聚区、海洋科技创新引领区、粤港澳大湾区海洋经济合作区和海洋生态文明建设示范区。
根据规划,到2025年,盐田将形成千亿级产值的海洋产业集群,海洋生产总值占地区生产总值的比重达到20%。当前,海洋经济已经成为沿海地区经济发展的新动能,对于“小而美”的盐田而言,打好海洋牌,将是支撑未来发展空间的关键所在。而处于盐田核心区位的14万㎡海洋产业创享中心——海智云谷正是关键中的关键。
智汇未来海智云谷位于盐田区中央核心商务区沙头角片区,毗邻盐田区政府,直临深盐路主干道,坐拥地铁8号线盐田港西站、海山站双地铁口,东向盐坝、盐排双高速连接龙岗、大鹏,西向深盐二通道直达罗湖、福田,30分钟快速通达各区中心,并享沙头角、莲塘双口岸接驳香港优势。
项目凝聚盐田产业力量,顺应海洋经济生态,打造盐田首个海洋产业综合体项目,汇聚海洋物流、海洋商贸、海洋新兴技术、海洋文化创意、海洋金融服务、海洋科技服务等全产业链企业,覆盖从创业、孵化、加速成长到集团总部的企业全生命发展周期,以创新共享、智慧共赢,构筑14万㎡海洋产业创享中心,引领海洋经济腾飞。
海智云谷涵盖约5.67万㎡研发办公、1.8万㎡配套宿舍、0.6万㎡配套商业以及1.17万㎡住宅等多元活力业态组合,为海洋新兴产业企业提供充裕的发展空间,充分满足客户全方位需求。
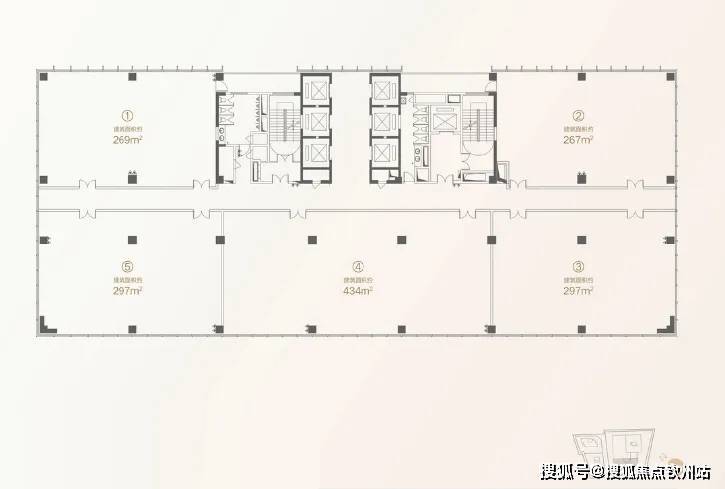
研发办公 创享海洋经济梦想研发办公A座 约2.7万㎡,22层,标准层约1565㎡,每层5户,户型面积区间约267-434㎡,方正实用,可灵活组合,层高4m,荷载300kg/㎡。
研发办公B座 约2.8万㎡,23层,标准层约1570㎡,层高4m,荷载300kg/㎡,每层4户,户型面积区间约352-432㎡,其中2户配私享阳台,每层设双共享阳台,顶层超大景观阳台。
配套宿舍 与美好不期而寓秉承生态、舒适、便捷理念打造园区配套宿舍约1.8万㎡,共390户,户型实用率达74.5%,包括40㎡实用套间、45㎡创意居室、73㎡温馨两房等三种户型,满足园区及周边居住配套需求,邂逅工作与生活的从容不迫。
精粹商业 园享活力配套双首层立体商业约6000㎡,融合餐饮、零售及生活配套等业态,营造内生、休闲、开放的活力商业氛围,满足园区办公、居住人群需求,不出园区便可畅享优越商务环境与品质生活。
————【海智云谷 】————
售楼中心热线: 400-102-8162(售楼处)【VIP贵宾专线】
本文内容为广告推广,涉及房价或现有房源可能出现变更,请致电详询并以售楼部为准。
为了您更好的看房体验,可致电预约!(置业顾问一对一对接、项目定位预留停车位)
免责:本文部分内容来自网络,如有侵权,请联系删除。
声明:本文由入驻焦点开放平台的作者撰写,除焦点官方账号外,观点仅代表作者本人,不代表焦点立场。
