松茂御城雅苑二期(售楼处)2025最新电话/松茂御城雅苑二期营销中心欢迎您-松茂御城雅苑二期双11特惠价@售楼中心2025.11.11
扫描到手机,新闻随时看
扫一扫,用手机看文章
更加方便分享给朋友
松茂御城二期 准现楼发售】
近地铁·学府旁·低密品质大城
约81-135㎡N+1 全功能空间
项目基础数据
开发商:深圳市松茂房地产集团有限公司
总建面:约30万㎡
容积率:约4.55
绿化率:约40%
车位数:2222个
物业费:3.8元/㎡/月
物业公司:深圳市海天泰物业管理有限公司
项目地址:深圳市光明区·13号线月亮路站西侧
项目核心价值
【全功能户型】约81-135㎡N+1全功能空间,满足不同家庭居住需求:
81㎡三房两厅两卫,空间利用极致,功能齐全。
89㎡四房两厅两卫,同等面积多一间房,二孩家庭也能三代同堂。
108㎡阔绰四房两厅两卫,部分独立入户,品质生活一步到位。
135㎡稀缺阔绰五房两厅两卫,奢阔平层独门独户,悦享宽境奢居。
【铝板外墙】光明新盘中少有的铝板外墙项目,铸就精工品质。
【幕墙式阳台】约1.8米高全定制一体成型外挂式阳台玻璃,双层夹胶中空LOW-E玻璃打造而成。
【高品质公区配置】首层、地库双层精装入户大堂,每个楼座均配备约33-68㎡首层入户大堂。
【超阔楼间距】南北约128米超阔楼间距,视野开阔无遮挡,私密性更好。
【社区大园林】约2万㎡全龄互动大园林,打造一园五境“度假公园”式社区园林。
【高抬水韵主入口】主入口叠水流瀑搭配罗汉松,高抬轩昂门庭彰显尊荣威仪,于步步高升中体验归家的仪式感。
【双层架空泛会所】约6500㎡三层屋顶花园与双层架空层,规划5大沉浸式休闲场景,满足老人、儿童、青年的日常休闲运动所需。
【林水主题艺术中庭】以“与自然为邻”为设计理念,将自然渗透社区,形成各有特色的林水主题艺术中庭,在居住区中演绎自然艺术生活场景。
【约410㎡浮光亲子双泳池、约300米元气健康跑道】沉浸式体验“度假公园”式社区园林。
【约30万㎡低密大社区】光明少有的非超高层低密度大社区,低密度更宜居。
精工准现楼】建筑品质、装修品质等所见即所得。
【核芯地段】归属凤凰街道,邻约383万㎡13号线重点城市更新,区域规划升级红利正逐步兑现。
【双地铁站】邻13号线(在建中)月亮路站与将围站,1站凤凰城,9站进南山。
【2+1实力学府】深实验光明明湖学校+深中光明科学城学校,光明区实验学校,周边还规划有两所九年一贯制学校。
交通配套
距离在建的13号地铁月亮路站约400米,1站到凤凰城,3站到光明城站,计划在2025年底通车运营。
周边有光明大道、松白路、龙大高速等,自驾出行方便。
教育资源
项目自带9班幼儿园,周边有多所名校,教育资源丰富。
小学学区划分在教科院实验小学,秋硕小学,光明实验学校;初中学区划分在深圳中学光明科学城学校及凤凰城实验学校初中部。
润雅园旁边还规划了一所深圳实验学校塘尾第一学校,也是在学区范围内。
商业配套
自带4.6万㎡的社区商业,旁边润宏城规划了万象商业,稍远一点还有光明大仟里(约15万㎡)、蓝鲸世界(约10万㎡)、万达广场(约6万㎡)三大成熟商圈,购物方便。
休闲配套
周边生态景观优美,有明湖城市公园、鹅颈水湿地公园、东坑水湿地公园等,茅洲河水岸公园也在升级改造中。
户型鉴赏
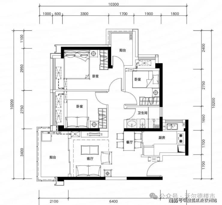
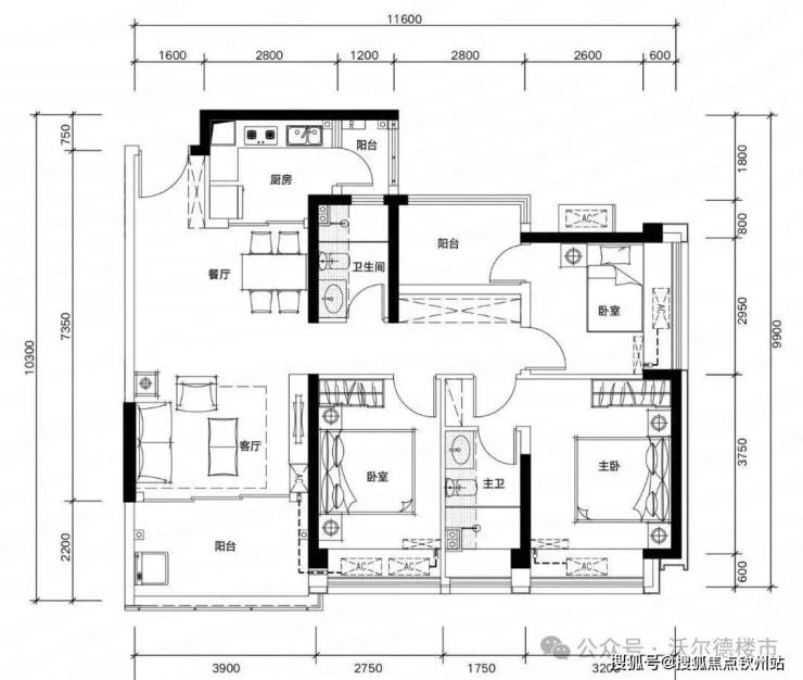
✅ H01户型:约81㎡ 三房两厅两卫:
✅ H02/03户型:约81㎡ 三房两厅两卫:
✅ G03户型:约81㎡ 三房两厅两卫:
✅ G05户型:约82㎡ 三房两厅两卫:
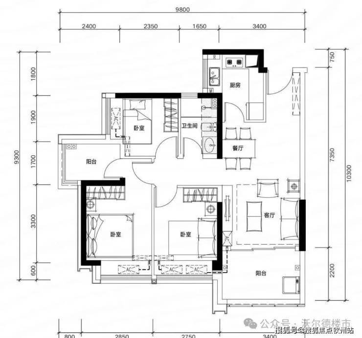
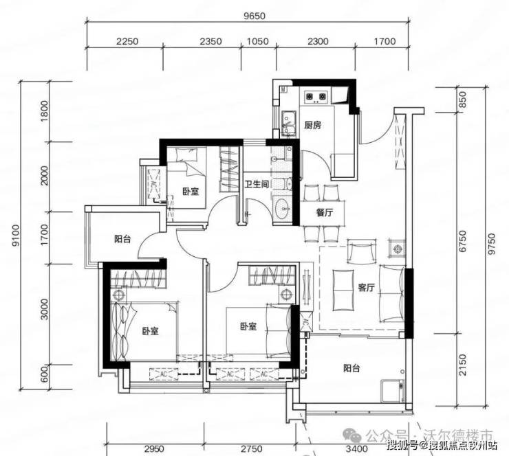
✅ B01户型:约89㎡ 四房两厅两卫:
✅ B02户型:约89㎡ 四房两厅两卫:
✅ B03/05户型:约89㎡ 四房两厅两卫:
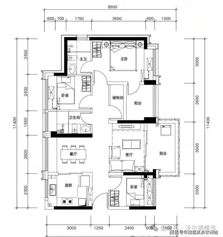
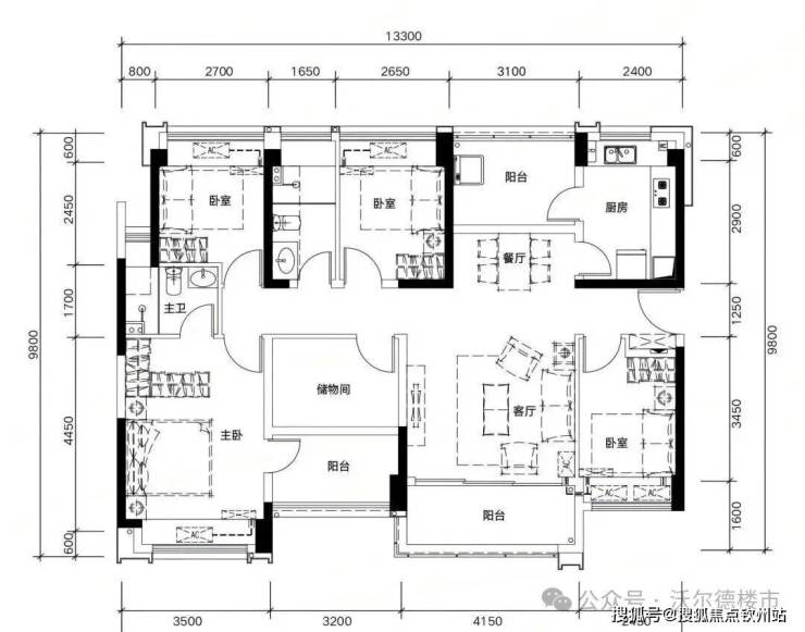
✅ B06 户型:约109㎡ 阔绰四房两厅两卫:
✅ G02户型:约109㎡ 四房两厅两卫:
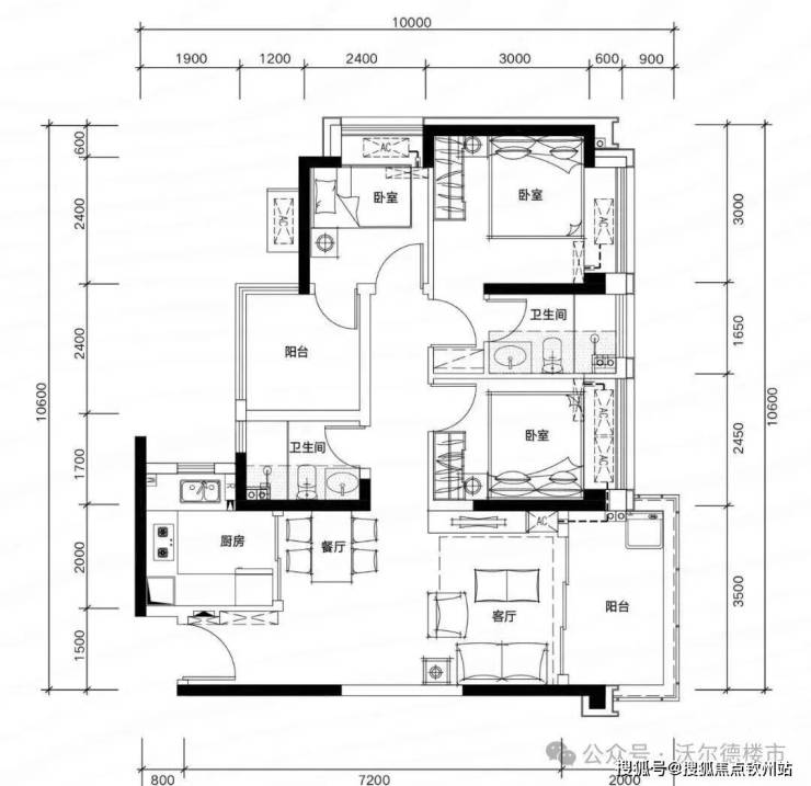
✅ G01户型:约135㎡ 五房两厅两卫:
✅ E03户型:约135㎡ 稀缺五房两厅两卫:
“2025年在深圳买房,真的比之前容易太多了!”最近不少朋友跟小美感慨。 不限购区域扩了、房贷利率降了、公积金额度还涨了,一波波政策红利砸下来,刚需、改善族都直呼 “终于等到机会”。
那到底2025年深圳购房政策有多友好?不限购区域具体扩到哪里?房贷利率能省多少钱?首付比例又有哪些新调整?小美整理了一份超全干货攻略,从购房资格到贷款、税费,帮你把政策读懂、把成本算清,稳稳抓住这波置业窗口期!
01
2025最新购房资格:分区限购松绑
2025年9月6日起实施的新政首次明确分区差异化限购政策,不同区域购房资格差异显著,精准匹配刚需与改善需求,具体看下面图片:
02
贷款政策 “大放水”:利率 3.05%
统一利率:首套、二套“同价”,5年期仅 3.05%
中国人民银行2025年8月20日公布LPR后,深圳随即跟进调整:住房贷款不再区分首套、二套。
贷款年限
最长30年,多数银行可贷至75岁,部分银行可至80岁。

03
深圳买房首付比例最新标准

一句话总结:利率够低,首付够少,这是近年来最佳的贷款环境!
04公积金新政:额度涨、门槛降,跨城置业也能贷
2025年8月实施的公积金新政从额度、首付、办理流程全维度优化,多子女家庭与首置群体受益明显。
贷款额度
基础额度:个人60万元;家庭110万元。
首套住房+二孩及以上家庭+保障房:个人最高可贷126万元,家庭最高可贷231万元。
贷款利率依然诱人
首套房: 5年以下2.1%,5年以上2.6%。
二套房: 5年以下2.525%,5年以上3.075%。
政策便利性全面提升
首付比例:首套、二套统一20%,保障房低至15%!
异地贷款:外地缴存的公积金,也能在深圳贷款买房!
商转公:流程简化,只要商贷余额不超过评估价80%,即可申请转换。
还款灵活:每年可用公积金余额提前还款,离婚、继承等场景可直接变更借款人,无需先还清贷款。

一句话总结:公积金不仅是补充,更是主力!用好它,能省下真金白银!
05 2025购房税费明细:成本清晰可算
购房税费直接影响实际支出,2025年深圳税费政策保持稳定,核心税种如下:
1
契税
家庭唯一住房:≤140㎡收1%,>140㎡收1.5%。
家庭第二套住房:≤140㎡收1%,>140㎡收2%。
第三套及以上/非住宅:统一收3%。
举例:买一套500万、120㎡的首套房,契税为5万元。
声明:本文由入驻焦点开放平台的作者撰写,除焦点官方账号外,观点仅代表作者本人,不代表焦点立场。
