金光华龙岸·君粼叠墅 2025最新电话(售楼处)首页网站@金光华龙岸·君粼叠墅 营销中心@金光华龙岸·君粼叠墅 欢迎您-楼盘详情-配套-户型-地址@售楼处
扫描到手机,新闻随时看
扫一扫,用手机看文章
更加方便分享给朋友
【项目指标】
• 开发商:深圳市金光华地产开发有限公司。
• 用地面积:99046.5平方米。
• 容积率:约2.0。
• 绿化率:60%。
• 洋房产品面积:大约178㎡(现楼交付)。
• 高层产品面积:大约86-176平方米(精装期房)、84-177平方米(毛坯现楼)。
• 别墅产品面积:约206-258㎡。
聚焦“低密湖山+双CBD核芯”双重价值,严格规避重复表述并强化稀缺属性:
金光华圳央墅区|天赋湖山传世府,双芯交汇定鼎湾区
当城市繁华与自然谧境在此交融,一座容积率仅2.0的湖山墅区正重塑深圳人居高度。27载金光华集团,以超150万㎡大城版图,于龙华福田双CBD轴心匠造传世之作——圳央墅区。这里不仅是居所,更是湾区塔尖圈层的精神原乡。
双芯交汇,执掌湾区黄金动脉
踞守福田CBD与深圳北站商务区双核芯黄金中轴,拥享“1小时大湾区生活圈”:
五轨立体交通:举步光雅园站、南坑站双地铁口,22号线(在建)纵贯南北,10号线2站直抵福田,5号线3站速达南山
双枢纽引擎:深圳北站(高铁)+五和站(深大/深惠/深广城际规划中)联动,高效接驳湾区11城
路网升级红利:民乐路全面通车后,5分钟直抵梅观高速,迅捷畅达全城核心
万亿产业聚能,擎动区域价值
坐拥四大千亿级产业集群:
深国际·华南数字谷(建面250万㎡)比肩香蜜湖金融中心
2800万㎡华为总部基地领衔坂雪岗科技城
160万㎡星河WORLD产城融合体
梅林-彩田信息科技总部基地
天赋四湖一山,私藏6万㎡森境湖居
以约60%绿化率匠造“林风山云”四境园林,成就深圳罕见的低密绿洲:
外揽自然瑰宝:银湖山、塘朗山双脉为屏,民治/民乐/雅宝/南坑四湖环伺
内蕴湖居美学:约5300㎡龙栖湖为核心,延展约6万㎡台地园林,350米超阔楼间距引风纳景
全龄交互空间:风雨连廊串联阳光车库、生日轰趴馆、贵宾宴会厅,诠释礼序与温度
国际大师联袂,精铸墅境宽宅
由全球酒店设计榜首CCD操刀室内,山水比德执笔园林,以“歌剧院式布局”实现聚气藏风:
▍建面约86-176㎡墅境宽宅
空间革命:两梯三户低密配置,全南向户型搭载多阳台露台,拓展率达90%以上
精工细节:3mm米黄铝板立面,LOW-E双层中空玻璃幕墙,德系精工+Miele厨卫系统
智能奢居:全屋智能安防系统,大面宽落地窗延展270°湖山视野
▍限量珍藏产品
空中墅院178㎡(现楼)|世家臻墅206-258㎡
高层臻品84-177㎡(毛坯现楼)|86-176㎡(精装期房)
高阶生活图景,定制圈层主场
教育矩阵:家门口两所幼儿园(规划)+72班九年制学校,毗邻华南实验学校、万科双语私校
医疗护航:新华医院(三甲)、深圳第二儿童医院(三甲)双医疗保障
人文盛宴:红山“四馆一城”与福田音乐厅/图书馆双圈文化资源覆盖
商业旗舰:COCOPARK+8号仓奥莱+山姆/Costco会员店构筑顶配消费圈
27载金光华,与深圳共著传世章**
土地储备超1000万㎡,布局大湾区四核区域。圳央墅区作为十年淬炼之作,以约2.0容积率、60%绿化率的稀缺基因,为深圳塔尖人物呈现可传承的湖山资产——这里不仅是物理居所,更是匹配湾区视野的精神领地。
【圈层观·远见】高阶身份象征·社交更优雅·眼界共鸣
圈层进阶,读懂圈层人物的向往。纵观全球,环湖法则随经典不断流传,渐成高净值人居圭臬。君粼深谙自然的美好无价,悉心于墅境之上、旖旎湖畔再著雅奢宽宅,重筑跨越时光的经典品味,为深圳艺术湖居生活再呈佳作。

【城市观·通达】国际匠师之作·规划用心·美好渐呈
• 鼎立湾区核心 ,深圳主城烫金之作
福田中心、深圳北站商务中心双CBD —1+1>2,占据着城市黄金地脉;势起大区域开发,鼎立深圳主城板块,成就大城都封面生活。
• 赋能版块进阶,扛鼎区域价值升级
①占地面积60万㎡,其拥有总建面不低于250万㎡的深国际·华南数字谷,与香蜜湖新金融中心规划同等城市站位,赋予片区巨大价值。
② 有大约37万㎡民悦公园(规划中),总投资约1.5亿元,成就城市生态,人居高地。
③ 大约160万㎡星河WORLD,大约2800万㎡华为总部基地带动区域创新,板块含金量飙升。
• 双枢纽+五轨道交通,城央一脉通达
①双枢纽(深圳北站+五和站)——1小时无缝对接大湾区;五和站城际枢纽,5/10号线及规划中的深大、深惠、深广中轴城际。
②双地铁口(光雅园站+南坑站)——五轨道(22号线在建中),5号线3站南山、10号线2站福田,只需约15mins即可高效通达深圳各区,城市脉搏咫尺把握。
③民乐路在2024年即将全面通车完成验收,开通后将大大缩短至梅观高速车程,可畅达福田。
• 内外双循环配套,聚合多维资源
①产业配套:梅林-彩田新一代信息科技总部基地 + 深国际华南物流园 + 星河WORLD + 坂雪岗科技城-华为总部基地
②旗舰商业:COCO Park、8号仓 | 高配山姆会员店、costco | 红山/福田双CBD商圈
③TOP文教:潜龙学校附属龙岸幼儿园 + 万科双语学校(私立) + 华南实验学校(小、初中部) + 72班九年一贯制学校,24班小学,18班小学(规划中)
④优质医疗:市第二人民医院 + 新华医院(三甲,即将竣工) + 深圳第二儿童医院(三甲,已竣工验收)
⑤双CBD人文:红山展览馆、演艺馆、图书馆、美术馆 | 福田深圳音乐厅、图书馆、市少年宫、博物馆等等


【资源观·从容】拥四湖一山·享龙栖湖·低密墅区
• 天赋湖山大境,约6万㎡湖畔园林美学
君粼可近享银湖山、塘朗山两大山脉,尽揽民治、民乐、雅宝和南坑四大湖泊;
内可揽约5300㎡龙栖湖、约6万㎡园林景观,内外围合,开启城市美学生活。
• 约2.0低密舒居,集“林、风、山、云”四大主题园林
高达60%的绿化率,大约350m阔绰楼间距,目光所至皆是珍藏隽秀波澜;三期园林“静、悠、轻、想”的匠心,规划独立私属归家景观带,步履间尽享格调流淌。
①风雨连廊设计,可应对深圳多变气候,关怀着业主日常出行,悉心照拂归家脚步。
②归家+休闲双动线,入户双重尊贵归家道路,规划阳光景观车库,诠释着高门礼序。
③全龄交互乐享空间,打造主题全龄泛会所,专置生日轰趴馆、贵宾宴会厅。
• 名家执笔雕琢,擘画品高端人居品质
室内设计由全球酒店室内设计排行第一的CCD亲自执笔打造;社区园林由山水比德景观设计机构再执笔规划与升级。

【著作观·考究】精造好房·精装更放心·奢适品质
• 精工筑家,豪宅级的空间规划,关怀凝练细节;台地园景,“歌剧院式”布局,遵循地势南北高,中间低,形成了自然起伏呈现“聚气藏风”之势,推窗即见景也保障了居住的私密性与舒适性。
①🌟高阔奢享🌟:建面大约86-176㎡墅境宽宅,改善型大四房,全南向户型天然舒适;两梯三户低梯户比,多阳台露台设计,为悦享阔绰居住空间;方正户型结构可搭载更多半开放设计,大幅提升高阔空间实用率与灵活性。
②🌟匠心选材🌟:甄选高档材料来打造硬朗立面风格,时尚美观的同时轻盈易净,质感独特且历久弥新,室内采用了大面宽落地窗设计,大面积low-e双层中空玻璃延光入室,隔热降噪设计为生活思考更多。
③🌟奢配生活🌟:甄选全球Top级品牌甄装,德系精工、Miele精品系再展生活质感,墅境美学标准叠加着国际空间标准,点睛都心风尚人居。

【圈层观·远见】身份的象征·社交优雅·眼界共鸣
• 圈层进阶,读懂圈层人物。纵观全球,环湖法则随着经典不断流传,渐成为高净值人居圭臬。君粼深谙自然美好无价,悉心于墅境之上、旖旎湖畔,再著雅奢宽宅,重筑跨越时光的经典品味,为深圳艺术湖居生活再呈佳作。
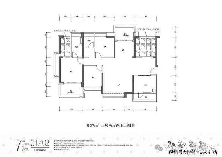
🌟 【户型图】🌟
【户型图】
声明:本文由入驻焦点开放平台的作者撰写,除焦点官方账号外,观点仅代表作者本人,不代表焦点立场。
