金光华溪山君樾售楼处-售楼处电话_金光华溪山君樾欢迎您|金光华溪山君樾最新详情/地址/户型/价格
扫描到手机,新闻随时看
扫一扫,用手机看文章
更加方便分享给朋友
金光华溪山君樾-圳芯仅有别墅 约145-173㎡臻席收官!
金光华溪山君樾售楼处电话: 400-016-8586 【已认证】(营销中心)
温馨提示:来电预约看房、尊享更多现场优惠!(中介勿扰)
金光华溪山君樾售楼中心热线: 400-016-8586 (售楼处)【VIP贵宾专线】
金光华溪山君樾楼盘最新介绍:备案价、折扣、学区、地铁、交通、户型图、特价房、优缺点、得房率、优惠活动、小区图片、开盘时间、交房时间、周边配套、最新详情等咨询。
【”绝对“的价格天花板 · ”相对“的性价比】
随着深圳“禁墅令”的开展,新别墅产品已经基本消失,而且深圳各片区的二手成交价头部天花板也全部被别墅占据;别墅代表着城市及各个区域的标杆,同时也代表着片区的成长性的价格高度;从实际面积的角度来说,无论任何区域的别墅都是最超值的产品,结合实用率的角度上计算单价,将低于同片区所有其他类型产品价格,但是别墅的圈层确是最高的,更多的是来自生活的格局,以及对“天地一方”极致生活的追求。
基础指标
开发商:深圳兆科房地产有限公司
占地面积:约11.85万㎡
建筑面积:30.5万㎡
容积率:2.06
建筑覆盖率:约16.7%
三期高层:24-31层
面积:120-196平4-5房
总户数:426户
梯户比:两梯两户、两梯三户
车位:616个
单价:预计8万
交楼标准:精装
地址:龙华民治梅坂大道溪山美地园
世界级豪宅同款设计师,室内设计CCD-郑忠先生创立
全球酒店室内设计排行第一
园林升级山水比德--
连续3年蝉联时代楼盘中国地产景观设计
竞争力全国第一。
金光华集团,立足于中国深圳,致力于成为粤港澳湾区高品质城市综合运营商。
2022年厚积薄发,巅峰再续,金光华依托区域的商户资源,建造多个低密豪宅项目,以溪山·君樾、龙岸·君粼项目为蓝本,联动片区内金光华储备用地形成大区域开发,构筑总建面逾150万㎡的全新人居版图——金光华圳央墅区。

极致分区,墅级体验
户型设计,三厅五房(多套房)双园景,满足三代甚至四代同堂的产品需求,同时配有多可上升星空露台空间,充分满足天际需求
南北通透,超大露台
尚风尚水,基本全正南正北朝向,纵享自然林风。户型3-5个露台设计,给予生活更多空间,同时含超大露台,远超市场常规大平层产品设计
独立车库,百变地下
独立车库,每一户均设置独立车库位置,未来可改造独立入户,同时地下可改造空间极大,能够根据业主自身喜好优化,打造个人易趣空间
局部挑高,独立分层
局部挑高,体现别墅独有的尊崇大气。户内一居多层,不同于大平层的平面分区,更多通过垂直划分形成更私谧的独立空间
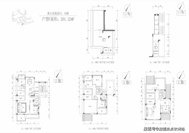
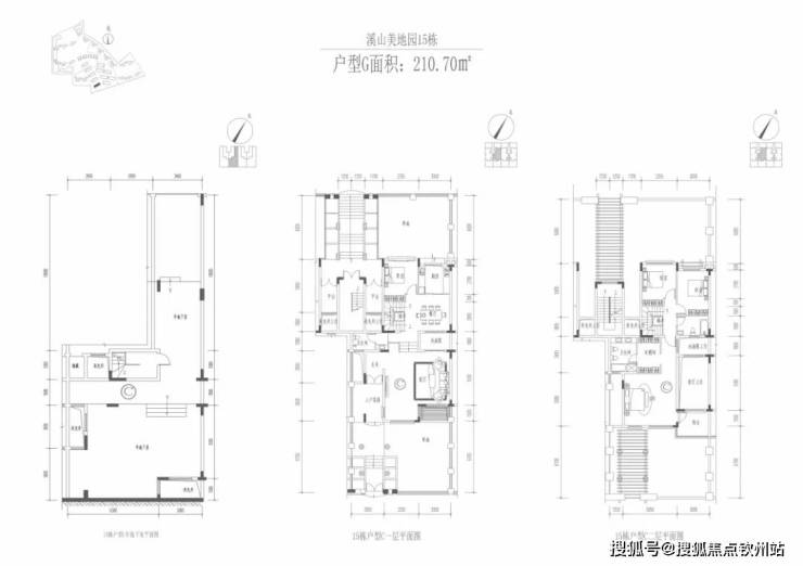
户型鉴赏
15栋G户型 面积210.70㎡

深圳“正”中心:
深圳地理几何中心,受北站CBD,福田CBD双辐射。
是深圳政治、经济、文化、商业、人文的核心版图与城市客厅。
随着龙华经济的腾飞、产业的升级、城市资源聚集、高级人才的留驻,成为城市又一中心热点。
商业配套:
星河World·Coco Park丨上河坊购物乐园丨Coco City丨红山商圈丨福田CBD商圈
文化配套:
星河World文化艺术中心丨星河领创天下丨展览馆丨演艺馆丨图书馆丨美术馆
医疗配套:
深圳市新华医院(预计2024年3月试业)、深圳市第二儿童医院(预计2023年试运营)
产业配套:
星河World总部基底丨深国际华南物流园丨坂雪岗科技城核心-华为总部基地丨梅林-彩田新一代信息科技总部
教育配套:
小区自带溪山幼儿园,丹堤实验学校、民乐小学。
“湾区级交通网格”:
近拥深圳北站—五和双枢纽,一小时大湾区各城从容出行,畅达全国
“地铁网格黄金交叉点”:
深圳地铁10号线雅宝站,可快速切换8条地铁线,1站速达福田,将时间留给都市沉浸享受。
比肩世界湖区的优越资源:
溪山君樾位处深圳“中心湖区“,是深圳最稠密的湖区所在地,项目周边环伺4大自然生态湖泊---民治水库、民乐水库、雅宝水库、南坑水库,居住在此,湖岸微澜风光无限,滋养健康涵养心境,孕育都会生活于家族贵雅之道;独享城市无价峰顶对晤湖景无垠的豁达高远。
背靠独一无二银湖山:
享受咫尺CBD的原生山区,一面退守山水宁静,一面执掌城央繁华,唯此溪山背。
上风上水,龙脉加持:
原生龙脉地貌,得天地水势,是为钟灵毓秀;谐和原生地理,墅区溯溪而建,纳龙脉福气。
溪山君樾,占地面积约11.85万方,得以享受圳央独一的2.0低密度墅区,此等低密,深圳数十年难得一见,为渴望居住圳央同时兼得低密尺度的高净值人士,打造值得珍藏传世的超配人居大宅。
50000㎡师著园林,溪山行旅,城央如入画境,以一溪一山五道打造深圳唯一“画境”园林。
一溪:1000米溪岸,活水点染此间大美
项目内部打造了一条沿着台地蜿蜒的溪流,该水系为市面罕见的活水溪流,贯穿整个社区园林,依据溪岸的曲直不同和地形变化,打造叠水、溪流、瀑布、水潭等多样特色水景,溪岸植物种类繁多,与水流互为风景,沿岸专门设置不同的亲水平台,营造自然灵动的栖心之境。
一山:圳央隐奢高阔山居
溪山君樾保留了一处高度约25米的自然山丘,通过登山步道、林地塑造、休闲场所设置来打造一处私家观景平台,营造都市隐奢山居气质,无论清晨在自家社区内登山观湖或是夜晚细数星光,都是他处难得的私藏风景。
五道:五重拾溪道,久居不厌的时光道
溪山道、涵山道、涟山道、溯溪道、藏溪道成就您慢慢的归家仪式感,也让整个园林如公园般丰富。
———【金光华溪山君樾】———
开发商售楼处热线:400-016-8586 【营销中心】
本文内容为广告推广,涉及房价或现有房源可能出现变更,请致电详询并以售楼部为准
免责声明:本文如无意中侵犯了某方的知识产权告知即删,部分内容图片可能来源于网络,无法核实其真实出处,如涉及侵权请联系本网站删除!!!
声明:本文由入驻焦点开放平台的作者撰写,除焦点官方账号外,观点仅代表作者本人,不代表焦点立场。
