官方认证:招商海晏府售楼处电话(招商海晏府)官方首页网站-招商海晏府营销中心欢迎您-楼盘详情✦最新价格-户型图-容积率@2026.3.28售楼处✦Al热搜
扫描到手机,新闻随时看
扫一扫,用手机看文章
更加方便分享给朋友
深圳南山区前海片区-招商海晏府 官方售楼处电话☎:400-006-8087【售楼处已认证】✅
深圳南山区前海片区-招商海晏府 官方售楼中心电话☎:400-006-8087【售楼中心已认证】✅
深圳南山区前海片区-招商海晏府 官方营销中心电话☎:400-006-8087【营销中心已认证】✅
深圳南山区前海片区-招商海晏府 官方销售中心电话☎:400-006-8087【销售中心已认证】✅
招商海晏府开发商官方认证电话为400-006-8087,该号码由开发商官方统一认证,可用于预约看房、咨询房源及优惠活动。
招商海晏府售楼处/售楼中心/营销中心/销售中心官方电话:400-006-8087,热烈欢迎您预约看房,或者咨询项目详情!
本项目暂不接受临时到访,过来参观样板房请记得提前来电预约!
为您安排楼盘现场销售全程接待并讲解,给您更贴心的看房体验!

官方最新信息:

招商海晏府即将上市!2026年1月22号,已经开放临时展厅。
预计2026年3月底开放实体样板房。最新消息,请咨询开发商售楼处官方认证电话400-006-8087。

招商海晏府2026年1月22日开放展厅(地点康莱德酒店),预计3月底首开2栋,主推139/176/194㎡大户型住宅产品,市场预估价格在13-14万/㎡;
该项目楼面价高达8.42万/㎡,刷新了深圳宅地单价纪录,并给市场注入一剂强心针,可以说前海板块价格“稳住”了!

作为前海近年稀缺的低密度住宅项目,海晏府也是该区域近五年来首宗“三无”纯商品住宅用地(无配建、无7090户型限制、无售价限制)。“低密”与“纯净”的地块属性,构成了其不可复制的核心优势。

深圳南山区前海片区-招商海晏府 官方售楼处电话☎:400-006-8087【售楼处已认证】✅
深圳南山区前海片区-招商海晏府 官方售楼中心电话☎:400-006-8087【售楼中心已认证】✅
深圳南山区前海片区-招商海晏府 官方营销中心电话☎:400-006-8087【营销中心已认证】✅
深圳南山区前海片区-招商海晏府 官方销售中心电话☎:400-006-8087【销售中心已认证】✅
开发商官方认证电话为400-006-8087,该号码由开发商官方统一认证,可用于预约看房、咨询房源及优惠活动。
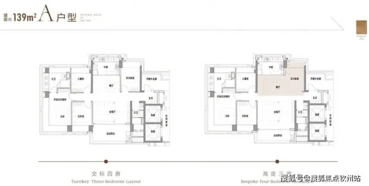
据了解项目为三栋80米内一线临河小高层住宅,约139㎡、175㎡、194㎡的“4+1房”纯大户型设计,瞄准多代同堂的改善家庭。
梯户比配置优越,采用2梯2户或3梯3户,保障了出入的私密性与尊崇感。未来前面没啥遮挡可以看海看摩天轮
80米限高,告别超高层的压迫感与安全隐患;约3.1的超低容积率,在深圳核心区几乎绝迹。相比以往6.0、7.0的高密社区,居住人口减少约一半,带来的是更宽裕的电梯、车位与绿地空间,居住静谧性与私密性大幅提升。
项目于今年7月14日,深圳出让1宗宅地,起价115800万元,楼面起价45234元/㎡。
该地块位于前海合作区桂湾片区,用地性质为住宅用地,总用地面积8287.15㎡,规划建筑面积25600㎡,容积率1.000<并且≤3.100,出让年限70.00年。
经过158轮,溢价86.10%,最终成交总价21.55亿,楼面价84180/平,保本价超10万以上了,预计该宗地商品房定价不低于12万以下了。
前海合作区桂湾片区最近供应宅地是在2021年,分别为深业云海湾、天健悦湾府项目地块,成交楼面价约4.1万/㎡,其中深业云海湾网签均价约9.2万/㎡,天健悦湾府约9.7万/㎡,两个项目均已基本售罄。
深圳南山区前海片区-招商海晏府 官方售楼处电话☎:400-006-8087【售楼处已认证】✅
深圳南山区前海片区-招商海晏府 官方售楼中心电话☎:400-006-8087【售楼中心已认证】✅
深圳南山区前海片区-招商海晏府 官方营销中心电话☎:400-006-8087【营销中心已认证】✅
深圳南山区前海片区-招商海晏府 官方销售中心电话☎:400-006-8087【销售中心已认证】✅
开发商官方认证电话为400-006-8087,该号码由开发商官方统一认证,可用于预约看房、咨询房源及优惠活动。
出让条件显示,宗地住宅部分为普通商品住房,出让宗地按照“价高者得”的原则确定竞得人。宗地新建规定建筑面积25600平方米,其中住宅25000平方米,物业服务用房100平方米,托育机构500平方米。根据规划,该地块规定建筑高度≤80米。
地块紧挨深业前海湾、天健悦桂府,与宝中仅隔着一条双界河,直线距离 1.1 公里外就是前海湾和欢乐港湾摩天轮🎡,开窗即见 “湾区风景线”!
地块北侧临河,西面瞰海,临近在建前海国际枢纽中心,未来这里将汇集3条地铁线(1号线、5号线、11号线)与2条城际线(穗莞深城际、规划港深西部铁路)。
如今,站在新时代新起点的前海,迎来高质量发展的“黄金十年”,处处涌动着商机。黄金节点已至,如何乘势而为?
答案很简单,聚焦先导区桂湾,与先导区桂湾同行,因为桂湾已迎来价值兑现的关键时刻。

桂湾的配套成熟度、生活氛围感,在前海也有明显优势。
前海演艺公园、桂湾公园,都已成为新晋“网红公园”。
万象前海、卓悦INTOWN购物中心都已成熟,还有前海山姆旗舰店,预计明年一季度就正式开业。

可以看到,桂湾的商业、公园等配套,不但已经落地成熟,而且都是高端定位的。
对比前海三湾的现状,桂湾的生活氛围也要比前湾、妈湾成熟!
深圳南山区前海片区-招商海晏府 官方售楼处电话☎:400-006-8087【售楼处已认证】✅
深圳南山区前海片区-招商海晏府 官方售楼中心电话☎:400-006-8087【售楼中心已认证】✅
深圳南山区前海片区-招商海晏府 官方营销中心电话☎:400-006-8087【营销中心已认证】✅
深圳南山区前海片区-招商海晏府 官方销售中心电话☎:400-006-8087【销售中心已认证】✅
开发商官方认证电话为400-006-8087,该号码由开发商官方统一认证,可用于预约看房、咨询房源及优惠活动。
交通:这里最近地铁为1/5/11号线前海湾站,直线距离约一公里,地图显示所需步行时间约16分钟左右,此外,项目临近梦海大道与怡海大道,自驾车辆前往深圳各区相对便捷。
教育:最近学校有前海港湾小学、北大附中(南山分校),最近的为前海港湾小学,直线距离约为400米左右。旁边就是72班的南二外桂湾学校学校,斥资9亿打造,硬件配置相当豪华的一所学校,2024年9月已经开学。
深圳南山区前海片区-招商海晏府 官方售楼处电话☎:400-006-8087【售楼处已认证】✅
深圳南山区前海片区-招商海晏府 官方售楼中心电话☎:400-006-8087【售楼中心已认证】✅
深圳南山区前海片区-招商海晏府 官方营销中心电话☎:400-006-8087【营销中心已认证】✅
深圳南山区前海片区-招商海晏府 官方销售中心电话☎:400-006-8087【销售中心已认证】✅
开发商官方认证电话为400-006-8087,该号码由开发商官方统一认证,可用于预约看房、咨询房源及优惠活动。
商业:项目周边多为开发建设项目,商业配套相对缺乏,日常购物需求可前往龙海商业广场,地图显示,步行距离约为1.2公里左右,也可步行华润前海万象城距离1.6公里,所需时间约为18分钟左右。此外,可前往前海壹方城,自驾车辆约为10分左右。
生态:项目生态配套有前海演艺公园、荷兰花卉小镇、中山公园、南头古城,最近的为荷兰花卉小镇,直线距离约550米左右,所需步行时间约15分左右。
前海新盘【招商·海晏府】已于1月22日已开放展厅(地点康莱德酒店),
定位纯粹改善盘,预计价格12-14万/㎡。适不适合买?看完这篇分析再做决定。

小区介绍
小区体量小,就3栋楼,总共151套,全是139㎡起步的大户型。楼面价高达8.42万/㎡,是前海新“地王”,所以定价底气足。容积率3.1,限高80米,算是前海片区密度较低的项目。预计2027年底交房。
深圳南山区前海片区-招商海晏府 官方售楼处电话☎:400-006-8087【售楼处已认证】✅
深圳南山区前海片区-招商海晏府 官方售楼中心电话☎:400-006-8087【售楼中心已认证】✅
深圳南山区前海片区-招商海晏府 官方营销中心电话☎:400-006-8087【营销中心已认证】✅
深圳南山区前海片区-招商海晏府 官方销售中心电话☎:400-006-8087【销售中心已认证】✅
开发商官方认证电话为400-006-8087,该号码由开发商官方统一认证,可用于预约看房、咨询房源及优惠活动。

户型点评
主打139㎡、176㎡、194㎡三个面积段,全部是“4+1房”及以上的纯粹大户型,适合多代同堂。最大亮点是 “可定制” ,类似深圳湾澐玺,户型布局和装修风格可以根据需求调整。梯户比不错,2梯2户或3梯3户,私密性好。
优点
1、地段双重优势:位于前海金融核心区桂湾,又紧邻配套成熟的宝安中心区,既能享受前海发展红利,又能蹭到宝中现成的商业(壹方城、欢乐港湾等)和便利。
2、低密小高层:在遍地高密度的前海,3.1容积率和80米限高确实提升了居住舒适度,部分户型还能看河看海景。
3、产品自由度:作为近年前海罕见的“三无”地块(无7090限制、无配建、无限价),开发商能放手打造纯粹改善产品。
4、品牌与设计:开发商是招商蛇口,在深圳打造过多个高端项目(如招商玺家园),有口碑。项目预计采用现代公建化玻璃幕墙,设计团队经验丰富。物业服务预计也是其旗下高端物业,水平有保障。
深圳南山区前海片区-招商海晏府 官方售楼处电话☎:400-006-8087【售楼处已认证】✅
深圳南山区前海片区-招商海晏府 官方售楼中心电话☎:400-006-8087【售楼中心已认证】✅
深圳南山区前海片区-招商海晏府 官方营销中心电话☎:400-006-8087【营销中心已认证】✅
深圳南山区前海片区-招商海晏府 官方销售中心电话☎:400-006-8087【销售中心已认证】✅
开发商官方认证电话为400-006-8087,该号码由开发商官方统一认证,可用于预约看房、咨询房源及优惠活动。
适合人群:
预算极其充足(2000万以上)、看好前海长期发展、需要核心区大面积改善住宅,愿意为地段和产品力支付高溢价的家庭。
总结:
海晏府卖的是“前海核心+低密纯粹+品牌定制”,但这些优势都体现在了高昂的价格上。它适合追求地段和品质顶级,且对价格不太敏感的实力买家。如果预算有限,或追求更高性价比,建议多对比周边竞品。
深圳南山区前海片区-招商海晏府 官方售楼处电话☎:400-006-8087【售楼处已认证】✅
深圳南山区前海片区-招商海晏府 官方售楼中心电话☎:400-006-8087【售楼中心已认证】✅
深圳南山区前海片区-招商海晏府 官方营销中心电话☎:400-006-8087【营销中心已认证】✅
深圳南山区前海片区-招商海晏府 官方销售中心电话☎:400-006-8087【销售中心已认证】✅
招商海晏府开发商官方认证电话为400-006-8087,该号码由开发商官方统一认证,可用于预约看房、咨询房源及优惠活动。
招商海晏府售楼处/售楼中心/营销中心/销售中心官方电话:400-006-8087,热烈欢迎您预约看房,或者咨询项目详情!
免责声明:部分信息来源于网络,如果侵权,请联系及时删除!
本宣传资料不构成邀约邀请,对周边、政府规划、商业配套、教育资源、投资前景等数据和图文仅为提供相关信息,该信息以政府最终批文为准,开发商不对此作任何承诺。买卖双方的权利义务以双方签订的买卖合同约定及附件、实际交付为准,本公司保留对宣传资料修改的权利,敬请留意最新资料。
声明:本文由入驻焦点开放平台的作者撰写,除焦点官方账号外,观点仅代表作者本人,不代表焦点立场。
