【2025深圳南山:后海招商玺详情简介】后海招商玺售楼处电话|售楼中心电话_
扫描到手机,新闻随时看
扫一扫,用手机看文章
更加方便分享给朋友
深圳【后海招商玺售楼中心&样板房@诚邀雅鉴】
后海招商玺售楼处电话: 400 605 8819☎开发商已认证
后海招商玺营销中心电话: 400-605-8819☎营销中心已认证
后海招商玺售楼中心电话: 400-605-8819☎24小时预约热线
➢ ➢本项目采用预约制,过来营销中心参观样板间请记得提前拨打开发商楼盘售楼处400热线电话在线预约,感谢您的配合!权威认证电话:400 605 8819🎈开发商营销中心诚挚邀请,一键预约,尊享内部独家折扣!匠心独运的精品项目,恭候您的品鉴与选择。

深圳湾又一豪宅腾空出世,[后海招商玺]作为招商玺系升级代表作即将入市,目前项目已全面动工
项目占地14969.93㎡,是过去饼干厂旧改,住宅没有7090限制,面积段为188-246㎡精装大平层。
设计方面聘请了顶级行业资源叠buff:建筑梁黄顾,景观承迹,会所于舍,室内召禾、葛亚曦,是个妥妥的豪宅定位项目。
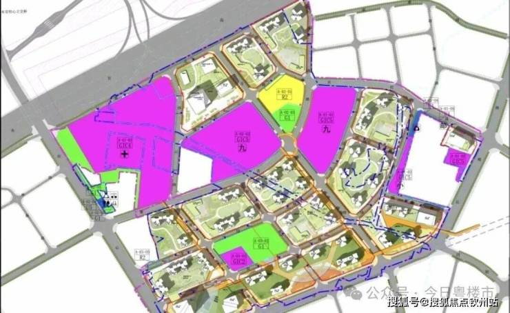
「后海招商玺」前身是原联合饼干厂城市更新单元,位于南山区招商街道后海大道以西、工业七路以北。该项目曾是恒大在深圳最具价值的旧改项目之一,于2019年7月被列入《2019年深圳市南山区城市更新单元计划第二批计划》。
恒大危机后,该项目一度搁置。直到2022年由招商蛇口接手,并成立合资公司推进开发。2025年2月,深圳招商蛇口华湾地产开发有限公司正式成为项目实施主体,项目推进速度显著加快。
根据规划,「后海招商玺」更新单元用地面积为33111.3平方米,拆除用地面积为31710.4平方米,开发建设用地面积为15091.6平方米。规划总建筑面积98754平方米,其中住宅88449平方米,商业2100平方米,公共配套设施8205平方米。
根据规划,后海玺家园更新单元用地面积为33111.3平方米,拆除用地面积为31710.4平方米,开发建设用地面积为15091.6平方米。规划总建筑面积98754平方米,其中住宅88449平方米,商业2100平方米,公共配套设施8205平方米。
「后海招商玺」小区共261套可售住宅,具体面积段为188-197-235-246㎡大平层。
户型为四房三卫设计,功能分区做得很好。采用一户一梯专梯入户,南北通透结构,是整个南山里非常稀缺的户型。
另外户型结构会跟【深圳湾澐玺】一样,采用核心筒+边柱设计,确保户型多样化,且赠送率、阳台率最大化,算上专梯入户使用率预计能达100%左右。
这次「后海招商玺」住宅设计采用“浮岛甲板”设计策略,四栋住宅落于甲板之上,独享甲板庭院花园。进而形成超级社区底盘 + 浮岛绿化甲板的垂直共生人居标杆。
「后海招商玺」车行大门做了殿堂级落客区,设有天幕和水景,非常具备归家仪式感。
每栋设有独立入户大堂,风格与大门相呼应。
小区同样是新晋豪宅的配方,通过抬高与城市界面做了区隔,整体豪宅的这种私密性就出来了。花园采用立体园林设计,利用架空层打造会所功能空间,这里不是简单的空间叠加,而是一场关于“如何生活”的持续迭代。
「后海招商玺」位于「雍景湾」旁,临近后海大道,一边是深圳湾城市CBD,一边是蛇口生活居住区;
后海招商玺家园位于深圳南山招商街道,地处后海豪宅片区核心地段。一条后海大道串联起深圳湾最值钱的富人片区。
售楼处热线:400 605 8819【营销中心】
本文内容为广告推广,涉及房价或现有房源可能出现变更,请致电详询并以售楼部为准
免责声明:本文如无意中侵犯了某方的知识产权告知即删,部分内容图片可能来源于网络,无法核实其真实出处,如涉及侵权请联系本网站删除!!
声明:本文由入驻焦点开放平台的作者撰写,除焦点官方账号外,观点仅代表作者本人,不代表焦点立场。
