华发琴澳新城·悦玺(售楼处)首页网站-(营销中心电话)-华发琴澳新城·悦玺户型价格-地址-楼盘详情-周边配套-售楼处电话-交房时间2025/11/25
扫描到手机,新闻随时看
扫一扫,用手机看文章
更加方便分享给朋友
华发琴澳新城|悦玺-启幕城芯繁华 ��主力建面89-129㎡ 精装现房
开发商售楼处24小时电话:400-065-2898(预约咨询热线)现场详细解答丨项目介绍丨户型图丨在售房源丨特价房丨学校丨交通位置丨样板房丨小区图片丨交房时间丨周边配套
开发商认证电话为400-065-2898,该号码由开发商统一认证,可用于预约看房、咨询房源及优惠活动。


项 目 案 名 | 华发琴澳新城|悦玺
占 地 面 积 | 约1.5万㎡
建 筑 面 积 | 约4.4万㎡
容 积 率 | 2.9
可 售 住 宅 | 272套
绿 化 率 | 约30%
户 型 面 积 |
建面约89㎡ 三房两厅两卫
建面约105㎡ 三房两厅两卫
建面约129㎡ 四房两厅两卫
项 目 地 址 | 中国·珠海·十字门·华发琴澳新城

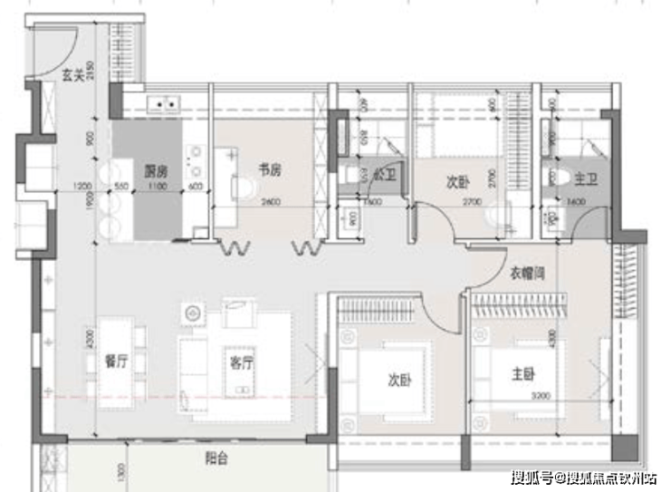
—129㎡四房两厅两卫
户型亮点
南向近14米面宽,南北通透,全屋飘窗;
LDKG一体化+阔绰长厅;
主卧套房设计,独立衣帽间;
入户明玄关,增加储物空间及归家仪式感。

珠海,湾区三大经济极点之一、全国宜居城市
大湾区西岸核心枢纽城市,与广州、深圳位居第二梯队,人口/经济全省增速第一
2022年珠海GDP达4045.45亿元,领衔珠西城市群
2022年珠海常住人口达245万,10年人口增长率全国第2,仅次于深圳
唯一6年全国宜居城市第一
(数据来源:百度新闻及百度百科)

华发,珠海特区国企品牌 稳健发展
与珠海特区同龄,43载共生成长,珠海城市地标、品质生活缔造者
华发股份已连续6年跻身《财富》“中国500强”榜单,“三道红线”持续稳居绿档


数据来源:世联市场研究中心、克而瑞地产研究
十字门金融区,珠海城市新中心,左拥澳门、右揽横琴
粤澳深度合作区,国家级战略规划,经济发展超强动力

规划横琴一体化片区、双中心等位,南中心横琴金融岛定位商务中心,北中心十字门定位生活居住区,承载横琴居住人口,2022年规划十字门金融区,打造广东金融“第三极”,再次迎来发展机遇。

珠海千亿国际配套,HOPSCA超级综合体
国际会展集群
珠海国际会展中心、国际会议中心,超3600场展览会议,超400万人次接待(会展中心内部统计)
星级酒店集群
大中华区第10家铂金级瑞吉酒店、喜来登酒店、行政公寓
总部办公集群
珠海中心大厦、珠海国际金融大厦,集聚琴澳多元化产业,打造珠海商务办公封面
潮流商业集群
约20万㎡十字门华发商都(一期、二期已试运营,二期将于2023年9月30日正式开业),珠海商业旗舰新标杆
人文艺术臻萃
珠海唯一高端国际艺术表演场所,华发中演大剧院
全龄教育配套
目前规划12所教育配套,包括6所幼儿园、2所小学、3所初中、1所高中,十字门小学已招生开学,十字门中学即将动工兴建,规划引入省一级教育资源(信息来源:珠海发布公众号)

悦玺,居住升级标杆社区,邻里中心上盖精装舒适住区
成熟社区环绕,邻里中心、幼儿园下楼即达,品质园林,打造居住升级新体验

邻里中心2.0——满足生活、娱乐所需,下楼即达
设施包括3500㎡农贸市场、1500㎡卫生服务中心、3000㎡市民艺术中心、1600㎡家庭综合服务中心、1000㎡商业金融服务等等(以最终规划方案为准)

泛会所——架空层打造全零段娱乐休闲空间,满足活动、社交需求


空中园林——休闲惬意的屋顶花园

仪式归家——度假酒店式轻松、愉悦归家感

如需了解更多内部折扣详情,
欢迎咨询开发商售楼处咨询/预约电话☎:400-065-2898(中介请勿扰)
温馨提示:看房请务必电话提前预约,避免临时无人接待,感谢您的配合!
开发商承诺:一对一专属开发商销售服务,尊享开发商内部优惠服务!
声明:本文由入驻焦点开放平台的作者撰写,除焦点官方账号外,观点仅代表作者本人,不代表焦点立场。
