玖玖颂阁售楼处电话@首页网站-玖玖颂阁营销中心电话-玖玖颂阁欢迎您-楼盘详情-周边配置-最新价格-热线电话2025.11.12
扫描到手机,新闻随时看
扫一扫,用手机看文章
更加方便分享给朋友

一、项目概述
玖玖颂阁,由深圳市俊弘星实业有限公司匠心打造,项目占地约1.4万㎡,总建面达到10.41万㎡。这里拥有667户精致住宅,面积区间涵盖84㎡至133㎡,满足不同家庭的居住需求。项目以现代简约风格设计,搭配高品质的精装修,为业主打造一个温馨舒适的家居环境。同时,项目配备有充足的停车位,车位比达到1:1.12,确保每位业主的停车需求。
二、周边配套
交通配套:北环大道、G107国道、宝安大道环绕,自驾出行便捷,可达福田、南山、宝安中心区。毗邻双地铁,距今年将开通的12号线(上川站)500米,距规划中15号线(流塘站)700米。
教育配套:家门口双学校,楼下步行可达弘雅小学和文汇中学,均为省一级学校,历史悠久,教育质量优良。
商业配套:周边有全市最密集的商圈,包括壹方城、海雅缤纷城等高端购物中心,驱车10分钟即可到达。楼下还有天虹、沃尔玛等超市,满足日常购物需求。
生态配套:项目周边配备13大公园,如宝安公园、流塘公园等,距离宝安公园直线距离1.5公里,距离流塘公园直线距离607米,宜居属性高。
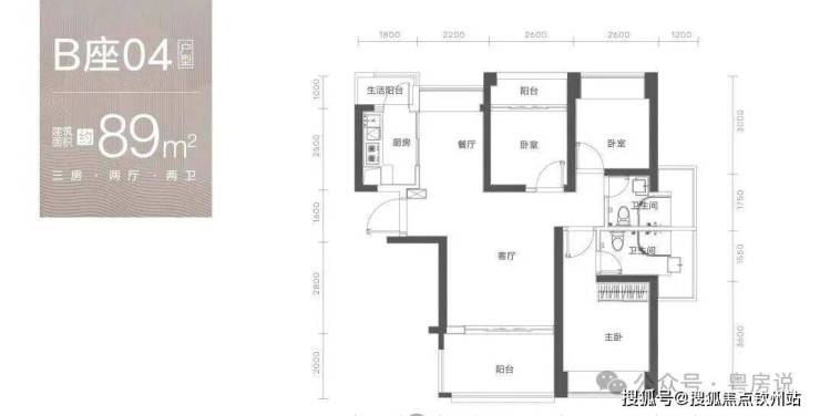
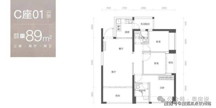
三、户型鉴赏
项目提供多种户型选择,包括89㎡的三房一卫/两卫和128-133㎡的四房两卫。户型设计合理,空间利用率高,满足不同家庭的需求。
四、优劣势分析
优势:
地理位置优越,交通便利;
教育资源丰富,为孩子提供优质的教育环境;
商业配套齐全,满足日常购物需求;
生态环境优美,提供丰富的休闲和娱乐选择;
劣势
容积率较高:可能在一定程度上影响居住舒适度。
交通噪音影响:可能存在交通噪音对居住环境的影响。
五、总结
玖玖颂阁以其卓越的地理位置、丰富的教育资源、齐全的商业配套、优美的生态环境以及合理的户型设计,成为了都市生活中的一道亮丽风景线。在这里,你可以享受到都市的繁华与便利,同时也能感受到家的温馨与舒适。如果你正在寻找一个既能满足居住需求,又能提升生活品质的居所,那么玖玖颂阁无疑是一个值得考虑的选择。
声明:本文由入驻焦点开放平台的作者撰写,除焦点官方账号外,观点仅代表作者本人,不代表焦点立场。
