前海时代尊府(深圳)楼盘详情-售楼电话-前海时代尊府最新房价-容积率-小区配套
扫描到手机,新闻随时看
扫一扫,用手机看文章
更加方便分享给朋友
前海时代尊府项目最新介绍:房价、折扣、户型图、特价房源、得房率、优惠活动、开盘时间、交房时间、周边配套、最新详情等咨询。
深圳——前海时代尊府售楼处电话:400 605 8819
前海时代尊府售楼中心24小时电话:400-605-8819【营销中心】
温馨提示:过来看房请记得提前来电预约,尊享售楼处1v1销售专业讲解,感谢您的来电!
前海时代最后的小户型终于要来了!加推53-3栋171套89~190平米,59栋大户型也可能在今年内入市!
前段时间:位于前海核心地段的标杆住宅前海时代三期(尊府)58栋-推出的房源位于前海时代7-2地块中心的58栋,共有76套建筑面积约245平方米和285平方米两种户型,备案套价2440万起
深铁前海时代尊府(推广名)新品重磅亮相,推出的建面约245至285平方米大平层高端产品,凭借其“地铁上盖+生态宜居+高端配套”的独特优势,成为活动现场备受瞩目的“新宠儿”。
『多重价值 领衔未来湾居前沿』
【区域】前海桂湾 活力国际金融城
【交通】地铁枢纽 高效交通全球互联
【配套】丰盛集萃 举步可揽世界精粹
【TOD】百万大城 献映时代美好生活
【匠心】府系力作 钜献环幕湾居大宅
【品牌】国企实力 筑就时代湾居典范
【前海湾区新中心,桂湾国际金融城】
项目区位
「前海时代三期尊府」位于前海桂湾片区南侧,临近滨海大道和桂湾河,在整个前海自贸区内算是住宅的C位,正南侧水廊道公园,东南望南山西南看城市海景。
整个「前海时代」大项目规划总建面约130万㎡包括了商业、写字楼、公寓、酒店、住宅,可以算是一个超大型的综合体。其中商业将会交由华润运营,连接万象前海商业。
交通方面
公共交通方面,桂湾坐拥西部最大的地下交通枢纽前海湾站,目前项目已经大致上出地面,两年内完工。
轨道方面,项目距离地铁站为1号线鲤鱼门站约720米,距离5号线、9号线前湾站约900米,1/5/11号三条地铁线交汇。
商业配套
前海时代三期自带8万平㎡商业,已确定引入华润运营,预计作为“万象前海二期”的目标去打造,能全面满足日常生活所需。
周边商业氛围浓厚,已开设的有万象前海、卓悦INTOWN、山姆旗舰店等品牌商业,而即将开业的有前海壹方汇和前海K11,后续紧跟的还有交通枢纽的约19万㎡大型商业区。当桂湾商业连成片的时候,其城市配套规模和人气流量会更火爆。

这次3单元是53栋几个单元中位置最好的,位于头排,景观视野基本没有遮挡,高层还能看到部分海景。
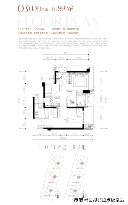
前海时代尊府户型图






【百万TOD综合体,交互美好生活】
深铁前海时代,总建面约130万㎡综合体TOD地标,引领时代湾居美好向往。
已建成物业:总建面约45.2万㎡,包括CEO公馆、国际都荟住宅、深圳市前海深港基金小镇以及学校等。
在建/待建物业:总建面约84.3万㎡,集国际公寓、总部办公、高端住宅、风尚商业、精品酒店等全业态价值连接,商务、社交、生活等全场景切换自如。

【云境美学园林 邻里社交聚场】
以“云巅之上,熙照万千”理念,打造“云谷、云峰、云海”三重云境园林,十八项景观体系;架空层打造邻里活动中心,及业主私享悬浮式泳池,预留户外休闲空间,儿童游戏空间等,领悟自然与艺术的交融之美,营造独特的精神归属感。
【现代美学立面 辉映天际封面】
深铁府系精工携手匠心团队,联袂共筑世界湾居新坐标,香槟金搭配高级灰调立面,现代建筑与艺术风格交相辉映,勾勒前海天际美学封面。
·景观设计 :DDON笛东/梁黄顾事务所
·室内设计 :CCD郑中/ARUP奥雅纳
·建筑设计 :Leigh & Orange/A+E奥意建筑
【臻奢品质公区 礼序归家仪式】
约9m高臻奢大堂,精研艺术与生活交融之美,匠心雕琢金属与石材质感,让归家之路成为艺术巡礼。
私享入户电梯厅,昭示显赫门庭,出门入户间,尽享艺术格调洗礼。
负一层典雅车马厅,阔绰车行落客区,出入尽享优雅从容。
在深圳最令人充满想象力的区域之一,毫无疑问的就有前海,而桂湾是前海三个板块中配套和产业最成熟的板块,既宜业又宜居。
前海时代三期作为桂湾为数不多的新盘,吸引了众多豪刚客户,如果价格在预算范围内非常值得冲一冲。
售楼处热线:400 605 8819【营销中心】
本文内容为广告推广,涉及房价或现有房源可能出现变更,请致电详询并以售楼部为准
免责声明:本文如无意中侵犯了某方的知识产权告知即删,部分内容图片可能来源于网络,无法核实其真实出处,如涉及侵权请联系本网站删除!!
声明:本文由入驻焦点开放平台的作者撰写,除焦点官方账号外,观点仅代表作者本人,不代表焦点立场。
