2025百度热搜:盛合天瑞售楼处欢迎您→盛合天瑞购房热线→盛合天瑞营销中心→24小时电话→2025最新房价→售楼处地址→售楼处最新发布
扫描到手机,新闻随时看
扫一扫,用手机看文章
更加方便分享给朋友
盛合天瑞首页网站最新介绍:房价、折扣、户型图、特价房源、得房率、优惠活动、开盘时间、交房时间、周边配套、最新详情等咨询。
盛合天瑞售楼处电话☎:400 065 2898✨✨
盛合天瑞售楼中心24小时电话☎:400 065 2898【营销中心】
温馨提示:过来看房请记得提前来电预约,尊享售楼处1v1销售专业讲解,感谢您的来电!
��本项目暂不接受临时到访,过来参观样板房请记得提前来电预约!✨✨
��为您安排楼盘现场销售全程接待并讲解,给您更贴心的看房体验!✨✨
宝安航城,下一个“黄金内湾”生活圈
在深圳,想要用“5字头”的单价买一套低密舒适、高得房率的房子,听起来像天方夜谭?但宝安航城的盛合天瑞,却让这个“不可能”变成了现实。
项目位于宝安航城街道,紧邻广深公路与机场南路,坐拥“黄金内湾+前海空港”双核辐射红利。这里不仅是深圳西部的交通枢纽,更是未来九围国际总部先导区的核心地带。想象一下,家门口就是深中通道、穗莞深城际,一脚油门到前海,半小时直达宝安机场,周末去广州喝早茶、去中山泡温泉,简直像跨区逛街一样轻松。
低密纯住社区,刚需的“真香现场”
盛合天瑞最大的杀手锏,是3.39的超低容积率和40%高绿化率。在动辄容积率破5的深圳,这样的社区堪称“清流”。4栋32层住宅半围合布局,楼间距开阔,户户朝南,连北向户型都成了“稀罕物”。
更绝的是,小区无人才房、无回迁房,纯商品房社区,邻居圈层纯粹。清晨在楼下慢跑,傍晚在园林里遛娃,周末在书吧翻几页书,这才是深圳人该有的“松弛感生活”。
交通实测:通勤族看这里!
对于打工人来说,通勤就是生命线。盛合天瑞的交通配置,堪称“刚需友好型”:
- 地铁:步行15分钟到12号线黄田站,2028年20号线航城医院站开通后,700米直达地铁口。
- 自驾:10分钟上沿江高速,20分钟飙到前海,宝安机场、深大城际近在咫尺。
- 远期彩蛋:深中通道2024年通车后,跨珠江就像过个红绿灯,中山、珠海轻松双城生活。
配套测评:遛娃、逛吃、运动全配齐
住在这里,生活绝不“凑合”:
商业:3公里内航城里购物中心、福永天虹满足日常;远期宏发旧改规划大仟里,逛街不用跑远。
生态:一路之隔是11万㎡狮子山足球公园(专业级足球场+跑步道),5公里内西湾红树林、铁仔山公园承包你的周末朋友圈九宫格。
品质细节:豪宅团队打造
- 外立面:铝板+双层LOW-E玻璃幕墙,颜值对标华润城,隔热隔音性能拉满。
公区:台湾设计大师程绍正韬操刀园林,书吧、光影长廊、儿童乐园全配齐,遛娃约会都有格调。
开发商:永铭投资(盛合天宸提前交楼零投诉)+江苏华建(24项鲁班奖),双“学霸”联手,交房不踩雷。
生活场景:住在这里的一天
7:00 被阳光叫醒,主卧落地窗望出去是满眼绿意;
8:00 步行15分钟到黄田站,地铁直达科技园;
18:30 下班回家,顺路在航城里买杯奶茶;
20:00 带孩子在狮子山公园踢球,晚霞染红西湾天际线;
22:00 在书房加个班,三层玻璃隔绝广深公路的车流声。
年轻人的第一套房,何必将就? 在深圳,首付150万起,能买到低密纯住社区、高得房率户型、前海辐射区潜力的房子,盛合天瑞可能是“独一份”。2026年底精装交付。
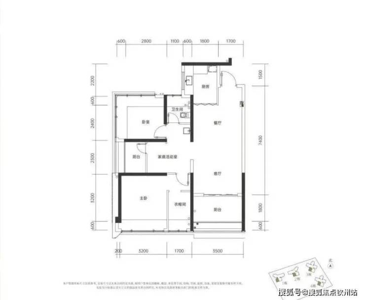
户型鉴赏:
三房一卫:横厅设计,客餐厅开间6.2米,四米主卧带飘窗,得房率102.5%。小夫妻住宽敞,二胎家庭也不局促。
三房两卫:竖厅布局,U型厨房+干湿分离公卫,主卧带独立卫浴,三代同堂都能住出尊严。
四房两卫:南北通透,LDKB一体化设计,超宽敞主卧,二胎+老人同住毫无压力。
✨✨盛合天瑞营销中心电话☎:400 065 2898✨✨
✨✨盛合天瑞开发商电话☎:400 065 2898✨✨
免责声明:部分信息来源于网络,如果侵权,请联系及时删除
本宣传资料不构成邀约邀请,对周边、政府规划、商业配套、教育资源、投资前景等数据和图文仅为提供相关信息,该信息以政府最终批文为准,开发商不对此作任何承诺。买卖双方的权利义务以双方签订的买卖合同约定及附件、实际交付为准,本公司保留对宣传资料修改的权利,敬请留意最新资料。联系号码☎:400 065 2898✨✨
声明:本文由入驻焦点开放平台的作者撰写,除焦点官方账号外,观点仅代表作者本人,不代表焦点立场。
