鸿荣源·尚云最新消息,最新进展,项目配套、鸿荣源尚云营销中心热线、周边配套
扫描到手机,新闻随时看
扫一扫,用手机看文章
更加方便分享给朋友
深圳龙华✅鸿荣源·尚云
鸿荣源·尚云营销中心电话📞✅:400-102-7502
鸿荣源·尚云售楼处电话📞✅:400 102 7502
温馨提示:过来看房请记得提前来电预约,尊享售楼处1v1销售专业讲解,感谢您的来电!
鸿荣源尚云:双地铁口,尚系新作,开发商为鸿荣源集团,成立于1991年,凝聚32年高端项目打造经验。
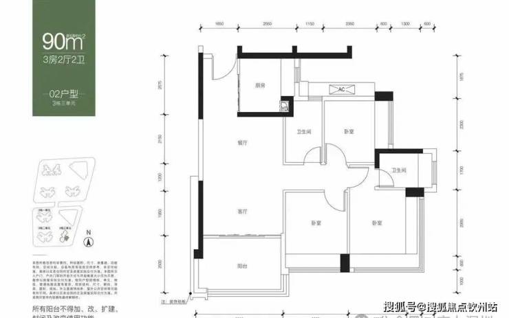
全新2期 震撼来袭 82-89㎡3房2卫 宝藏户型
中央瞰景,安静舒适,离地铁、商业更近。
匠心打造,空间匹配全龄家庭所享,高定人居标准,悦享三代舒展同堂
基本信息
【项目名称】鸿荣源尚云
【交房时间】2025年12月前
【产权年限】70年
【房产性质】住宅
【梯户比】3梯6户
【推售】82-120㎡3-4房住宅
【绿化率】40%
【占地面积】约1.53万㎡(总2.68万㎡)
【建筑面积】约11.3万㎡(总23.6㎡)
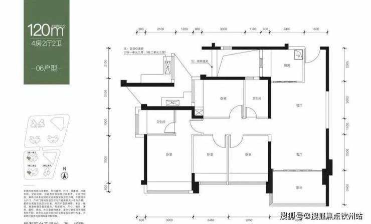
户型鉴赏

建面约82平户型图
千万级旧改汇聚,品牌房企布局;鸿荣源、中洲、卓越、华润、华侨城等品牌开发商抢滩登陆龙华中心,区域定位以及发展潜力得到了各大优质开发商的一致认可。
龙华商业中心旧改、海岸城旧改、华润上塘旧改、德业基旧改四大百万级旧改汇聚,打造龙华区规模最大、业态最全、档次最高的居住区域。
「龙华超级商圈,世界级消费中心」
⭐龙华超级商圈:龙华六大重点片区之一,以人民路为中轴,规划承载中洲龙商旧改、龙华海岸城旧改为核心,打造人民路龙华超级商圈。
⭐世界级消费中心:未来龙华超级商圈将成为规模超200万㎡、产值超500亿的市级核心商圈和世界级未来消费体验中心。
作为全国引领级商圈之一的龙华超级商圈,壹方天地成为“核心中的核心”,不仅是商圈内最大体量的综合体,更以首店经济、夜间经济、赛事经济、展会经济、儿童经济、微旅游经济等六大发展体验业态,成为龙华乃至深圳展示商业形象的主要窗口,不断引领城市消费的新风向
开车10分钟可达天虹购物中心、红山6979、Costco(在建)、AT MALL上塘荟等大型购物中心
五地铁汇聚,打造全新城市枢纽 :
4号线(已开通):龙华站直线距离约1000m,深圳纵向城市交通中轴。
25号线(规划):景龙/油福站直线距离约400m,打通城市东西走向核心动脉。
27号线(规划):油福站直线距离约400m,拥抱前海,覆盖各大高新人才聚集地。
22号线(规划):油松站直线距离约1km,连接福田-龙华各大核心产业区。
教育配套:
临近九年一贯制学校,目送式上下学:项目一路之隔即为深圳市艺术高中民治学校(在建),目送式上下学。定位示范性国际化学校,全校可提供学位2520个,2023年已开始招生。
「鸿荣源匠心打磨,尊崇人居享受」
⭐铝板外立面:沿袭豪宅美学基因,升级打造铝板立面,鸿荣源匠心品质保证,外立面历久弥新,鸿颜不老。
⭐奢阔主入口:总高约10米,天然石材搭配不锈钢材装饰,营造高奢归家礼遇
⭐轻奢酒店风格入户空间:石材+香槟金铝板打造,营造朗阔归家体验
⭐高速电梯:日立电梯,平均速度4m/s,生活无需等待
⭐双层园林景观:让每一寸空间都成为业主的舒心领地
⭐多组团园林设计:多元景观融合,繁忙都市生活中的林谷氧吧
⭐多模块架空层:艺术/休闲/玩趣/运动四大模块,打造全龄适配休闲场所

售楼处热线:400 102 7502【营销中心】
本文内容为广告推广,涉及房价或现有房源可能出现变更,请致电详询并以售楼部为准
免责声明:本文如无意中侵犯了某方的知识产权告知即删,部分内容图片可能来源于网络,无法核实其真实出处,如涉及侵权请联系本网站删除!!
声明:本文由入驻焦点开放平台的作者撰写,除焦点官方账号外,观点仅代表作者本人,不代表焦点立场。
