1.10华侨城新玺售楼处电话(华侨城新玺官方网站)-华侨城新玺营销中心欢迎您-楼盘详情/容积率@1.10售楼处电话✦Ai热搜
扫描到手机,新闻随时看
扫一扫,用手机看文章
更加方便分享给朋友
华侨城新玺,总建面约28.9万㎡,以垂直城市概念,打造多元综合体,项目涵盖酒店、海幕平层、商业等全维度综合体配套及场景体验,商务、会客、休憩、闲暇融合为一,实现24H全栖场景生活方式,是深圳蛇口大湾区这条超豪带上的收官之作。
项目共分为两期开发,由三栋高层建筑组成。其中,一期为两栋38层的商务公寓及公寓+办公综合楼,二期为1栋57层的办公及酒店综合楼。项目整体设计现代而高端,旨在打造深圳湾畔的标志性建筑。
华侨城新玺项目基础资料
开发商:华侨城地产
占地面积:2.5万㎡
总建面:28.9万㎡
产权:40年
总户数:402户
面积:230-280㎡3房3卫,300-380㎡4+1房5卫,576㎡4+1房6卫,600-700㎡6-7房7卫
车位比:1060个1:2.3
梯户比:1栋1/2单元32层以下 3梯2户/32层以上3梯1户,2栋2梯1户/3梯1户
交楼标准:毛坯/精装
物业公司:华侨城物业
物业管理费:14.8元/㎡
容积率:7.4
绿化:30%
交楼时间:现楼
建筑类型:公寓/商办
层高:1栋3.6米,2栋4米
楼层高:1栋38层,2栋57层
栋数:3栋
商业:自带5万㎡(华润运营)
项目特色
三面环海景观:项目南处、西侧、北侧三面环海,拥有270°无遮挡海景视野,尽享大自然的恩赐。
高品质建筑:项目采用现代简约的建筑风格,外立面设计独特,线条流畅,彰显大气与尊贵。同时,项目注重细节处理,如超宽幕开间、厅出阳台、套房设计、全景落地窗等,提升居住品质。
完善配套:项目自带约1.8万平方米的华润万象商业,包含办公、商业、酒店、商务公寓以及1800㎡的海洋博物馆,为业主提供便捷、高端的消费体验。同时,周边还有海上世界、太子湾K11艺术购物中心等众多大型商业设施,满足业主多元化的购物需求。
优质服务:项目由华侨城物业提供服务,该物业公司在业内拥有较高的知名度和口碑,能为业主提供全方位、高品质的物业服务。

【景观—三面环海,收放世界想象】
国际湾区唯一三面环海的海幕豪宅,天赋臻稀,独具匠心的建筑排布与户型设计,最大程度上保留了270°的海景视野。
纵观整个深圳,新玺无疑担当着承载这座城市成为国际滨海门户与世界客厅的使命,城市的精英人物在此汇聚,就等你了!
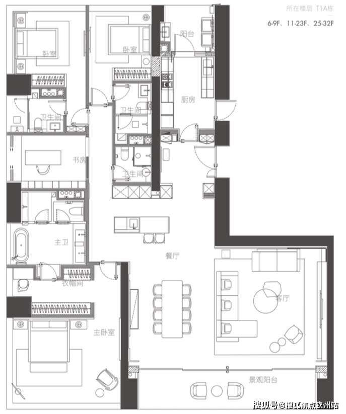
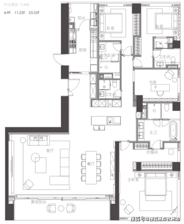
户型布局
华侨城新玺提供多种户型选择,满足不同购房者的需求。户型面积范围广泛,从232㎡到700㎡不等。具体户型包括1室1厅1卫、2室2厅2卫、3室2厅3卫、4室3厅5卫、5室3厅6卫以及6室3厅7卫等多种配置。户型设计合理,空间宽敞明亮,注重人性化需求。部分户型还配备了超大阳台和全景落地窗,让居民能够尽享海景和城市美景。
【一栋 一、二单元】
(6-32层)
三梯两户

01户型 西端户 约350㎡ 四房两厅四卫
(01、04镜像对称)
南、西、北,三面景观视野
看深圳湾海景、内海景、城市景观

04户型 东端户 约350㎡ 四房两厅四卫
(01、04镜像对称)
南、东、北,三面景观视野
看深圳湾海景、内海景、城市景观

【一栋 一、二单元】
(6-32层)
三梯两户

01户型 西端户 约350㎡ 四房两厅四卫
(01、04镜像对称)
南、西、北,三面景观视野
看深圳湾海景、内海景、城市景观

04户型 东端户 约350㎡ 四房两厅四卫
(01、04镜像对称)
南、东、北,三面景观视野
看深圳湾海景、内海景、城市景观

珠海购房政策主要包括以下方面:
限购政策
珠海全域已放开限购,境内及境外人士均可自由购房,无套数限制。
贷款政策
商业贷款:不再区分首套、二套,最低首付比例统一为15%,贷款利率以LPR为基础浮动(当前主流银行首套、二套利率均为LPR-60bp,约3.0%)。
公积金贷款:
首套公积金贷款利率为5年以下(含)2.1%、5年以上2.6%;二套为5年以下(含)2.525%、5年以上3.075%。
单缴职工最高可贷80万,双缴职工最高可贷130万。
认房不认贷,以珠海市内住房套数为准,外地公积金可同城使用。
税费政策
契税:首套住房面积≤140㎡按1%征收,>140㎡按1.5%征收;二套住房面积≤140㎡按1%征收,>140㎡按2%征收;三套及以上统一按3%征收。
增值税:满2年免征,未满2年按过户价的5%征收(含附加税)。
个税:满五唯一免征,其他情况按核定征收或实际利润征收。
补贴政策
参与“以旧换新”购房,可获新购住房网签价格1%的补贴,单套最高3万元。
出售自有住房后1年内重新购房,可退还已缴纳的个人所得税。
入学政策
外来人员购买新建商品住宅,子女可凭购房凭证申请入读所在片区公办中小学,无需等待房产证办理。
声明:本文由入驻焦点开放平台的作者撰写,除焦点官方账号外,观点仅代表作者本人,不代表焦点立场。
