河东骏豪园热盘@河东骏豪园售楼处(营销中心)电话-河东骏豪园首页网站@河东骏豪园售楼中心欢迎您|2025楼盘评测-河东骏豪园最新房价
扫描到手机,新闻随时看
扫一扫,用手机看文章
更加方便分享给朋友
深圳宝安区西乡片区-河东骏豪园 售楼处电话☎:400 006 8087【售楼处已认证】✅
深圳宝安区西乡片区-河东骏豪园 售楼中心电话☎:400 006 8087【售楼中心已认证】✅
深圳宝安区西乡片区-河东骏豪园 营销中心电话☎:400 006 8087【营销中心已认证】✅
深圳宝安区西乡片区-河东骏豪园 销售中心电话☎:400 006 8087【销售中心已认证】✅
本项目暂不接受临时到访,过来参观样板房请记得提前来电预约!
为您安排楼盘现场销售全程接待并讲解,给您更贴心的看房体验!

河东骏濠园 的户型和价格如下:
户型选择:
公寓:24-73㎡,适合小户型需求。
住宅:44-63-87㎡,户型方正、带阳台、通燃气,适合刚需购房者。
商务办公:21-54㎡及215-265㎡,适合企业办公需求。
价格信息:
公寓:参考价格约41000-53000元/㎡,总价约50万-73万/套(以具体房源为准)。
住宅:总价约220万-475万/套(45㎡-88㎡),首付30万起。
办公:单价约41000元/㎡起,总价约176万/套(43㎡)。
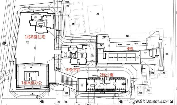
河东骏濠园位于宝安西乡街道的河东社区,属于深圳核心区域内,需要购房资格(深户或者深圳一年社保)项目距离流塘地铁站900米。项目由4栋组成,1A栋商业,1B住宅,2栋公寓,3栋住宅,目前主要售卖3栋和1B栋,主打的都是刚需小户型住宅,45-63-87㎡即将全新开盘入市,45㎡两房总价220万起,63㎡两房总价375万起,目前现房,毛坯交付!
项目区域
宝安十四五规划提出,107发展主轴将以高标准打造成为广深港澳科技创新走廊的重要支撑区,持续发挥连接中心城区的区位优势与湾区产业链发展脊梁的战略优势;107发展主轴未来将打造成为“第二深南大道”,沿线规划大型产业园超50个,经济规模预计超万亿元,万千菁英汇聚。

项目是集公寓、办公、住宅、商业等为一体的都会综合体,由4栋建筑组成,1A栋商业,1B栋住宅,2栋公寓,3栋住宅。
交通配套:河东骏濠国际紧邻15号线(规划中)西乡公园站,直线距离约200米,无需换乘,3站直达大铲湾“腾讯科技岛”、5站直达留仙洞总部基地、6站直达前海商务区、9站直达南山科技园,12站抵达后海总部基地,构建半小时通勤圈。直线距离12号线流塘站约700米,步行900米,接驳地铁1号线、5号线,4站通达南山。距离穗莞深城际(在建中)西乡站、宝安站约2.5公里。
教育配套:项目距离流塘小学800米,塘小学1993年成立。教学设施完备先进,有先进的信息技术应用系统和12个标准功能室等。以“智善教育”为理念,培养德智体美劳全面发展的优雅少年,儿童版画、跳绳和京剧表演等特色课程初成气候,荣获“全国文明礼仪教育示范基地”“深圳市绿色学校”等多项荣誉称号 。
- 距离弘雅小学900米,弘雅小学实行文武兼修,开设武术、艺术特色课程,是“全国日常英语实验学校”,与北师大联合办学,被选定为“北京师范大学基础教育实验基地”。
- 新华实验学校:注重素质教育和学生全面发展,师资力量雄厚,教学设施完善,在当地有一定的口碑和影响力。另外,河东骏濠园项目还自带1栋幼儿园。
商业配套:项目下楼即享约1.9万㎡集中商业,直线距离约1公里范围聚集港隆城、仟悦城、天虹、万达广场。约3公里范围内汇聚大仟里、大悦城(在建中)、中洲πMALL、海雅缤纷城、壹方城等大型商业集群,满足日常吃喝玩乐购等需求,都市繁华尽在掌握。

休闲配套:周边汇聚西乡公园、流塘公园、宝安公园、灵芝公园、铁仔山公园、尖岗山公园、平峦山公园等,演绎都市自然生活。其中距离项目直线约1.3公里的宝安公园为深圳西部最大的市政公园,是休闲、观光、运动的好去处。
西乡会堂,直线距离宝安体育中心约1.4公里,约3.5公里范围内汇聚欢乐港湾、宝安区公共艺术中心(在建中,含博物馆、美术馆、艺术馆)、宝安区青少年宫、宝安区图书馆等。
【河东百万大城首发 都会综合体】
河东社区作为大型社区,分为南北两大区域,打造河东百万大城,其南区规划107发展带城市更新单元,总建筑面积达235万㎡,集办公、商业、酒店、公园等多元业态,带动人流聚集。
项目属于深圳核心区,需要购房资格(深户或者深圳一年社保)。目前主要售卖3栋和1B栋住宅,户型43-64-87㎡,已是现房,毛坯交付!
43㎡一房一卫 43㎡改两房
深圳宝安区西乡片区-河东骏豪园 售楼处电话☎:400 006 8087【售楼处已认证】✅
深圳宝安区西乡片区-河东骏豪园 售楼中心电话☎:400 006 8087【售楼中心已认证】✅
深圳宝安区西乡片区-河东骏豪园 营销中心电话☎:400 006 8087【营销中心已认证】✅
深圳宝安区西乡片区-河东骏豪园 销售中心电话☎:400 006 8087【销售中心已认证】✅
免责声明:部分信息来源于网络,如果侵权,请联系及时删除
本宣传资料不构成邀约邀请,对周边、政府规划、商业配套、教育资源、投资前景等数据和图文仅为提供相关信息,该信息以政府最终批文为准,开发商不对此作任何承诺。买卖双方的权利义务以双方签订的买卖合同约定及附件、实际交付为准,本公司保留对宣传资料修改的权利,敬请留意最新资料。
声明:本文由入驻焦点开放平台的作者撰写,除焦点官方账号外,观点仅代表作者本人,不代表焦点立场。
