2026年度好房:万科未来之光售楼处电话[官方] -万科未来之光营销中心地址-万科未来之光销售中心热搜NO.1电话@最新折扣@万科未来之光2025.12.18
扫描到手机,新闻随时看
扫一扫,用手机看文章
更加方便分享给朋友
万科尖岗山新项目更名为|万科未来之光
将推73-125㎡3-4房户型,约1700套,
深圳【万科未来之光】
💥宝安尖岗山纯豪宅区,精装交付💥
73平,三房一卫,500万起
80平,三房两卫,550万起
98平,四房两卫,750万起
➤万科品牌,万科物业。
项目板块:宝安-尖岗山
占地面积:74085㎡
建筑面积:215570㎡
规划户数:1700户
产品:约73-125㎡三至四房
容积率:2.91
物业类型:小高层、洋房
装修情况:精装修
未来之光家园
万科安居共筑未来社区
宝安&南山双核芯·万科未来社区2.0
精研品质三四房
========= 项目基本信息 ==========
总占地面积:约7.4万㎡
总建筑面积:约30万㎡
容积率:2.91
开发商:深圳安万置业有限公司
物业公司:深圳市万科物业服务有限公司
位置:深圳·宝安新安·广盛路与广泰路交汇处(宝安公园旁)
对话世界的深圳高度
·深圳特区&先行示范区&粤港澳大湾区“三区驱动”
·擎领大湾区“9+2”城市群,汇聚时代机遇
宝安&南山双区驱动
·西部湾区城市带,近邻南山科技园、留仙洞总部基地、宝安中心、前海自贸区等片区,集合向西发展带优质城市资源
高新产业集群的未来人居住区
一山两级 国家级产业集聚区,超30万高新人群引领片区新生。
海陆空轨立体交通,高效互联大湾区
2机场:深圳宝安国际机场、香港机场;
3码头:大铲湾码头、深圳机场码头、固戍码头。
3地铁&干道接驳 通勤快人一步
三轨并联:
·步行约1.2.km可达5号线兴东站,4站宝安中心站、2站西丽站;
·12号线(在建中),上川站约1.9km;
·15号线(规划中),宝安公园站约900米。
干道接驳 :
·京港澳高速入口在旁,南光高速、广深公路、创业二路等路网环绕;一局王者通勤南山科技园,工作与生活高效往来!
12年书香环绕 护航闪光未来
片区优质学府云集,全家每天多睡一小时
项目代建幼儿园,3km内南方科技大学附属中学宝安学校(在建中)、宝安中学(集团)实验学校、新安中学(集团)外国语学校、曦城协同学校等学府汇聚。
南方科技大学附属中学宝安学校 9月开学在即
双一流名校品牌背书(南科大:2023年QS世界大学排名中国内地高校第11,位列广东省内第1)
科创教学 名师护航:42班九年一贯制名校,清华/剑桥师资汇聚,焕新片区教育格局
离城不离尘的安家优选胜地
·背靠尖岗山,不见高楼,绿树成荫,私享低密野奢生活
·6山2水4公园环绕,超76%森林覆盖率,富氧更健康
缤纷活力街区,下楼即享城市烟火
·社区自带建面约1万㎡商业,全系配套满足一站式生活需求。
·约3~5km内,中洲购物中心、宝安万达广场\海雅缤纷城、壹方城等多商圈环绕,缤纷生活触手可及!
万科&安居 强强联袂的稳稳幸福
·38载万科,更懂深圳更懂筑家
·深圳市人才安居集团联合开发建设,为人才,建好家
万科物业 三十余载行业领跑者
·32年服务经验沉淀,连续10年蝉联中国物业管理综合第一
·万科物业在深圳,至今服务16万余户家庭,让更多用户体验物业服务之美好
宝安&南山双核芯·万科S级未来社区
精研品质三四房,为追光深圳的奋斗者定制理想的家
06
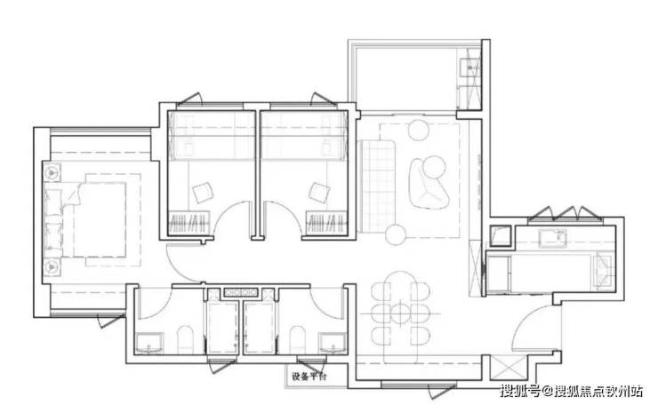
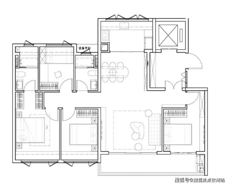
-户型图-
万科凭借多年地产开发经验,再次展现了强大的户型设计能力,73-80㎡做了三房设计,100-115-125㎡四房,小高层、洋房,楼体建筑不高,也为高使用率提供了基础条件
▲73㎡三房两厅一卫
▲80㎡三房两厅两卫
▲80㎡三房两厅两卫
▲100㎡四房两厅两卫
▲115㎡四房两厅两卫
声明:本文由入驻焦点开放平台的作者撰写,除焦点官方账号外,观点仅代表作者本人,不代表焦点立场。
