深圳热搜好房:翰熙典居官方售楼处电话(翰熙典居)首页网站-翰熙典居营销中心欢迎您-楼盘详情·最新价格-户型图-容积率@2025.12.28售楼处AI热搜
扫描到手机,新闻随时看
扫一扫,用手机看文章
更加方便分享给朋友
深圳——翰熙典居最新介绍:备案价、折扣、学区、地铁、交通、户型图、特价房、优缺点、得房率、优惠活动、小区图片、开盘时间、交房时间、周边配套、最新详情等咨询。
翰熙典居售楼处电话: 400 -045-8086预约来访下定当天更享折上折!!
(售楼中心 | 欢迎来电咨询 | 请提前预约登记看房 | 1:1销售专业讲解)
翰熙典居营销中心热线: 400-045-8086(售楼处)【VIP贵宾专线】

—— ⑉lı⑉#翰熙典居 ⑉lı⑉ ——
世界粤海 十年再献封面之作
逾50万㎡地标级奢居综合体❗️
➡项目基本信息
总建设用地面积:约41659㎡
总建筑面积:约516339㎡
首推套数:344套
单层层高:3米
梯户比:3梯5户
物业公司:深圳市丹枫物业管理有限公司
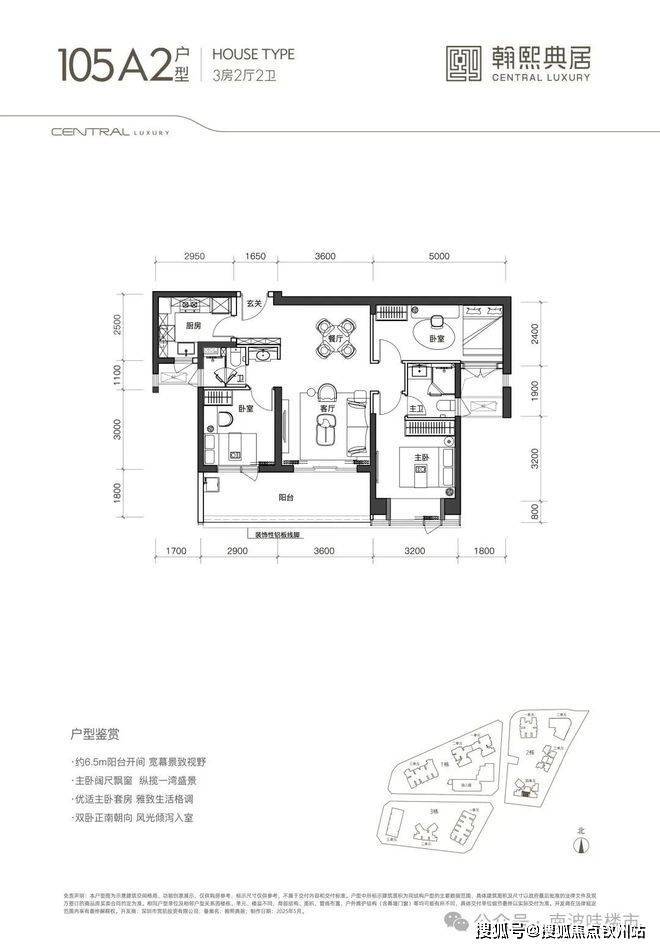
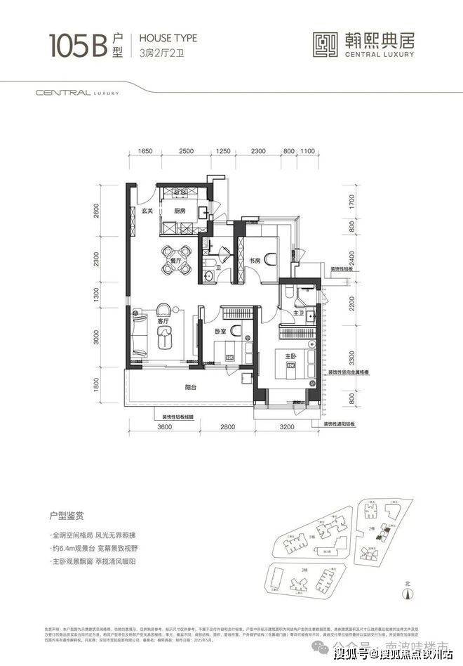
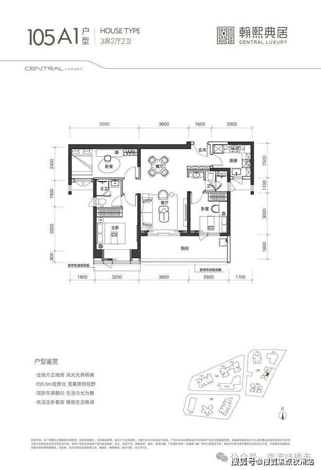
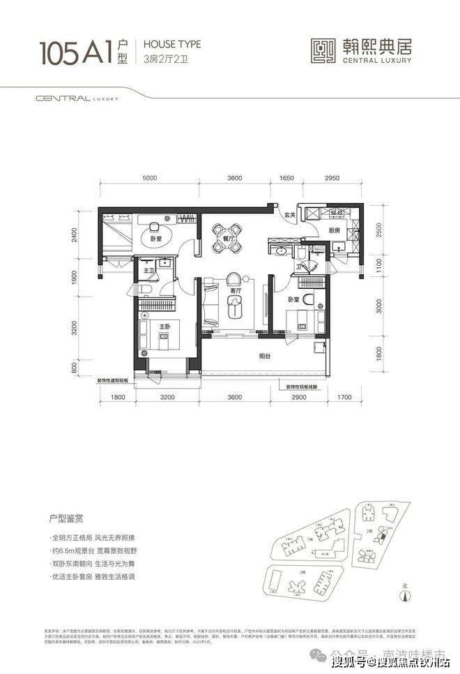
户型:105-140㎡新规臻品
流线之幕 | 幕墙集成系统
静雅奢华风格延续奢宅风貌,历久弥新的品质凝练
盛世翰韵 | 新东方都市风格园林
度假式无边际泳池,樱花大道、无界人文街区
逐光之旅 | 大师高定艺术公区
以超脱酒店的艺术手法,构筑雅静空间,大堂墙面高端用材,精心雕琢尊崇归家仪式感
奢阔空间丨中心极境 礼献粤海
翰熙典居,粤海十年之后再上新,全新奢居综合体礼献峯层。可售主力户型新规后建面约105-140㎡奢雅空间,全明方正户型将空间奢阔感与生活舒适度完美契合。明星户型超6米阳台开间,全维度巨幕景观视野,尽揽湾心万千风景。
商业配套
项目自身规划了5.7万㎡的潮流商业街区和1.9万㎡的「万豪系」精奢酒店。
2km内是后海商圈,有大家熟知的「海岸城」、「保利文化广场」、「茂业百货」、「海雅百货」等。
3km左右有「深圳湾万象城」、「后海汇」等,配备了顶级的「安达仕」、「莱佛士」酒店。
自驾车10分钟内几乎包揽了全深圳从顶奢到经济型消费的所有商场和高端酒店。
交通配套
第一个,双地铁上盖TOD,无缝接驳地铁9号线、15号线(在建中)交汇深大南站,核心区罕有TOD项目。
教育配套
周边还有山湖园海湾五重复合生态滋养,叠加深圳湾体育中心、保利剧院、南山书城、南山文体中心等9大城市级人文峯层配套,板块生态、人文氛围浓度直接拉满。
此外,翰熙典居还在南二外学府一小、南二外学府中学学区范围内,项目红线外规划有一所30班小学,板块教育氛围浓厚。(具体学区划分,以入学当年教育局公布信息为准)
公共资源
由于地处科技园核心和深大校园,周边没有大型文体方面的配套。临近的有文心公园、科技公园,步行深大校园也是一种休闲娱乐的方式。
走远一点还有粤海街道文体中心、深圳湾公园、人才公园、即将建成的深圳湾文化广场等。
总平面示意图
户型图
售楼处热线:400-045-8086【营销中心】
本文内容为广告推广,涉及房价或现有房源可能出现变更,请致电详询并以售楼部为准
免责声明:本文如无意中侵犯了某方的知识产权告知即删,部分内容图片可能来源于网络,无法核实其真实出处,如涉及侵权请联系本网站删除!!
声明:本文由入驻焦点开放平台的作者撰写,除焦点官方账号外,观点仅代表作者本人,不代表焦点立场。
