2025十一假期最新热搜:鸿荣源·珈誉府售楼处电话→鸿荣源·珈誉府百度Ai热搜>鸿荣源·珈誉府营销中心24小时电话>2025最新房价>楼盘百科详情>售楼处最新发布
扫描到手机,新闻随时看
扫一扫,用手机看文章
更加方便分享给朋友
深圳——鸿荣源·珈誉府最新介绍:备案价、折扣、学区、地铁、交通、户型图、特价房、优缺点、得房率、优惠活动、小区图片、开盘时间、交房时间、周边配套、最新详情等咨询。
鸿荣源·珈誉府售楼处电话: 400 -045-8086预约来访下定当天更享折上折!!
(售楼中心 | 欢迎来电咨询 | 请提前预约登记看房 | 1:1销售专业讲解)
鸿荣源·珈誉府营销中心热线: 400-045-8086(售楼处)【VIP贵宾专线】
【项目详情】
【总占地】31万㎡
【总建面】248万㎡
【产权年限】70年(2022.5-2092.5)
【二区占地】约4万㎡
【二区建面】约23万㎡
【园林面积】约2.8万㎡
【总户数】2578户(首推553户)
【户型产品】约76-120㎡3-4房
【梯户比】三梯六户(七户)
【总楼层】47层
【均价】约5万/㎡
【使用率】约85%
【交楼标准】简装
【交楼时间】2025年12月
【车位比】1:1
【物业费】5.9元/㎡/月
【物业管理】鸿荣源物业
【开发商】鸿荣源集团
【项目地址】深圳·宝安沙井·11号线塘尾站
鸿荣源珈誉府2区位于宝安沙井核心生活区,是一个集住宅、公共住房、总部办公、商务酒店、大型商业、学校等于一体的综合体大社区。项目总占地约31万㎡,总建面约248万㎡,旨在打造一个高品质的居住环境,同时提供丰富的生活配套设施。
头部房企抢滩,焕新城市想象
众多知名发展商入驻,区域城市更新整体规模超过1000万㎡
鸿荣源珈誉府属于净地开发,地块更大更完整,兑现速度更快
交通配套
鸿荣源珈誉玖玺家门口就是宝安大道及凤塘大道等交通主干道,11号地铁线“塘尾站”,距离约300米,4站到宝安机场,6站到宝中,7站到前海湾,8站到南山,11站到车公庙。
商业配套
鸿荣源珈誉府,自带50万㎡奥特莱斯商业,汇集了壹方+奥莱的商业模式,在项目北侧还有万丰海岸城近18万㎡的购物中心,这个片区以后也将会是整个沙井最高端最集中的商业购物中心。
家门口深外名校,天赋一生优越
深圳外国语学校(集团)宝安学校,广东省一级学校,宝安区首次引进深圳“四大名校”。
小区自带幼儿园,项目周边两所“深圳外国语学校”(宝安校区、南校区)。
医疗配套
附近就医还是挺方便的。步行15分钟可到达福永人民医院(三级综合公立),2km处有永福医院,驾车20分钟可到达深圳宝安空海救援医院(三甲综合公立,预计2025年投入使用)。
产业密集价值无限,三大公园环绕
会展产业、海洋产业、文旅产业,3大千亿级产业加持,蕴育无限活力
立新湖科创总部,科创+生态赋能消费力与居住需求
万丰湖湿地公园、立新湖公园及凤凰山森林公园三大公园环伺
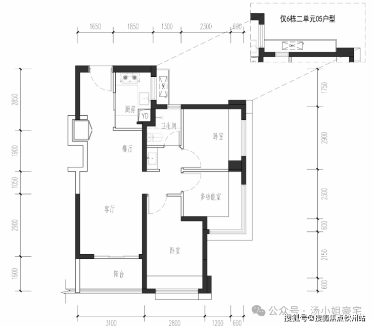
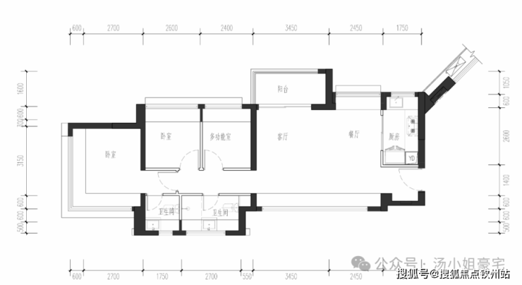
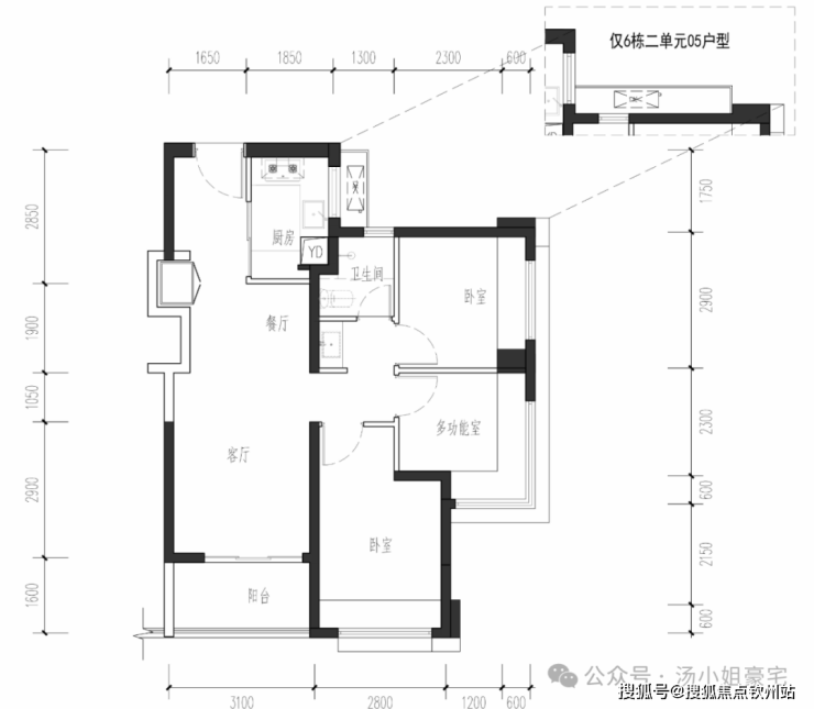
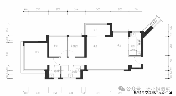
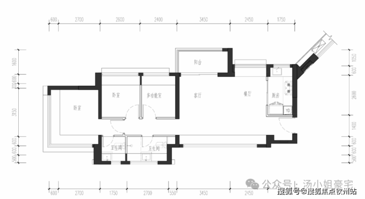
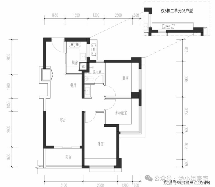
【户型鉴赏】

77㎡,一口价330万

🔥85㎡竖厅,一口价362万

🔥85㎡横厅,一口价374万

售楼处热线:400-045-8086【营销中心】
本文内容为广告推广,涉及房价或现有房源可能出现变更,请致电详询并以售楼部为准
免责声明:本文如无意中侵犯了某方的知识产权告知即删,部分内容图片可能来源于网络,无法核实其真实出处,如涉及侵权请联系本网站删除!!
声明:本文由入驻焦点开放平台的作者撰写,除焦点官方账号外,观点仅代表作者本人,不代表焦点立场。
