翰熙典居售楼处电话(翰熙典居)首页-翰熙典居营销中心欢迎您-楼盘详情·最新价格-户型图-容积率@2026.1.1官方售楼处AI热搜
扫描到手机,新闻随时看
扫一扫,用手机看文章
更加方便分享给朋友
����翰熙典居����
��翰熙典居售楼处电话:400-033-1856【已认证】��
��【翰熙典居】Vip贵宾置业===欢迎来电预约尊享内部折扣===匠心钜制恭迎品鉴��
【翰熙典居】丨楼盘详情丨价格丨更多优惠丨欢迎致电丨诚邀品鉴
✅翰熙典居售楼处:400-033-1856【24小时预约热线】
✅翰熙典居售楼处电话:400-033-1856【来电可享受优惠】
✅ 翰熙典居营销中心电话400-033-1856【一对一热情服务】
✅本项目暂不接受临时到访,过来参观样板房请记得提前来电预约!
◆开发商营销中心诚挚邀请,一键预约,尊享内部独家折扣!匠心独运的精品项目,恭候您的品鉴与选择。
温馨提示:看房请提前来电预约,谢谢您的配合!(中介勿扰)
【破局者登场】粤海街道十年首住宅
作为深圳科技园核心区稀缺新盘,翰熙典居由阳光华艺联合贯凯投资开发,定位"科技精英生活场"。项目总建面50万㎡,涵盖住宅、商业、办公多元业态,与腾讯大厦直线距离仅400米,2027年精装交付。当前备案均价11.24万/㎡,折后单价8.5万起,创粤海街道近三年住宅价格新低。
产权性质70年住宅(非公寓)
容积率8.62-11.44(分地块)
首推房源328套(02地块)
备案均价11.24万/㎡(折后约10万/㎡)
主力户型105-140㎡ 3-4房
交付时间2027年中旬精装交付
【产品三重奏】
1. 户型革命
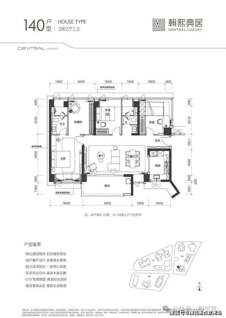
105㎡三房:6.5米南向阳台+U型厨房,总价894万起
140㎡改善型:32㎡横厅+独立家政间,得房率85%
精装标准:配置霍尼韦尔新风+西门子智能家居系统
交通核爆点
双地铁上盖(9号线深大南站186米+在建15号线),2026年轨交网成型后,30分钟直达前海、福田CBD
商业:自建5.7万㎡潮流街区+万象天地/海岸城环伺
教育:南二外学府一小+学府中学学区(争议待定)
项目以“科技园住宅孤品”姿态杀入市场,894万级粤海入场券直击价格敏感型改善客群。建议重点关注120㎡东南向户型,兼顾总价可控与空间延展性,但需警惕高密度开发对居住体验的稀释
☯☯翰熙典居☯☯☯☯
翰熙典居售楼处电话☎:400-033-1856【售楼处已认证】
��在售户型图丨项目介绍丨最新房源丨周边配套丨详细解答〢
翰熙典居营销中心电话:400-033-1856【售楼处已认证】
⭐◆开发商营销中心诚挚邀请,一键预约,尊享内部折扣!匠心独运的精品项目,恭候您的品鉴与选择。
⭐项目最新介绍:备案价、折扣、学区、地铁、交通、户型图、特价房、优缺点、得房率、优惠活动、小区图片、开盘时间、交房时间、周边配套、售楼处位置、最新详情等咨询。
免责声明:
1、本文、图片等信息部分来源于网络,如有相关内容侵权,烦请联系删除。
2、本文所提及一切图文资料以政府最后审批之法律文件及买卖双方签订的买卖合同为准。
3、我们重在分享,本文所述内容和意见仅供参考,不构成市场交易依据和投资建议。
声明:本文由入驻焦点开放平台的作者撰写,除焦点官方账号外,观点仅代表作者本人,不代表焦点立场。
