广州天颐华府售楼处(深圳)广州天颐华府欢迎您售楼中心丨广州天颐华府楼盘详情
扫描到手机,新闻随时看
扫一扫,用手机看文章
更加方便分享给朋友
☯☯广州天颐华府☯☯
☯☯广州天颐华府开发商电话:400-032-8066 【☎☎已认证】☯☯
☯☯广州天颐华府售楼处电话:400-028-8066【☎☎已认证】☯☯
☯☯广州天颐华府售楼中心电话:400-032-8066【☎☎已认证】☯☯
☯☯☞☞Vip贵宾置业==欢迎来电预约尊享内部折扣===匠心钜制恭迎品鉴☜☜☯☯

作为广州市中心稀缺的纯别墅社区,天颐华府以“城央·湖景·豪装·纯别墅”为核心定位,凭借低密度生态基底、顶级圈层资源及全维生活配套,重新定义了城市豪宅的价值标杆。项目占据番禺广场TOD枢纽核心,坐拥粤港澳大湾区几何中心区位,将自然生态与城市繁华无缝融合,为追求品质生活的高净值人群提供“第一居所”理想解决方案。
天颐华府以“城央绝版墅”的稀缺性,成为湾区高净值人群资产避险与品质生活的双重选择。其低密生态基底、全维配套及精装交付模式,不仅重新定义了城市别墅标准,更以“收藏级资产”的定位,在楼市波动中展现出强劲的抗风险能力。对于追求私密性、圈层价值与代际传承的买家而言,天颐华府无疑是广州中心城区最后的纯墅蓝本。
天颐华府
项目区位:
天颐华府位于广州市番禺区番禺广场板块,地处番禺区府、万博商圈与广州南站形成的黄金三角区域。项目紧邻番禺广场TOD交通枢纽,通过“五纵三横”立体路网(新光快速、华南快速、南沙港快速等五纵;富怡路、市莲路等三横)快速连接珠江新城CBD、南沙自贸区及佛山等湾区核心城市。四地铁交汇(3号线、18号线、22号线、17号线)的番禺广场站,使项目成为广州唯一地铁直达珠江新城的别墅盘,25分钟车程通达城市核心区,30分钟辐射湾区城市群。
项目资料:
开发主体:广州市慧嘉房地产开发有限公司
占地面积:87,812.6㎡
建筑面积:46,731㎡
容积率:0.53(广州中心城区最低)
绿化率:43%
交付标准:双拼/联排精装,湖芯独栋毛坯
在售产品:260-396㎡联排、双拼及类独栋别墅,仅129席
产权年限:70年商品房
项目背景:
天颐华府诞生于番禺城市升级与湾区一体化发展的双重机遇下。作为广州“禁墅令”后中心城区稀缺的纯别墅项目,其规划理念聚焦“低密生态+高端圈层”,以7500㎡天然中心湖为核心,打造“三重立体园林+双下沉式庭院”的景观体系。项目由普邦园林大师设计,融合国际5S标准,实现“四水归堂”的风水格局与四季八色园林景观,兼具生态价值与收藏意义。

天颐华府项目定位“第一居所”城市别墅,核心亮点:【城央·湖景·豪装·纯别墅】

城央
① 地处番禺广场板块,四地铁交汇的广州枢纽级交通中心(3 号线、18 号线、22 号线、17 号线)
② “五纵三横”立体路网,25 分钟畅达珠江新城 CBD 国际生活圈。
③ 5 分钟达番禺区政府千亿商圈,享永旺梦乐城、基盛万科中央公园、沃尔玛、金港湾购物广场等商业配套;10 分钟可达市桥的易发商业街、钻汇广场等。
④ 3 公里可达何贤纨念医院、番禺中医院、番禺中心医院、广东省口腔医院等。
(二) 湖景
① 7500 斱中心天然湖,四水归堂,藏风聚气,寓意居者拥揽钱库,真正聚水为财。
② 普邦园林大师匠造,3.8 万㎡的八色四季园林,最大化地发挥华南地区植物多样性。
③ 以健康生活的理念打造了五大运动系统。户外运动系统(4 个网球场、2 个篮球场),中心湖会馆、巴厘岛式无边际泳池、环湖漫步径、花园乐跑绿道。
(三) 豪装
① 华南首创顶奢别墅,豪配五大绿色健康系统:专属中央智能系统、绿色中央空调系统、健康新风系统、全屋实用中央热水系统、科学中央净水系统。
② 突破传统别墅毛坯交付,汲取了国外简约百搭的设计打造时尚经典风格,满足搭配不同风格的家私风格,预留个性化百变空间。
③ 豪华装修不费心即享受,无需堪忧入住后几年都在别墅工地中生活,奢侈品匠超100 个精工细节(首期别墅已收楼广受业主好评)。

纯别墅
① 广州市中心最低容积率仅 0.53,规划广州市中心唯一的纯别墅区。
② 规划 129 栋别墅,有天有地有花园,纯粹高端生活,保证豪宅纯粹性。
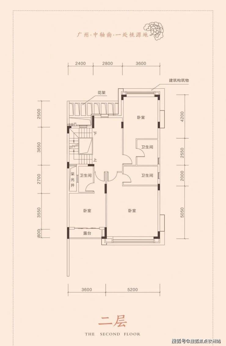
户型鉴赏:
联排别墅(260㎡):使用面积近500㎡,南北通透设计,下沉式庭院与6米挑高客厅,赠送50-200㎡花园。
双拼别墅(312㎡):实用面积达600㎡,独立花园+双主卧套房,拓展空间满足家族居住需求。
湖芯独栋(396㎡):限量10席,270%超高使用率,6.9米中空客厅、150㎡露台及三面采光花园,私享一线湖景。
户型亮点
三重立体园林,仪式感的前庭后院侧院、近百斱的天面花园、双下沉式阳光庭院。
全层主人层,前厅、露台、卧室、卫生间、衣帽间,总统套房级的全功能配套。
双下沉式庭院打造双首层生活,空间满足功能百变的需求。
负一层配置 2 个车位,人车分流实现双首层双入户。

声明:本文由入驻焦点开放平台的作者撰写,除焦点官方账号外,观点仅代表作者本人,不代表焦点立场。
