2025十一ai热搜:观山海家园售楼处电话(观山海家园) -观山海家园营销中心欢迎您-楼盘详情-最新价格-户型图-容积率@2025.10.4
扫描到手机,新闻随时看
扫一扫,用手机看文章
更加方便分享给朋友
观山海家园位于深圳市南山区,是远洋集团打造的低密山居项目,以下是其核心信息:
1. 基本信息
占地面积:约4.2万㎡,总建面约16.3万㎡,容积率2.66,绿化率30.85%。
户型面积:95-138㎡,涵盖3-4房,主力户型为113㎡、138㎡。
梯户比:2梯2户、2梯4户、2梯5户,车位配比1:1.13。
交房时间:2026年12月,装配式简装交付。
2. 核心优势
低密山居:容积率仅2.66,楼间距最大达46米,部分楼栋为17层小高层,得房率超90%。
山景资源:紧邻大南山,一线山景,负氧离子浓度高,园林打造8米高差台地式景观。
交通便利:距5号线荔湾站约600米,15号线开通后,1站到铁路公园站换乘,自驾可快速抵达沿江高速、深中通道。
教育配套:对口深大附中、荔湾小学,周边规划36班小学。
3. 户型亮点
138㎡四房:板楼设计,2梯2户,层高3.05米,约15.5米南向大面宽,6米跑道级阳台,可改5房。
113㎡四房:横厅或竖厅设计,约14.7米大面宽,270°观山飘窗,得房率超97%。
4. 价格与优惠
参考价格:95㎡约827万起,138㎡折后约1316万起。
优惠活动:通过开发商或自媒体渠道预约看房,可享额外折扣。
深圳南山低密小高层:观山海家园在售房源实时更新
95平三房两卫:剩余2栋1单元3 8 12 18层房源,西南朝向
110平四房两卫:剩余1栋1.2单元24层,1栋3单元 18 22 23层,2栋2单元18,23 24层,朝向为西南
115平四房两卫:主要集中在1栋的1.2.3单元,2栋的1单元,最便宜的一套是2栋1单元302(西偏北),其余房源皆为西南朝向
113平竖厅四房两卫:主要集中在5栋的03和04和6栋的03,都是西南朝向
138平四房两卫:剩余房源为4栋1单元01的中高楼层,4栋2单元01和02,西南朝向
观山海家园,由远洋集团打造,总占地面积约4.24万㎡,总建筑面积约16.3万㎡,计容建筑面积约11.64万㎡,容积率2.65,绿化率30.85%,共由10栋总高17-25F住宅组成,有8栋塔楼,2栋板楼设计,其中1栋1/2单元住宅24F,1栋3单元住宅23F,2栋1单元住宅19F,2栋2单元住宅24F,2栋3单元住宅22F,3栋1/2单元/4栋1/2单元住宅17F,5栋/6栋住宅25F,配建有公交首末站。
总规划870户,全部是商品房住宅,地下室有3层,规划停车位987个。

观山海家园4栋纯正板式设计,空间皆遵循“宽厅阔室、南北贯通”的居住法则。
方正纯粹的户型格局,最大限度减少冗余拐角,让每一寸空间都沐浴在明亮之中。无论清晨初露的熹微,还是午后倾泻的暖阳,都能无拘无束地漫流至客厅、餐厅的每个角落,甚至穿梭至更深处的静区卧室,实现的“引光入室,无暗角之忧”。

项目交通
项目距离环中线5号线荔湾站约800米,步行大约15分钟,日常可保障幸福通行。
从荔湾站出发,搭乘5号线可便捷换乘至前海、宝中、西丽枢纽、深圳北站等核心区域,南下赤湾站则可换乘2号线到达蛇口、后海、华侨城等地。
自驾方面,项目周边交通便利,临近多条主干道及高速路,未来妈湾跨海通道的开通将进一步增强项目的交通优势,使前往大铲湾企鹅岛等地更为便捷。
配套商业:
西侧有泛海城市购物广场,周边还有山姆会员商店,生活相当便捷。
教育方面:
项目周边拥有15所幼儿园、4所义务教育学校,还有荔湾小学和深大附中等学校。
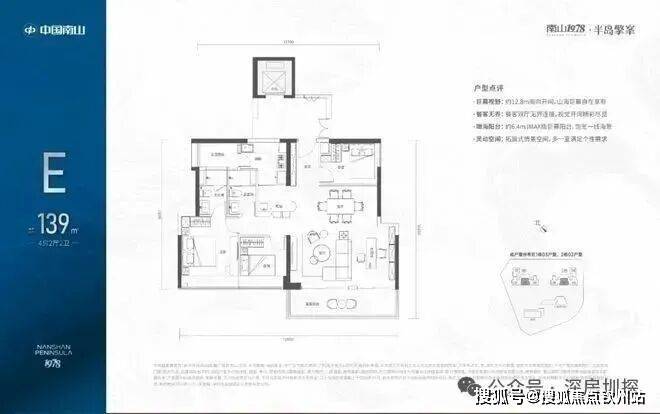
户型图;
建面约95㎡3房2卫
该户型为西南向(部分户型看海)或东北向看山景,是传统的竖庭格局,南北通透。最大亮点是,阳台从客厅对出连通到次卧,显得比较宽敞。特别是对于三代同堂的家庭,适合老人早期锻炼。
建面约108-110㎡4房2卫
该户型为西南向或东南向,竖庭设计,南北通透,阳台也是连通到次卧对出,比较宽敞。户型动线也比较清晰,动静分区合理,特别是两个卫生间紧靠在一块。
建面约113㎡4房2卫
竖庭格局,西南向,基本居住功能与建面约108-110㎡4房2卫一致,但格局不一样,从目前公布的户型图上看,主要是主卧空间有了更大的提升,比如可以放更大一点的衣柜。但从位置上看,它所在的楼栋更靠近主干道,会有噪音影响。
建面约115㎡4房2卫
东南或西南朝向以及西北朝向,有3种户型格局,但整体差异并不大,都是横厅设计,阳台也都非常宽敞。主要核心区别是阳台的设计,这应该是为了贴合楼栋朝向、景观所做的调整。
翰熙典居是位于深圳南山区粤海街道的地标级奢居综合体,由阳光华艺集团打造,总占地约7万平方米,总建筑面积逾50万平方米。以下是其核心信息:
项目概况
定位:集住宅、商业、办公、酒店及公共配套于一体的综合社区,分三期开发,总户数3030套,其中可售商品房714套。
户型:主力户型为105-140㎡的3-4房,新规设计,得房率高达90%左右,部分户型带超6米宽阳台或飘窗,空间利用率高。
价格:折后均价约10万/㎡,单价8.5万/㎡起,105㎡户型总价约894万起,140㎡户型约1457万起。
核心优势
地段与配套:
交通:紧邻地铁9号线深大南站,15号线(在建)预计2028年通车,串联前海、宝中等核心区域;自驾15分钟可达福田CBD。
教育:对口南二外学府一小+学府中学,自带12班幼儿园,周边有深圳大学等优质教育资源。
商业:自带约5.7万㎡潮流街区,2公里内覆盖海岸城、万象天地、深圳湾万象城等大型商圈。
医疗:距离深圳大学医院约828米,南山区人民医院约1.2公里。
产品设计:
户型亮点:105㎡户型采用双龙抱珠格局,主卧带80cm大飘窗;120㎡户型有270°观景书房;140㎡户型南北通透,主卧套房超40㎡。
精装标准:高端定制装甲门、岩板地面、德系卫浴等,部分户型赠送三年平安家庭财产保险。
🍎免责声明:本文如无意中侵犯了某方的知识产权告知即删,部分内容图片可能来源于网络,无法核实其真实出处,如涉及侵权请联系本网站删除!!!
声明:本文由入驻焦点开放平台的作者撰写,除焦点官方账号外,观点仅代表作者本人,不代表焦点立场。
