首页网站【叠溪花园.臻院】✆新房热搜【叠溪花园.臻院】持续火爆中【叠溪花园.臻院】✆售楼处电话⋙预约看房⋙最新楼盘百科详情⋙房价⋙户型图2025.11.4
扫描到手机,新闻随时看
扫一扫,用手机看文章
更加方便分享给朋友
…叠溪花园.臻院……叠溪花园.臻院…
 
 
 
 
 
 
 
 
 
 
 
 
 
 
 
1、位置:广州-增城-科教城旁
2、占地面积:约27.6万㎡
3、建筑面积:约81万㎡
4、容积率:总体2.0,四期仅0.6
5、绿化率:30%
6、总户数:总体约5200户,四期约359户
7、车位配比:四期别墅区621个(1:1.7)
8、物业费:高层2.8元/㎡,别墅5元/㎡
9、交付标准:毛坯交付
【有人气‼】7年大城 别墅区难得居住氛围
已拥超4900户业主,入住率高达70%,是难得的拥有浓郁居住氛围的城市别墅区。
 
 
【有学校‼】暨大附小 双公办学校建在社区里
【暨南大学附属崇德小学】依托暨南大学优质教育资源,是暨南大学首家公办附属小学。
【朱村二幼】18班制公办幼儿园,开展5大特色课堂与6大户外活动。
目前,两所学校均已开学,仅面向户籍业主招生
 
 
 
 
 
 
【有配套‼】别墅级配套 现成已运营无需等待
1)约3000㎡星级运动会所(恒温泳池、篮球场、羽毛球场、瑜伽室、儿童乐园等)
2)2家生鲜超市(惠嘉隆超市、匠心优鲜超市已进驻)
3)约2000㎡有氧运动馆(篮球场、羽毛球场等)
4)约8000㎡风情商业街(餐饮店、药房、水果店已进驻)
5)约1.5万㎡社区生态园林(亲子双泳池、篮球场、羽毛球场、儿童游乐场等)
6)社区内配建社区卫生服务中心、公共图书馆
 
 
【有颜值‼】现代中式风格 东方禅意园林
建筑提炼融创“宜和山水”系别墅的精粹,采用更简洁的“唐代建筑”风格;
 
 
园林提炼合景泰富最高级别的“臻系”园林精粹,打造禅意园林。
以“桃源深处·自然栖居”为主题,融揉现代与东方园林之美,通过枯山水、水景、石雕、特色植被造景,打造世外桃源的景观。
 
 
【靓户型‼】低总价住大空间,完胜高层住宅
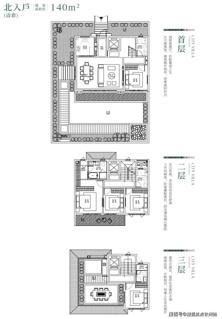
1)【建面约148㎡ 联排别墅】
约148㎡可做5房4卫,买148㎡赠送182-242㎡,赠送率最高达160%;
【首层】
O 坐北向南,纯南向,全屋实现南北对流
O 10米大面宽,首层视野极佳
O 最大约140㎡大花园,前庭后院设计
【二层】
O 3开间卧室全南向,阳光充足,明亮通透
O 主卧大套间设计,配衣帽间与浴缸卫生间
O 主次卧与6.8米大阳台相连,美景尽收眼底
【三层】
O 星空大露台,最大约43㎡全赠送
O 多功能房间半赠送,拓展生活空间
 
 
2)【建面约178㎡ 联排别墅】
约178㎡可做5房5卫(含2套房),买178㎡赠送260㎡,赠送率高达155%;
【首层】
O 12米大面宽,超大餐客厅,尽显豪华气度
O 约160㎡大花园,前庭后院,养花种树
O 中西厨设计,让太太一见倾心
【二层】
O 3开间卧室全南向,通风采光俱佳
O 主卧大套间设计,配衣帽间与浴缸卫生间
O 双套间设计,享受舒适睡眠空间
O 主次卧与8.5米大阳台相连,美景尽收眼底
【三层】
O 星空大露台,最大约54㎡全赠送
O 多功能房间半赠送,琴棋书画,拓展生活兴趣
 
 
【多亮点‼】4大产品亮点,市面稀缺别墅
亮点1:户户赠送大花园,前庭后院
约90-160㎡前后花园,前庭养花,后院种树,点缀些许生活情趣,斟一壶茗茶,读一本闲书,邀几位好友小聚,午后时光亦会因此变得美好而缓慢。
 
 
亮点2:10-12米大面宽,首层超阔视野
最大约12米大面宽,轻松进阶宽境人生,将空间视野无限延伸,广纳无界自然与非凡气度。
 
 
亮点3:全赠送星空露台,享受顶层乐趣
约43-54㎡顶层露台,根据主人爱好,打造楼顶的莫奈花园、搭建户外烧烤棚、星光露台等,有空可邀约三五知己,在露台上啤酒烧烤、品酒品茶、麻将扑克、聊聊人生等,一边欣赏无边的美景,一边享受顶层露台带来的生活意趣
 
 
 
 
 
 
 
 
声明:本文由入驻焦点开放平台的作者撰写,除焦点官方账号外,观点仅代表作者本人,不代表焦点立场。
 
 
 