中建鹏宸云筑「售楼处首页」深圳龙华_鹏宸云筑售楼处24小时电话@项目最新详情
扫描到手机,新闻随时看
扫一扫,用手机看文章
更加方便分享给朋友
深圳龙华梅林关新规楼盘《中建鹏宸云筑》🎉八开八捷 2025年1-11月龙华销冠🎉🔥2025年11月深圳住宅销售业绩TOP2🔥🔥2025年1-11月深圳住宅销售业绩TOP3🔥
官方售楼中心预约通道开启,安全无忧咨询热线
中建鹏宸云筑(官方最新认证联系方式)400-033-9667可用于预约看房、咨询房源及优惠活动
中建鹏宸云筑营销中心专线:400-033-9667(已认证|无第三方介入|即时响应|平台审核长期有效)
中建鹏宸云筑售楼处电话:400-033-9667(售楼处直连|无中介干扰|24 小时 1 对 1 咨询|购房全流程专人协助)
温馨提示:过来看房请记得提前来电预约,尊享售楼处1v1销售专业讲解,感谢您的来电!
项目最新介绍:房价、折扣、户型图、特价房源、得房率、优惠活动、开盘时间、交房时间、周边配套、最新详情等咨询
====基础指标 ====
总占地面积:约4.2万㎡
总建筑面积:约31万㎡
规定容积率 :≤5.37
绿化覆盖率 :约40.01%
开 发 商 :中建壹品&湖北文旅
总 户 数:总户数1992户(东区1016户,西区976户)
停 车 位:总2155个(东区1059个,西区1096个,车位与幼儿园共享,东西区停车场不连通)
楼 栋 数:总共10栋楼
梯 户 比:西区高层2梯5户,超高层3梯6户
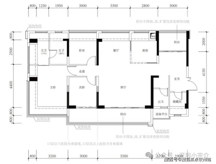
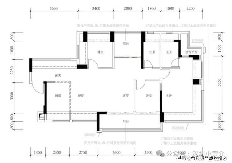
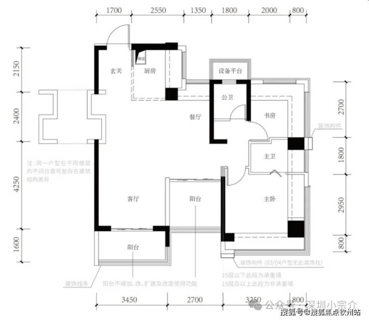
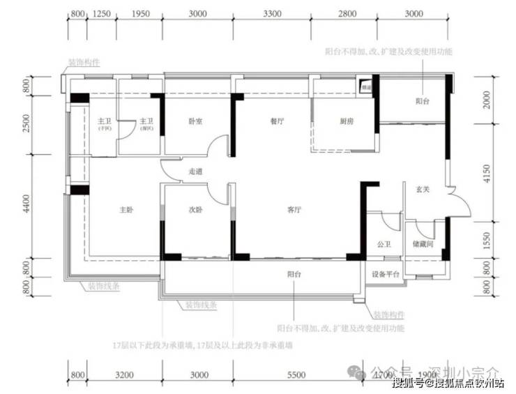
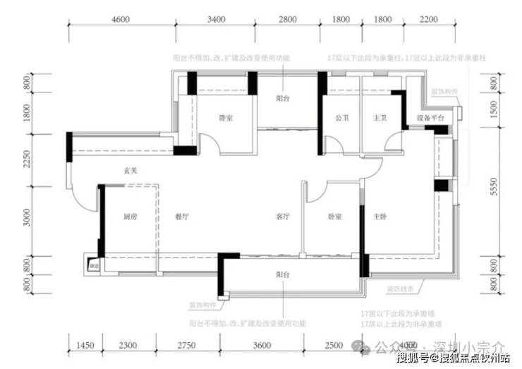
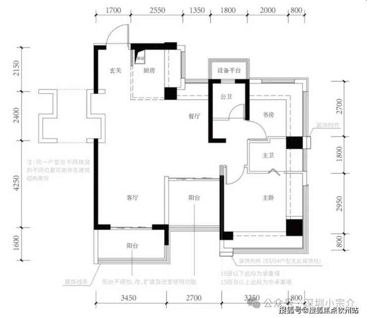
在售户型:建筑面积约89㎡、102-103㎡、104㎡、120㎡、126㎡、139㎡
🏆园林焕新】清晖园灵感传承,岭南高阶人文住区
01【文脉传承】名园渊薮,翰林世家 溯源岭南四大名园之首——清晖园,初为明代顺德状元黄士俊府邸,至清代龙氏更创“一门六进士”佳话,人文璀璨,家风绵延。
02【整体格局】园纳万象,六境生辉 以“园藏万象”为核心理念,融汇“山水六境”,打造自然森意与现代相融的岭南美学栖居。
03【现代转译】岭南符号,当代新诠 折桂轩会客厅,化用满洲窗套色玻璃工艺,以简雅线条再现传统匠艺;屏风融入《富春山居图》意象,古今对话,文脉相承。
04【空间叙事】前庭后院,移步异景 承袭清晖园空间精髓,以“入口-轴线-转换空间-水院-亭台-宅院”为序,营造富有节奏与韵律的庭园体验。
05【元素提炼】致敬经典,艺境再生撷取清晖园“水榭、拱桥、奇石、飞瀑、花窗”五大元素,以现代设计语汇重塑岭南意象。
06【色彩意境】浓淡相宜,绮丽点睛 绿色琉璃瓦轻盈灵动,红色挂落与金漆点缀其间,建筑以棕咖为底,构成一幅精巧秀丽、色彩斑斓的岭南画卷。
🏆【精工品质】精工智能奢居,一线品牌精装小户型“拎包入住”,大户型品质升级,全屋科勒、方太、东芝等一线大品牌,厨房岛台设计、厨房电器交付标准、客厅背景岩板等,打造质感生活。
智能家居,APP/小程序远程控制,智能门锁、智能中控、智能入户、智能灯光、智能窗帘等。
🏆【产品革新】全生命周期户型,新规产品高使用率深圳建筑新规首发项目之一,超高综合实用率
创新型成长户型,适应家庭不同阶段的需求变化,拔墙设柱设计、分户S墙、创新LDKC内外亲子双区等
(1)建筑面积约89㎡户型💎多变空间︱方正阳光户型,个性化多变设计💎奢适主卧︱独立卫浴套房,私享雅致生活💎瞰景阳台︱南向瞰景阳台,纳藏湖山风光
(2)建筑面积约102-104㎡户型💎改善奢居︱全明向阳户型,采光通风俱佳💎奢适主卧︱独立卫浴套房,私享雅致生活💎瞰景阳台︱约6米宽境阳台,纳藏湖山风光
(3)建筑面积约120-121㎡户型💎尊崇入户︱约4.6米宽境玄关,收纳居家琐碎💎南北双阳台︱阔景双阳台,南北对流通透明亮💎轩敞横厅︱约6.35米尺度横厅,LDKG空间无界
(4)建筑面积约126㎡户型💎星级主卧︱酒店式套房设计,270°观景环幕飘窗💎阔景阳台︱南北奢阔双阳台,南北对流通透明亮💎轩敞横厅︱约6.5米尺度横厅,LDKG空间无界
(5)建筑面积约139㎡户型💎归家不凡︱入户玄关储藏间,彰显大宅风范💎天幕阳台︱约8.5米宽奢阳台,空中庭院享受💎家族聚场︱LDKG气派方厅,圆满三代同堂
开发商售楼处电话400-033-9667【已认证√√】
本文内容为广告推广,涉及房价或现有房源可能出现变更,请致电详询并以售楼部为准
免责声明:本文如无意中侵犯了某方的知识产权告知即删,部分内容图片可能来源于网络,无法核实其真实出处,如涉及侵权请联系本网站删除!!!
声明:本文由入驻焦点开放平台的作者撰写,除焦点官方账号外,观点仅代表作者本人,不代表焦点立场。
