豪宅热搜TOP:中建鹏宸云筑售楼处电话→中建鹏宸云筑首页热搜24小时电话→最新房价→楼盘百科详情→营销中心最新发布@Ai
扫描到手机,新闻随时看
扫一扫,用手机看文章
更加方便分享给朋友
…中建鹏宸云筑……中建鹏宸云筑…

最新消息:
中建鹏宸云筑,7栋月底加推!89-121平精装3-4房
目前在售:
1-2栋
3梯6户 总高44/45层
91平折后516-535万(40-44层),126平折后676-735万(楼层可选)
8栋
103㎡,91套,均价5.64万/㎡,开盘5.1-5.9万/㎡,总价526-604万
118㎡,31套,开盘5.5万/㎡,开盘5.1-5.7万/㎡,总价604-668万
139㎡,31套,开盘均价6万/㎡,单价5.4-6.2万/㎡,总价756-863万)
9栋
104㎡:折后总价约523-611w
120㎡:折后总价约600-687w
【鹏宸云筑·湖山新作】
国庆热销8亿 实力制胜 荣光加冕
六开六捷 2025年4-9月龙华销冠
西区7栋,本月底加推
基础指标
•总占地面积:约4.2万㎡
•总建筑面积:约31万㎡
•规定容积率 :≤5.37
•绿化覆盖率 :约40.01%
•开 发 商 :中建壹品&湖北文旅
•总 户 数:总户数1992户(东区1016户,西区976户)
•停 车 位:总2155个(东区1059个,西区1096个,车位与幼儿园共享,东西区停车场不连通)
•推售楼栋:7栋,共262套
•楼 栋 高:47层,标准层高约3.1米
•梯 户 比:西区高层2梯5户,超高层3梯6户
•推售户型:建筑面积约89㎡、103㎡、121㎡
•项目地址:龙华·8号仓旁·华南数字超核
•导 航:鹏宸云筑·岭南美学馆(华南路旁)
【7栋进阶美宅】必买理由
【口碑见证】超3000批客户冻资鉴证,超千户业主认可
【品牌钜献】双国匠联袂钜献,品质保障行业标杆
【城市中轴】十字中轴交汇,定鼎湾区极核
【区域跃升】梅林关&华南数字超总,区域腾飞
【配套迭代】全维度配套服务,进阶改善首选
【社区进阶】建面约31万㎡人文高阶住区,纯粹圈层
【园林焕新】清晖园灵感传承,岭南高阶人文住区
【精工品质】精工智能奢居,一线品牌精装
【产品革新】全生命周期户型,新规产品高使用率
【口碑见证】超3000批客户冻资鉴证,超千户业主认可
【深圳顶流热盘,六开六捷,传奇加冕】
历经六次开盘,次次热销全城,首开日光大捷,持续创领TOP榜
【实力红盘,热销鉴证,品质口碑认可】
2025年上半年深圳新房销售金额TOP2
4-9月蝉联龙华区网签套数TOP1
超1000批业主认购,品质口碑双赢
【品牌钜献】双国匠联袂钜献,品质保障行业标杆
中建三局——中国建筑业竞争力百强企业榜首,世界500强企业入深40余载,与深圳共生长,从国贸大厦、地王大厦,到春笋、春茧,再到深圳国际会展中心、宝安国际机场T3航站楼等,在深承建工程总建面积逾3亿m²,2200多项深圳地标及民生工程。
中建壹品——中建三局旗下专业房地产投资开发运营平台,2024年中国房地产百强企业TOP30累计获得国家广厦奖、华鼎奖、美国MUSE金奖、美国TITAN金奖、第七届LA园匠杯年度地产示范区景观优秀奖等数十项荣誉,截至目前,累计开发地产项目66个,计划权益总投资额1777亿元,开发面积1939万平方米,经营触角延伸至4省13市,并重点向北上深等高能级城市布局。
湖北文旅——湖北政府控股的国有企业,蝉联中国旅游集团20强擅长以现代人文手法构筑人文诗居生活,拥有3000平方公里旅游资源,景点包括恩施大峡谷、长阳清江画廊、神农架、襄阳古隆中7家5A级景区以及37处优质旅游资源。
【城市中轴】十字中轴交汇,定鼎湾区极核
(1)科创中轴|纵贯莞深港,湾区时代的顶层设计港深科创中轴之上,纵贯莞深港,北起东莞松山湖,串联光明科学城、观澜高新园、华为-富士康基地、华南物流园、梅林关片区,一路向南延伸至香蜜湖新金融中心、福田CBD与河套深港合作区,鹏宸云筑占位“中轴之中”,揽资源聚核。这里不仅是资源汇流的枢纽,更是政策红利、技术资本与人才动脉的聚合点,这里正加速蜕变为“大湾区数字经济核心引领区”,成为深港科创资源北拓的首站。
(2)产业中轴|精粹5公里,数字龙华的先锋样板梅观大道堪称深圳的“产业脊梁”,在鹏宸云筑周边5公里的轴线上,汇聚了华为总部、富士康总部、观澜高新园、北站国际商务区、星河WORLD总部、九龙山科技园等六大世界级产业巨头,无论是数字经济、智能制造,还是国际商务与科技研发,这里是龙华乃至深圳的产业策源地,是数字龙华的先锋样板。
(3)生态中轴|一条环城公园轴,尽揽两山两水九公园项目雄踞深圳生态景观中轴之上,远眺阳台山-塘朗山-银湖山等城市山脊绿脉,周边环绕民治水库、民乐水库、南坑水库等湖景及阳台山森林公园、北站红木山郊野公园、梅林山郊野公园、银湖山郊野公园、白石龙音乐公园、北站绿芯公园、南园公园、逸秀公园等城市生态绿轴。小区楼下就是民悦公园(规划中,总投资约1.7亿元,内建环水库人行步道、娱乐广场、运动休闲游乐设施等。
【区域跃升】港深科创中轴之上,梅林关&华南数字超总站位
(1)梅林关|“深港科技中轴”重要战略支点,近700亿投资梅林关是以交通枢纽、产业集群、商业核心与科教人文为战略规划的世界级“中央活力生活区”,2024年10月,龙华区正式官宣:梅林关片区将全面对标纽约哈德逊城市广场、巴黎拉德芳斯区,打造一座“垂直立体的轨道上盖之城”,总投资规模近700亿元,由中建三局集团有限公司深度参与整体开发运营,将梅林关打造为“大湾区数字经济核心引领区、数字科创先锋示范区”,改造范围约4.63平方公里,预计新增开发量180万平方米,推动片区年总产值突破1500亿元,创造近6万个高端就业岗位。
(2)华南数字超总|四大微城市之一,湾区高密度数字集群华南数字超总规划占地约60万平方米,以产、学、研、住、休一体化自循环空间规划,计划引入世界500强企业进驻(目前世界500强企业【海克斯康】已落户于此,已集聚35+龙头名企,数字产业集群度达95%),将打造成为继腾讯企鹅岛、深圳湾超级总部基地、香蜜湖之后深圳第四大微城市,涵盖人工智能、5G技术、工业互联网、云计算、智能终端、新能源等高密度数字集群产业,未来可吸纳约1.5万个高新科技产业人才、年产值将达到500亿元。)
【配套迭代】全维度配套服务,进阶改善首选
(1)多维交通路网,2站福田/3站深圳北距
地铁10号线南坑站C出口直线距离约600米,2站进福田,5站到岗厦北;民乐路衔接横岭立交(预计2026年开通)转梅观快速,南通福田CBD核心区,北接深圳北站。
(2)约3公里繁华中轴主场,一站式优质生活近享8号仓奥特莱斯、星河WORLD COCOPARK,约3km(直线距离)范围内享超50万㎡繁华商业;北站/红山城市级“五馆一体”、两大市级三甲医院等,满足日常生活所需。
(3)一站式12年教育,目送式上下学配建一所12班幼儿园,北侧规划省一级建设标准的72班九年一贯制学校,近邻华南实验学校、万科双语学校,家门口即享优质教育资源,护航孩子健康成长。

【社区进阶】建面约31万㎡人文高阶住区,纯粹圈层总占地约4.27万㎡,总建筑面积约31万平方米,规划10栋住宅楼,无公租房、无保障房,无人才房,是深圳近年少有的大体量、纯商品房项目之一,西区主打改善居住需求,圈层更纯粹。
(1)建筑面积约89㎡户型
多变空间︱方正阳光户型,个性化多变设计
奢适主卧︱独立卫浴套房,私享雅致生活
瞰景阳台︱南向瞰景阳台,纳藏湖山风光
(2)建筑面积约103㎡户型
改善奢居︱全明向阳户型,采光通风俱佳
奢适主卧︱独立卫浴套房,私享雅致生活
瞰景阳台︱南向宽境阳台,纳藏湖山风光
归家至礼︱入户玄关收纳,礼遇从容生活
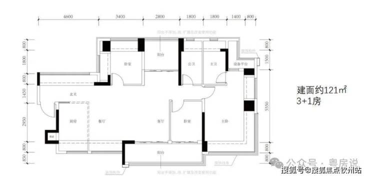
(3)建筑面积约121㎡户型
尊崇入户︱约4.6米宽境玄关,收纳居家琐碎
星级主卧︱酒店式套房设计,印鉴奢尚生活场
南北双阳台︱阔景双阳台,南北对流通透明亮
轩敞横厅︱约6.35米尺度横厅,LDKG空间无界
声明:本文由入驻焦点开放平台的作者撰写,除焦点官方账号外,观点仅代表作者本人,不代表焦点立场。
