招商望海玥家园售楼处电话(招商望海玥家园预约热线) 招商望海玥家园售楼处地址得房率-方位朝向-最新价格-户型图-容积率❥AI热搜2025.11.13
扫描到手机,新闻随时看
扫一扫,用手机看文章
更加方便分享给朋友

最新消息 / INTRODUCTION

蛇口2号线东角头站旁【望海玥家园】内部清盘持续爆卖,已去化超一半!深圳湾一线海景+地铁口+燃气公寓,这配置绝了!叠加完全部媒体返利后,约总价180万起就可以拿下一套租金可到7500-8000的小户型!
南山蛇口招商望海玥家园推出部分工抵房,单价最低5万/㎡左右。
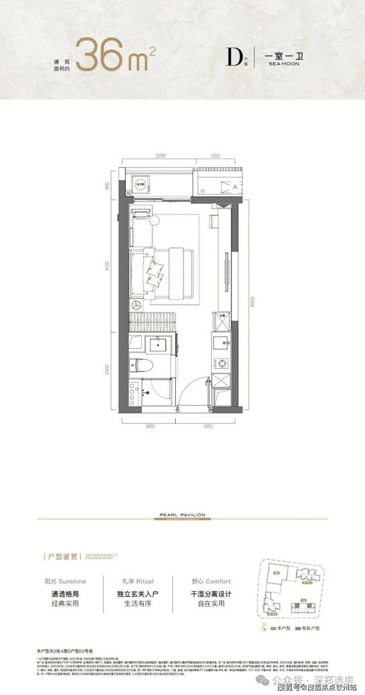
1001房36㎡,一口价1879987,单价52221
1003房48㎡,一口价2906753,单价60557
1006房44㎡,一口价2509554,单价57035
1010房60㎡,一口价3911502,单价65191
1012房36㎡,一口价1880468,单价52235
总价:直降近30%左右
单价:之前7万➕,现在5万➕,还有额外媒体返利优惠!
基础信息:
开发商:招商地产、润德地产、渔二实业
物业:深圳招商物业管理有限公司
占地面积:9072平方米
建筑面积:65772平方米
总栋数:3栋(2栋住宅+1栋公寓)
总楼层:公寓39层,住宅45层
总户数:784套(住宅395套,公寓389套)
车位:待定
绿化率:%
容积率:7.25
物业费:待定
产品类型:(住宅、公寓)
梯户比:三梯五户
状态:(预计下周开展示厅)
学校:育才太子湾学校
望海玥家园位于蛇口老城区,毗邻半岛城邦、南海玫瑰等豪宅区,享有“二线海景”。南侧老小区部分遮挡海景,少数房源可看海。项目享有蛇口滨海设施,如歌剧院、渔人码头、滨海长廊。
交通配套
步行前往2/8号线的东角头站200多米,2站到海上世界,4站到后海,5站到科苑,7站到高新南。
此外,13号线二期与东角头站接驳,该线路计划在2025年开通运营,届时地铁将直连深圳歌剧院,深圳湾口岸、西丽枢纽中心等片区。
教育配套
项目小学和中学均属于蛇口育才教育集团太子湾学校招生范围,距离学校直线在1公里左右,步行约1.4公里。
太子湾学校小学部前身为海湾小学。2017年9月,太子湾学校中学部建成后,与原海湾小学合并为九年一贯制学校并纳入育才教育集团内。
商业配套
项目本身规划约1万平商业,加上周边社区带有底层商业,基本满足日常购物需求。虽然片区内有多个大型商超,如海上世界、宝能·all city购物中心、City花园城、海岸城购物中心、包括太子湾K11等,但自驾或搭乘地铁都在15-20分钟左右。
休闲配套
项目一路之隔就是蛇口广场,周边还有在建的深圳歌剧院项目,远一点还有深圳湾公园,都可以作为日常休闲娱乐的去处。
项目平面图:
项目户型图:
免责声明:本资料文字、数据和图片仅供参考、不作为要约或承诺,本文如无意中侵犯了某方的知识产权告知即删,部分内容图片可能来源于网络,无法核实其真实出处,如涉及侵权请联系删除!
声明:本文由入驻焦点开放平台的作者撰写,除焦点官方账号外,观点仅代表作者本人,不代表焦点立场。
