九月热搜:新世界临海揽山【新世界临海揽山】售楼处电话→新世界临海揽山售楼处地址→交楼时间→2025最新价格@2025-09-18
扫描到手机,新闻随时看
扫一扫,用手机看文章
更加方便分享给朋友
新世界·临海揽山,118㎡3房两厅两卫,单价10.8万/㎡起,总价约1280万起。
新世界·临海揽山,户型和价格情况如下:
一、在售户型及价格:
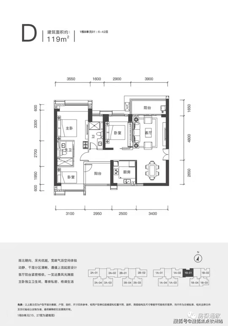
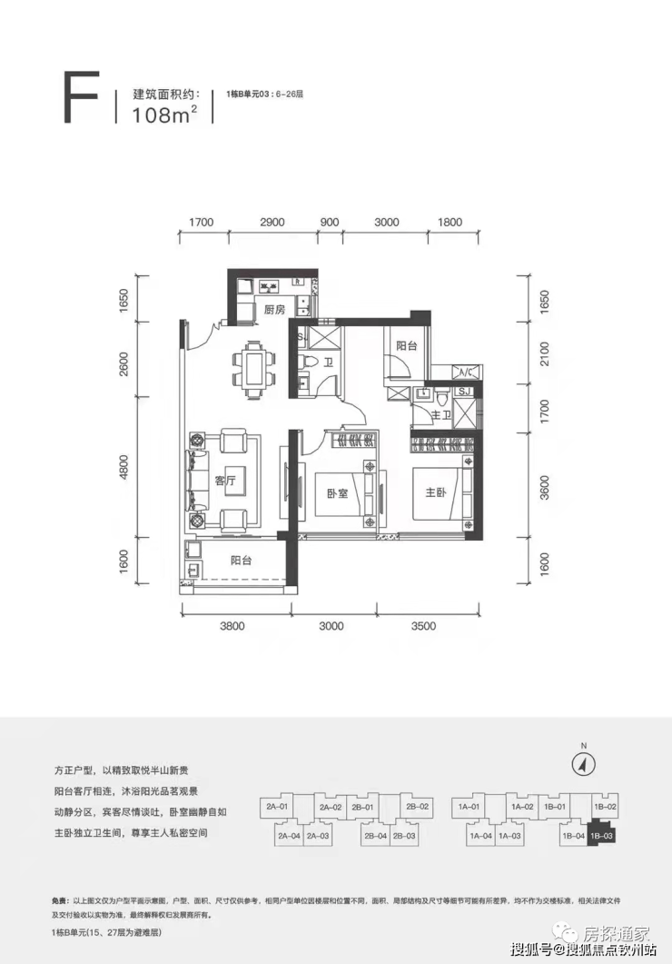
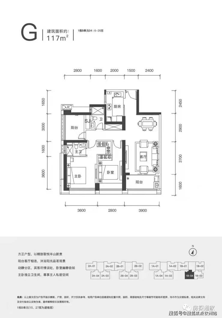
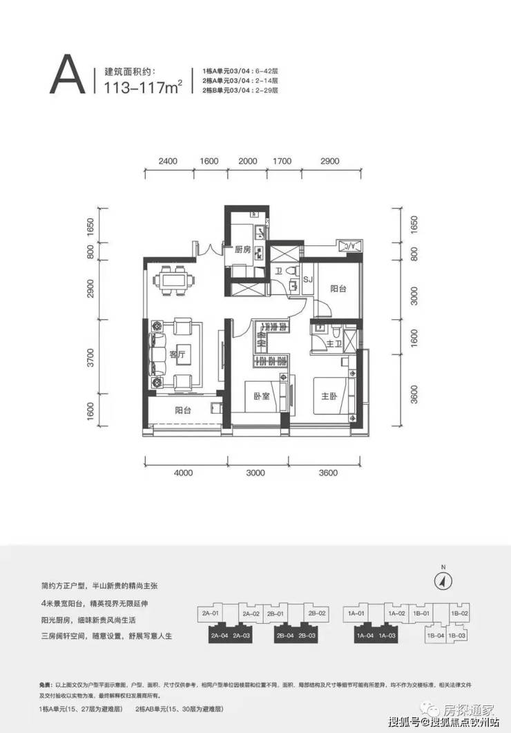
(1)115-119㎡三房:单价9.43万-11.5万/㎡,总价1100-1480万(南北通透/南向海景,含2卫);
(2)239-246㎡4+1房:单价12.35万-13.6万/㎡,总价3200-3330万(全南向或双套房设计);
(3)287㎡5+1房:单价11.8万-14.7万/㎡,总价3600-4400万(含顶层复式);
二、户型特征
(1)小户型(111-119㎡):东南/南朝向,部分南北通透,客厅或主卧可看 大南山 山景/ 深圳湾 海景;
(2)大平层(237-287㎡):双主卧套房设计,全屋通透,视野涵盖山海城景;
项目基本信息
【开发商】深圳市富诺房地产开发有限公司
【项目地址】南山区蛇口大南山旁工业五路和沿山路交汇处
【占地面积】约4万㎡
【总建筑面积】约30万㎡
【建筑类型】住宅、公寓、人才房,别墅
【物业公司】深圳市新投物业管理有限公司
【物业费】9.9元/㎡/月
【楼栋数】7栋住宅,2栋公寓,1栋人才房,7栋别墅
【总户数】1278户(含公寓)
【产品面积段】112-115平3房2卫 、239平4+1房3卫
【梯户比】3栋三梯两户;4栋低区三梯四户,高区三梯三户
【容积率】约4.95
【绿化率】35%
【车位比】1:1.5
【楼层高】
3栋共34层:(15、34层避难层)
4栋共37层:(15、27层避难层)
【层高】3栋3.15m,4栋低区3m,高区3.15m
【交楼时间】现楼
【交付标准】毛坯
【产权年限】2018年6月-2088年6月
01
交 通 配 套

距离项目最近的地铁12号线“花果山”站,百度测量直线距离为550米左右,而距离地铁2号线“海上世界站”与“水湾站”百度测量大致距离为1200米。
02
教 育 配 套
邻近项目周边的教育资源较为丰富,主要有育才一小、育才二中;周边还有育才三小、育才中学、深美国际学校和太子湾学校等,涉及到育才教育集团和国际学校超过8所。
03
医 疗 配 套

主要有蛇口人民医院和一些社区健康服务中心,但作为发展较好的南山区来讲,整体的医疗资源还是较为充裕的,有南山区人民医院、南山区妇幼保健院、港大医院等,还有招商太子湾国际医院刚刚举行了奠基仪式。
04
商 业 配 套

项目附近主要以工业园区和豪宅为主,日常小型生活配套较少,自身带有一个3层的小型社区商业,附近距离较近的有花园城和海上世界商圈,花园城购物中心、汇港购物中心等均为较为大型的购物场所。
05
其 他 配 套
周边的休闲娱乐资源较为丰富,包含有南山公园、荔枝公园、四海公园和蛇口体育中心等休闲场所,其中南山公园是南山区非常重要的景点。






真正的奢华,是内外兼修。深圳新世界集团在项目室内空间的研磨上,也深刻诠释了高端人居美学。无论硬装标准,精装品质,还是软装搭配,都是堪称“高定级”。项目室内也是由香港CCD国际著名设计师机构进行高级定制装修设计,符合财富人群的生活个性,大气且有高级质感。在硬装与软装上也是大手笔,臻选国际品牌,德国嘉格纳、nobilid柏丽、威克纳、博世等。软装上精选芬迪、迪奥等知名品牌。硬装、软装二者艺术性的融合,整个屋内看起来层次分明,质感满满。
公积金首套:2.6% 二套:3.075%
公积金首套:2.6% 二套:3.075%
声明:本文由入驻焦点开放平台的作者撰写,除焦点官方账号外,观点仅代表作者本人,不代表焦点立场。
