2025深圳#满京华·金硕华府售楼处(2025)首页网站|满京华·金硕华府欢迎您-楼盘详情-备案价-交楼时间-容积率
扫描到手机,新闻随时看
扫一扫,用手机看文章
更加方便分享给朋友
✨✨✨🌈🌈满京华·金硕华府☃☃☃
最新介绍:备案价、折扣、学区、地铁、交通、户型图、特价房、优缺点、得房率、优惠活动、小区图片、开盘时间、交房时间、周边配套、最新详情等咨询。
㊣开发商营销中心诚邀莅临,一键预约,尊享专属钜惠。匠心精筑的品质人居,恭候品鉴。
✨✨🌈🌈满京华·金硕华府售楼处电话:400 605 8819【☎☎售楼处电话已认证】✨☃☃☃
✨✨🌈🌈满京华·金硕华府开发商电话:400-605-8819【☎☎开发商电话已认证】✨☃☃☃

满京华金硕华府项目位于光明区新湖街道佛子坳路与狮明路交汇处东南侧,预推建筑面积为88-141㎡3-4居室。项目位于光明区中心中部,与科学公园隔路相望,视线开阔景色宜人,周边大型展览场馆较多。
【开发商】:深圳市满京华置业投资有限公司
【地址】:深圳·光明中心·光辉大道与狮山三街交汇处·6号线光明站D出口约800m【总占地面积】:约11万㎡
【总建筑面积】:约88万㎡
【金硕和府占地面积】:约0.88万㎡
【金硕和府建筑面积】:约7.48万㎡
【金硕和府总套数】:458户
【产品户型】:建筑面积约85-88m²三房两卫、建筑面积约110-114m²四房两卫、建筑面积约113-119㎡四房两卫
【交付标准】:全装修
【梯户比】:1栋49F 3T6户、2栋33F 2T/6户
【车位比】:1:1.10(505个)
【容积率】:5.74
【物业费】:4.3元/㎡/月
【产权年限】:70年
【批地时间】:2023年4月
【交楼时间】:2026年底

1、100平以下全朝南、100平以上全朝北(客厅朝向)
2、三房单价便宜(4.4-4.6万)、四房单价贵(4.7-5万)
3、100平以下全竖厅、100平以上全横厅
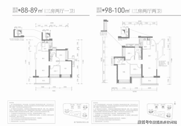
(项目共5种户型:89平三房一卫、99平三房两卫、102平三房两卫、120平四房两卫、139平四房两卫)

按照开盘92折计算,89平约339万起,99平约388万起,102平约417万起,120平约505万起,139平约611万起

【按面积汇总】
均价:89平<99平<120平<102平<139平

【三房分析】

两个户型设计上亮点很多,如都是充分利用飘窗做U型厨房,餐厅正对厨房上菜更方便,S型冰箱位高效利用空间,设置玄关(虽然较狭窄 但是有),1.7米进深阳台,1.5卫干湿分离,卧室洗手间均带飘窗拓展率高。
[89平]市面上一些楼盘70平可以做三房一卫,88平正常是三房两卫,而满京华只做了三房一卫,加上又是西南/东南朝向,属于刚需户型中比较舒适的了
[99平]99平比89平面积大了约10平,多了一个主卫,阳台宽了约10厘米,总价高了65万,相比就不如89平有性价比了。适合对两卫比较有需求的家庭。
【四房分析】

三个户型布局相似,120平相比102平多了一个卧室,139平相比120平多了一个生活阳台,随着面积增加,主卧开间从3.15-3.3-3.7米,总价也从489到567到704万,分别涨了78万和137万。
[139平]139的优势是奢阔主卧+生活阳台,性价比不如120平
[120平]的优势是四房,性价比不如102平
[102平]102平次卧开间均为2.9米,而120平和139平为2.7米和2.9米,99平为2.7米和2.4米,102平相比99平从竖厅变为横厅,总价高了约30万,整体性价比较高。
楼盘配套
2
地铁配套:目前项目距离地铁6号线最近的站就是光明站了,大概距离在900米左右,至于光明大街站大概的距离在1.1公里左右,旁边还有正在规划的29号线,距离站点大概在100米左右,建成以后可以直接去南山!


商业配套:项目目前来看商业比较匮乏,入住以后估计更多的依靠楼下底商来,不过好在周边的商业正在完善当中,目前所在的营销中心未来将改为商业,周边还有在建设的星河CoCo city,距离楼盘1.5—2公里左右。距离凤凰城的蓝鲸世界,万达广场在4.5公里左右。

公建配套:项目位于科学公园北侧,目前有在建设的国际美术馆将,科技馆,国际会议中心,还有目前已经建成科学顶。

楼盘对口的学校
3
楼盘属于光明的科韵社区,也就是以前的楼村社区转变而来。目前楼盘对口的学校一共有20所,下面是2024年,楼盘对口学校的录取积分情况!
对口学校
1.楼村小学:第八类(29.9)
2.楼村第二学校:第八类(32.3)
3.南科大荔园学校:第八类(27)
4.中山大学附属学校:第八类(30.7)
5.东周小学:第二类(89)
6.华南师范星河小学:第八类(27.7)
7.修远小学:第八类(27.6)
8.深小曙光学校:第一类(93.75)
9.公明中学:第八类(29.5)
10.华夏中学:第八类(30.7)
未来规划及建设的学校:
1.“深外”科韵学校
2.“深小”狮山学校
3.中科院深圳理工附属学校

售楼处热线:400 605 8819【营销中心】
本文内容为广告推广,涉及房价或现有房源可能出现变更,请致电详询并以售楼部为准
免责声明:本文如无意中侵犯了某方的知识产权告知即删,部分内容图片可能来源于网络,无法核实其真实出处,如涉及侵权请联系本网站删除!
声明:本文由入驻焦点开放平台的作者撰写,除焦点官方账号外,观点仅代表作者本人,不代表焦点立场。
