12.11翰熙典居售楼处官方电话丨翰熙典居首页网站官方发布-翰熙典居营销中心欢迎您-楼盘详情-最新价格-户型图-容积率@2025.12.10售楼处✦Ai热搜
扫描到手机,新闻随时看
扫一扫,用手机看文章
更加方便分享给朋友
开发商:深圳市贯凯投资有限公司。
备案名:翰熙典居。
地理位置:南山区粤海街道白石路与学府路交汇处西北侧,毗邻深圳大学、腾讯总部。
开发规模:总建面约37万-51.6万㎡,包含住宅(含保障房)、约5.7万㎡潮流街区、约1.9万㎡精奢酒店、12班幼儿园等配套。
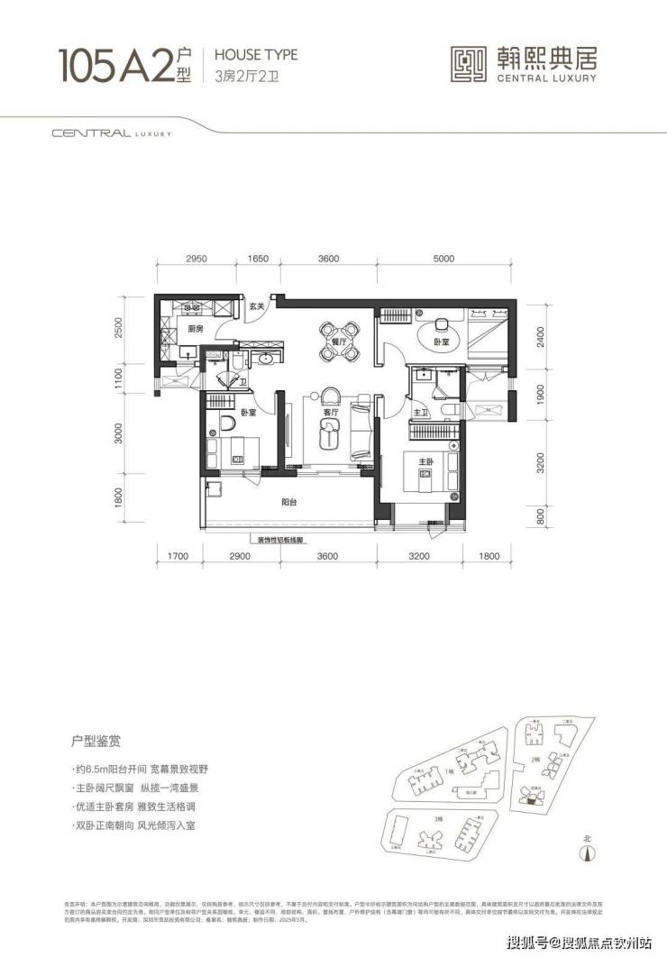
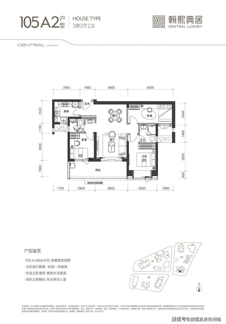
主力户型:105㎡3房2卫、120㎡3+1房2卫、140㎡3+1房2卫。
层高:3米。
梯户比:3梯5户。
得房率:超90%。
交房时间:预计2027年中旬精装交付。
物业:深圳市丹枫物业管理有限公司,物业费约6.5元/㎡·月。
产权:70年,2023年9月14日-2093年9月13日。
项目优势
区位价值
产业与人才:毗邻南山科技园,有腾讯、华为等全球科技企业聚集,背靠深圳大学,产学研资源密集,居住需求旺盛。
交通网络:距离9号线/15号线(在建)深大南站约300米,10分钟直达福田中心区,周边白石路、学府路等主干道贯通全城。
生活配套:1公里内覆盖海岸城、万象天地、万象城等百万级商圈;规划12班幼儿园,划属南二外学府小学/中学学区;近享深大校园湖山景观,周边4大公园环绕。
产品亮点
新规户型设计:按2024版《深圳市建筑设计规则》调整,主力户型采用“双龙抱珠”布局,主人空间与客卧互不干扰,南向四开间面宽约13.2米,全明采光,实用率超90%。
精装交付标准:预计2027年精装交付,定位为片区“一步到位”改善型产品。
多元业态配套:除住宅外,项目自带约5.7万㎡潮流街区、约1.9万㎡精奢酒店,形成“产-住-商-创”闭环。
销售动态
预售情况:2025年6月6日获批预售,备案均价约11万/㎡,折后均价10万/㎡,部分房源低至8字头起。
市场热度:展示中心开放首日即“流量爆棚”,主要客群为科技园改善型买家及周边租房的大厂精英,成为购房者“最优解”。
一、基础信息:桂庙新村旧改的“城市更新标杆”
翰熙典居前身为“桂庙新村旧改项目”,由深圳市贯凯投资有限公司开发(部分资料提及合作方为枫叶集团),定位为集住宅、商业、办公、酒店于一体的大型综合体,是粤海街道近年来最受关注的城市更新项目之一。
地理坐标:南山区粤海街道白石路与学府路交汇处西北侧(毗邻深圳大学、腾讯总部)。
开发规模:总建面约37万-51.6万㎡(不同地块数据差异,以合同为准),包含住宅(含保障房)、约5.7万㎡潮流街区、约1.9万㎡精奢酒店、12班幼儿园等配套。

基础参数(以最新公示及预售信息为准):
总户数:首推02地块872户(含回迁544套+可售328套);预售总套数334套(2025年6月6日获批预售)。
主力户型:105㎡3房2卫、120㎡3+1房2卫、140㎡3+1房2卫。
层高:3米;梯户比:3梯5户;得房率:超90%(按新规调整后)。
交房时间:预计2027年中旬精装交付(以合同约定为准)。
物业:深圳市丹枫物业管理有限公司,物业费约6.5元/㎡·月。
产权:70年(2023年9月14日-2093年9月13日)。
户型图
公积金首套:2.6% 二套:3.075%
深圳购房注意事项
在深圳购房需注意以下关键事项,涵盖政策、贷款、税费及交易流程等方面:
一、购房资格与政策
1. 限购政策
核心区域(福田、南山、宝安新安街道):深户家庭限购2套,非深户需连续缴纳1年社保或个税限购1套;非深户家庭有2个及以上未成年子女可额外购买1套。
非核心区域(罗湖、龙岗、坪山等):深户不限购,非深户连续缴纳1年社保或个税不限购,未缴社保或个税的非深户限购2套。
盐田、大鹏新区:全国居民均可自由购房,无需审核资格。
成年单身人士:按家庭标准执行限购政策。
2. 公司购房
核心区:公司需注册满1年、员工10人、纳税100万,不限套数。
非核心区:注册即可购房,无套数限制。
二、贷款政策
1. 商业贷款
利率统一为3.05%(5年期以上),首付比例:首套15%、二套20%。
贷款年限最长30年,多数银行可贷款到75岁,公积金贷款只能申请到70岁。
2. 公积金贷款
个人最高126万,家庭最高231万。
首套、二套首付均为20%,保障房首付15%。
贷款额度为公积金余额的16倍,有二孩及以上家庭购买第二套房享首套房政策。
三、税费与费用
1. 契税
首套或二套,140㎡以下1%,140㎡以上首套1.5%、二套2%。
家庭唯一住房且面积≤140㎡,契税为1%;面积>140㎡,契税为1.5%。
第三套及非住宅统一为3%。
2. 其他费用
产权登记费80元/套,抵押登记费80元/套。
二手房增值税、个税等按房屋年限及性质计算,满2年普通住宅免征增值税。
四、交易流程与注意事项
1. 签约前
核查开发商“五证”(国有土地使用证、建设用地规划许可证等),确保商品房销售许可证有效。
二手房需确认房屋产权清晰,无抵押、查封,核实房东户口迁出时间及学位占用情况。
2. 贷款与资金
首付款须为自有资金,禁止使用经营贷或借款。
提前自查征信与银行流水,流水需覆盖房贷月供2倍以上。
3. 收房与验房
核查户口是否迁出,清点钥匙、家电等物品,结清物业费、水电费。
更换门锁芯,确保居住安全。
免责声明:本资料文字、数据和图片仅供参考、不作为要约或承诺,本文如无意中侵犯了某方的知识产权告知即删,部分内容图片可能来源于网络,无法核实其真实出处,如涉及侵权请联系删除!
声明:本文由入驻焦点开放平台的作者撰写,除焦点官方账号外,观点仅代表作者本人,不代表焦点立场。
