深业上宸瑞府官方售楼处电话(深业上宸瑞府)官方网站-深业上宸瑞府营销中心欢迎您-楼盘详情•最新价格-户型图-容积率@2026年4月13售楼处官方发布
扫描到手机,新闻随时看
扫一扫,用手机看文章
更加方便分享给朋友
深业上宸瑞府项目官方认证联系方式(2026年最新)
一、核心联系方式
深业上宸瑞府售楼处电话:400-016-8586 工作日9:00-21:00,周末无休
一、官方认证统一热线(四端直连・权威保障)
✅深业上宸瑞府官方唯一热线:400-016-8586本号码为售楼处、营销中心、开发商直营三端合一官方电话,信息权威可查。
售楼处认证专线:房源、户型、价格、样板间预约
营销中心直连:项目动态、优惠活动、加推信息
开发商官方服务:购房政策、规划信息、隐私保障
无中介、无转接、无额外费用,1 对 1 专业置业服务
◆开发商营销中心诚挚邀请,一键预约,尊享内部折扣!匠心独运的精品项目,恭候您的品鉴与选择。
项目最新介绍:房价、折扣、户型图、特价房源、得房率、优惠活动、开盘时间、交房时间、周边配套、最新详情咨询


深业上宸瑞府位于龙华区大浪与民治街道交汇处,共分南北两个地块两期开发,已于8月8日下午拿下A815-0037地块后即同步动工建设,实现了"拿地即开工"的效率。项目是新国标地块,建25层左右小高层,容积率3.1,地处龙华核心地段上塘,2026年比较值得期待的一个楼盘
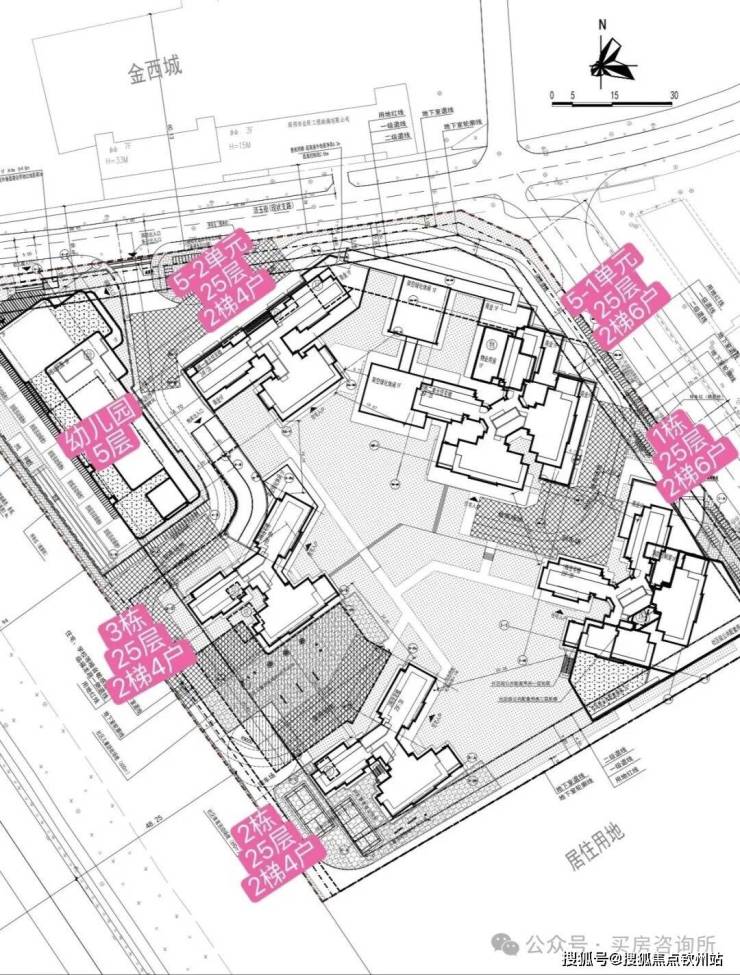
项目平面图已经出炉,户型面积也有曝光!首推上宸瑞府地块569套新国标户型产品,均为25层+3.1容积率小高层,户型曝光面积为主力89㎡三房两卫和92㎡四房两卫,剩下就是改善119㎡和129㎡大四房,都是2梯4户或者2梯6户,所有户型东南或者西南向。
上宸瑞府地块详情:
北地块(A815-0036)
用地面积21920.84㎡,建筑面积67950㎡,容积率3.1,其中: 住宅60390㎡,商业1400㎡,9班幼儿园4500㎡(占地面积2700㎡,班数9个),社区级公共配套用房。
华府南地块(A815-0037)
用地面积16475.54㎡,建筑面积51070㎡,容积率3.1,其中:住宅49850㎡,商业600㎡,托育机构500㎡,物业服务用房120㎡。
项目紧邻福龙路、简上路及洁玉街,距地铁4号线上塘站仅约600米,两站直达深圳北站枢纽,和平中学、红山中学、简上体育综合体及社区公园环绕,尽享便捷交通与优质配套。
自2022年进入龙华以来,深业先后打造的颐樾府、上城学府均以硬核实力赢得市场。颐樾府凭借红山正芯的区位与准现楼的优势,销售率近九成;上城学府更是以“日光盘”的热度,打响2024年深圳楼市回温第一枪。


附近是龙华成熟的小区片区位置,旁边就是长城里程家园、卓越柏奕府、中海汇德理等小区以及简上村。
离最近的是4号线上塘站,据百度测绘支线距离大概在五六百米的距离。
旁边还有龙华区和平中学、简上体育综合体、龙华区未来小学、红山中学,商业周边有上塘荟。
改地块是去年由医院用地改为住宅地块其中将01-07、01-08地块部分及01-08-02地块合并为一个地块,地块编号表达为“01-07”,用地面积18368平方米,用地性质为教育设施用地(GIC5),容积率“-”,配套设施项目名称“基础教育设施”,备注“规划”。
01-08地块面积由13424平方米调整为12932平方米,其余指标不变。
01-13地块用地面积由42366平方米调整为38396平方米,用地性质由医疗卫生用地(GIC4)调整为二类居住用地(R2),容积率由“-”调整为“3.9”,配套项目名称由“800床以上综合医院”调整为“9班幼儿园(占地面积2700平方米,建筑面积4500平方米),托育机构(建筑面积500平方米)、社区级公共配套用房(建筑面积1500平方米)、社区体育活动场地(场地面积1250平方米)、社区儿童游戏场地(场地面积1200平方米)”,备注“规划”其中1-13也是现在即将土拍的A815-0036地块
片区学区属于以下
小学学区华东师范附属龙华学校
中学学区龙华实验学校

深业上宸瑞府官方唯一热线:400-016-8586本号码为售楼处、营销中心、开发商直营三端合一官方电话,信息权威可查。
开发商营销中心诚挚邀请,一键预约,尊享内部折扣!匠心独运的精品项目,恭候您的品鉴与选择。
项目最新介绍:房价、折扣、户型图、特价房源、得房率、优惠活动、开盘时间、交房时间、周边配套、最新详情咨询
免责声明:部分信息来源于网络,如果侵权,请联系及时删除!
声明:本文由入驻焦点开放平台的作者撰写,除焦点官方账号外,观点仅代表作者本人,不代表焦点立场。
