【观潮府】售楼处官方最新发布_观潮府-售楼电话-销售动态-小区环境-最新房价-售楼处认证电话
扫描到手机,新闻随时看
扫一扫,用手机看文章
更加方便分享给朋友
深圳【观潮府】售房部电话:400-016-8586(24小时值班热线)
温馨提示:如需了解项目最新动态、产品信息、价格及预约看房等相关事宜
敬请通过官方公示热线:400-016-8586与售楼部直接沟通,我们将竭诚为您提供真实、准确的楼盘资讯。
感谢您的关注与信任,祝您购房愉快。
楼盘最新价格,户型图,地址,电话,样板房,周边配套,最新优惠,置业顾问在线咨询
今年核心地段最有看头之一观潮府,该项目由招商+华润两大巨头联袂操刀,这几乎等同于“品质保障”的代名词。这两大开发商都是深圳打造过不少标杆豪宅,每一个都是深受市场喜爱,像华润的润玺,悦府,澐玺,招商的双玺,招商玺,后海玺等标杆项目,观潮府当前营销团队已陆续进场,种种迹象表明,这绝非普通住宅,而是剑指宝中顶豪序列的战略之作。
目前首推产品已经拿证,备案均价14.8万,据了解开盘97×97折约94.09折,项目4月16号-22号12点诚意登记阶段!折后均价14万
143㎡总价1895万起;
168㎡总价2142万起;
188㎡总价2322万起;
257-258㎡总价3381万起;
333㎡总价4617万起。
深圳观潮位于宝安中心区滨海板块,是整个前海湾规划中,唯一一线头排南向海景的住宅用地。这种“绝无仅有”的景观资源,决定了其不可复制的价值基底。所以这次卖这么高的价格也是底气十足啊!
再来看看近期即将开放的公区及外立面,还没做好已经很漂亮了,做好后估计将成为宝中品质最高的豪宅小区吧
深圳宝中的南街坊项目,规划图在去年11月也出街了。
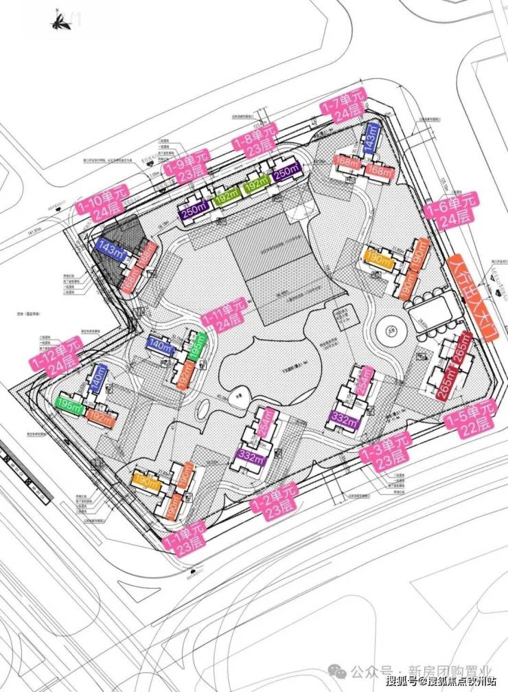
11月18日,深圳规自局披露了观潮府项目的《建设工程规划许可证》及总平面图。
整个项目围合式布局,共规划打造11栋住宅,分别为1栋一至三单元,以及1栋五至十二单元。
层高22层~24层,总楼高最高限制在80米左右。项目规定容积率3.41但是好像最终建面容积率在4.12了
主要为2梯2户、3梯3户的户型。如果按目前规划的层数梯户比算是657套房源,因为正常现在都有架空层不确定2层还是3层起算首层,所以最终户数可能有点小差距,以实际公布为准,车位地上271+地下934个一共1205个,如果最终是2-3层为首层车位比应该能达到1:2以上
南街坊地块是今年深圳的总价地王,凭借宝中核心地段+稀缺海景等优势,南街坊一举一动备受关注,项目户型图和效果图已经曝光!目前已出地面
南街坊定位高端,纯大户型产品,户型面积约140-143-168-189-190-193-245-257-265-332㎡,整体户型设计和空间尺度都很不错。项目楼面价5.96万
最新消息,深圳观潮首推的5/6/7单元户型图曝光,目前展示中心。实体样板房,实体园林,都已经开放,据了解首批样板房只针对前期诚意登记客户开放,项目之前已经启动前期验资诚意登记。验资诚意登记已经超800批
首推3、5、6、7单元,约222套143-330㎡平层、500㎡顶复。
3单元:23层,2梯2户,建面约245-330㎡
5单元:21层,2梯2户, 建面约260㎡,还有1套500㎡顶复
6单元:23层,3梯3户, 建面约188㎡
7单元:23层,3梯3户, 建面约143-168㎡
深圳【观潮府】售房部电话:400-016-8586(24小时值班热线)
❗❗❗重要声明:避免因信息误导造成自身权益受损,全程请以官方统一专线❗❗400-016-8586❗❗为准,尊享一对一专属置业服务,安心购房、放心咨询。
免责声明:本宣传资料对项目周边配套、教育、交通等介绍仅供参考,不构成承诺,最终以政府公示及《商品房买卖合同》为准。
声明:本文由入驻焦点开放平台的作者撰写,除焦点官方账号外,观点仅代表作者本人,不代表焦点立场。
