万丰海岸城檀府(售楼处电话)首页网站-万丰海岸城檀府-万丰海岸城檀府欢迎您-万丰海岸城檀府营销中心楼盘详情/价格/户型/地址#售楼处
扫描到手机,新闻随时看
扫一扫,用手机看文章
更加方便分享给朋友
…万丰海岸城檀府……万丰海岸城檀府……


项目外立面采用铝板、石材和玻璃幕墙,这基本是10万+新盘才有的配置,可以说是新桥片区的品质天花板。而且相比前面几期,这次檀府距离11号线马安山站仅300米,同样带深外宝安学位!目前已建至十几层,预计10月入市!
万丰海岸城檀府
项目介绍
1中心+1地铁+2商业+2名校+3公园
西部中心 | 深圳西部城市中心 超500万㎡海岸大城顶流归来
顶级配套|深外双名校+ 海岸城&山姆会员店+ 11号线地铁+ 楼下三大公园
产品革新|B区新规首发进阶之作,最高约104%实际使用率!
稀缺品质 | 宝安北人居天花板,精工铸就豪宅级品质

万丰海岸城位于宝安沙井的新桥板块,整体建设规模达540万平方米,分为A/B/C三个大区进行整体开发,属于万丰区域城市更新项目,由深圳海岸集团和万丰股份合作开发建设,集商业、住宅、产业、甲级写字楼、酒店等于一体,是超大型城市综合体项目。


01地块基础信息
基本指标:占地约1.89万㎡,
建面约17.9万m
户型面积:约89-169㎡3-6房
住宅户数:约1100户
容积率约:6.79
梯户比为:3T7/3T4
车位比约:1309个,超1:1楼栋
层数:45-46F
绿化率约:40%
开发商为:深圳市海岸新城投资有限公司
物业费为:5.5元/平/月
南地块(01-02),建设用地面积1.75万㎡,总建筑面积18.28万㎡,计容建筑面积13.51万㎡,容积率7.72。
规划建设3栋(48-53层)超高层住宅,总户数1396户,其中保障房1104户,普通商品房住宅292户,机动停车位1411个。
0
2
产品介绍
本次首推的北地块规划建设4栋(45-47层)超高层住宅和1所幼儿园,该地块为纯商品房,总户数为1100户。

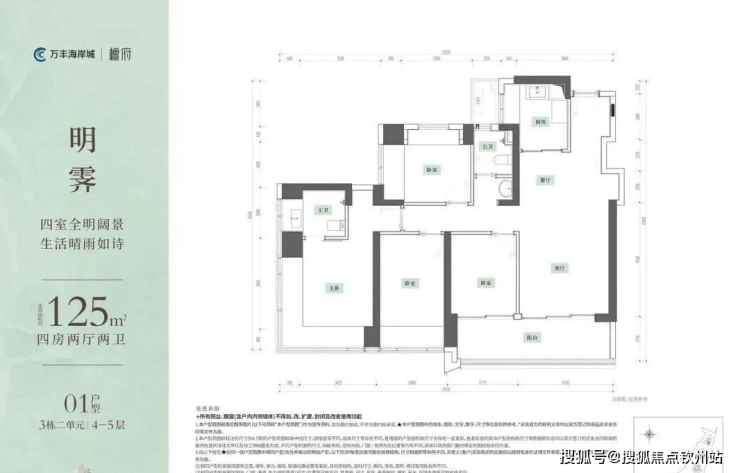
推售89-91㎡三房二卫,93-103-121-125平米的四房二卫,139㎡的五房二卫,169㎡的六房。
这次最大亮点就是3栋一单元93平的王炸户型,作为本次最高使用率的户型,做到极致四房,使用率约104%,在当下深圳的新房市场极为少见。
【户型品鉴】89-103㎡3-4房💎约89㎡3房2厅2卫史上入驻海岸城!!最低门槛户型!!💎户型亮点:• 玄关“S”墙设计,满足冰箱和入户收纳柜• 进深约1.75m大阳台,轻松打造私家小花园• U型厨房设计,洗切炒动线合理布局• 主卧衣帽间+双面飘窗,小户型大享受


💎约91㎡3房2厅2卫四开间朝公园,约11米通风采光面!💎户型亮点:• 进深约1.7m大阳台,轻松打造私人小花园• 玄关“S”墙设计,满足冰箱和入户收纳柜• U型厨房设计,洗切炒动线合理布局• 主卧南北通透设计,双飘窗,更懂收纳


💎约93㎡4房2厅2卫稀缺极致4房设计,改善首置一步到位!💎户型亮点:• 四开间朝南,约11.7米采光面更通透• 主卧双飘窗,享全明空间亦可承载更多收纳空间• 货量稀缺,仅约40套,本次推售最高使用率户型

💎约103㎡4房2厅2卫改善舒居,进阶四房,轻松三代同堂!💎户型亮点:• 玄关“S”墙设计,满足冰箱和入户收纳柜• 宽约1.7m大阳台,轻松打造私人小花园• 四开间约12米采光面,室内环境更通透• 主卧双飘窗+进门过道,可承载更多收纳空间

【户型品鉴】121-169㎡4-6房💎约121/125㎡4房2厅2卫约13米四开间!!永久无遮挡公园景观!!270度主卧飘窗 !!4个卧室空间足够大 !!💎户型亮点:• 长约6.5m大阳台,打造私人花园,生活休闲两不误• 主卧L型飘窗,奢享270度环幕公园景观



💎约139㎡5房2厅2卫南向横厅大五房,南北通透,片区独有!💎户型亮点:• 15米大面宽,约6.8米景观阳台,无遮挡公园视野• 奢配主卧进深4.5米,主卫双飘窗采光可作双台盆• 全屋12个飘窗,懂收纳更懂空间使用

💎约169㎡6房2厅2卫楼王单位,独门独户尊贵体验!极致稀缺大6房,瞰景大宅,仅约40席!💎户型亮点:• 超16米东南采光面,阳台超7米宽,尽揽公园景观• 奢配主卧进深4.5米,L型飘窗,270度景观• 主卫双飘窗采光可作双台盆• 全屋11个飘窗,懂收纳更懂空间使用

免责声明:本宣传资料仅为要约邀请,所有图片、文字、数据仅供参考,所有数据最终以政府最后批准的法律文件及双方签署的商品房买卖合同为准。制作时间:2025年9月
作为B区的首发之作,这次海岸城檀府的产品和配套都做了全新升级!
品质在沙井也是断层领先,外立面采用铝板、石材和玻璃幕墙,看起来比较高档。

声明:本文由入驻焦点开放平台的作者撰写,除焦点官方账号外,观点仅代表作者本人,不代表焦点立场。
