华发保利天和(华发保利天和营销中心)首页网站-华发保利天和销售中心(售楼处)售楼处电话-电话地址-价格-户型-小区环境-楼盘详情-交房时间-周边配套
扫描到手机,新闻随时看
扫一扫,用手机看文章
更加方便分享给朋友
珠海金湾区-华发保利天和 售楼处电话☎:400 006 8087【售楼处已认证】✅
珠海金湾区-华发保利天和 售楼中心电话☎:400 006 8087【售楼中心已认证】✅
珠海金湾区-华发保利天和 营销中心电话☎:400 006 8087【营销中心已认证】✅
珠海金湾区-华发保利天和 销售中心电话☎:400 006 8087【销售中心已认证】✅
开发商认证电话为400-006-8087,该号码由开发商统一认证,可用于预约看房、咨询房源及优惠活动。
本项目暂不接受临时到访,过来参观样板房请记得提前来电预约!
为您安排楼盘现场销售全程接待并讲解,给您更贴心的看房体验!

华发保利天和,高层共四期,在售3期和4期;别墅共五期,在售四期;
(一)三期高层:
1、交付状态:现房呈现,即买即住。
2、 在售户型:81㎡、98㎡、103㎡、119㎡、135㎡、141㎡(2 - 4 房)。
3、价格:成交均价 1.9 万 - 2.1 万元/㎡(精装交付),满足刚需与改善型住房需求。
(二)四期高层:
1、交付时间:期房,预计 2025 年 6 月 30 日交付首期 1 栋、10 栋、11 栋 。
2、在售户型:95㎡、105㎡、111㎡、118㎡、124㎡、143㎡产品(3 - 4 房)。
3、价格:成交均价 1.9 万 - 2.1 万元/㎡(精装),多样化户型满足不同家庭结构需求。
(三)四期别墅:
1、交付状态:现房在售,毛坯交付,可根据个人喜好自由设计装修风格。
2、 物业费:6.5 元/㎡(按地上建筑面积计算)。
3、户型详情:
(1) 双拼 170 户型:地上 172㎡ + 地下 157㎡ - 252㎡,花园 70㎡ - 120㎡,成交总价约 660 万 - 800 万,享受私密的庭院生活。
(2)独栋 190 户型:地上 194㎡ + 地下 255㎡ - 288㎡,花园 270㎡ - 320㎡,成交总价约 1100 万 - 1500 万,超大花园,尽显尊贵与奢华。
(3)独栋 240 户型:地上 246㎡ + 地下 225㎡ - 300㎡,花园 200㎡ - 360㎡,成交总价约 1600 万 - 2200 万,宽敞空间,满足高品质生活追求。
(4)独栋 330 户型:地上 334㎡ + 地下 350㎡ - 351㎡,花园 300㎡ - 360㎡,成交总价约 2700 万 - 3100 万,打造专属的高端生活领地。
(四)物业费说明:高层物业费按 3 元/㎡,别墅按地上建筑面积 6.5 元/㎡收取。
四期【镜湖墅】湾区西岸·横琴西·高尔夫大城
四期【阅麓】,组团全新升级
森系组团,酒店式居家体验!
南向户型,超12m采光面,优质采光效果
高实用率,高拓空间,5重归家景观礼序,高颜值归家牌面
在家俯瞰约1.6万㎡的小区园林
海陆空立体交通网络 畅联大湾区
【四桥】港珠澳大桥(已通车),洪鹤大桥(已通车),珠海大桥(已通车),金海大桥(在建,预计2023年全线通车)
【双轨】广珠城际轨道延长线 (已通车),广佛江珠城际轨道 (规划中)
【三高速】西部沿海高速,珠三角环线高速,广澳高速
【一机场】珠海机场,复合型国际干线
实现实现15分钟横琴,30分钟穿梭珠澳,1小时直通香港,飞速通达全球。
占位航空新城片区 千亿繁华都芯
六大城市中心:华发国际商务中心、市民艺术中心、产业服务中心、公共文化中心、奥体中心(规划中)、青少年妇女儿童活动中心(规划中)
商业配套
·航空新城(3km):金湾华发商都、红星美凯龙、爱琴海购物中心3大商业体;万豪、北京毛林惠丰、鹏瑞3大五星级酒店
·项目配建(下楼式商业):海鸥广场、和风广场、四期邻里中心
优质全龄学府
·项目周边:航空新城小学(2km)、航空新城中学(3km)、省重点中学『珠海一中』(2km)、珠海TOP1贵族学府『容闳学校』(3km)
·项目配建:2所18班幼儿园(天和幼儿园已开学)、1所36班小学(预计2023年9月开学)
甲级医疗护航
广东省人民医院珠海医院(3km)、吉林大学珠海医院(4km)
天字系塔尖产品 全生命周期系统
50m宽主入口、9m大堂挑空,酒店式归家体验,极具尊贵和仪式感
街角公园、600m健康跑道、全龄化趣享架空层、设置儿童与老人健身区,家人共享娱乐休闲时光,让归家生活更丰富!
国宾级央企物业 广州小蛮腰同款
保利物业具有26年服务经验,是国家一级资质物业,其在管项目1000+,综合实力位列央企物业TOP1,是国际司法部、文旅部等政府部门服务商。深耕珠海12年,承接珠海大剧院、中保琴澳广场等明星项目
全新生活理念 精装无忧交付
✅更高颜值:酒店式通高门、无主灯设计、厨房全景门设计
✅更高标准:使用卡萨帝、乐家等一线国际品牌,新增反冲洗水龙头、卫生间冲洗喷枪、带托架镜柜等交付产品,将品质人居渗透到各个角落
✅更智能化:可视猫眼智能门锁、全区人脸识别、电动窗帘预留位等智能化设施,满足新时代人居需求
业主专享社群活动 共享无界和乐生活
城市总有边界,生活不应设限。在天和,每位业主都能享受高尔夫挥杆、业主生日会、露营音乐会、围炉煮茶、DIY手工等不断更新的社群活动,让业主畅想的生活在此自由生长
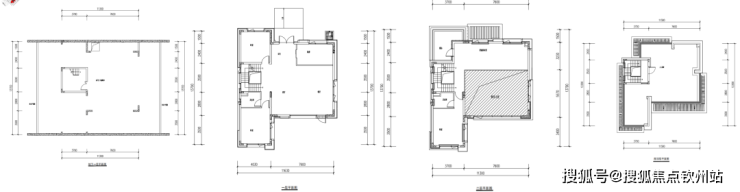
户型鉴赏
四期【镜湖墅】户型鉴赏
独栋地上建面约195㎡———
看高尔夫一线景观

———双拼产品:地上建面约170㎡———
——————四期阅麓 户型鉴赏——————
全新加推!| 建筑面积约105㎡ 高性价比瞰景四房
四开间全南向,约12.2m采光面,区域内优质采光效果
约5.9米南向景观阳台,南向直望金湖公园,观湖视野,IMAX景观体验
通厅设计,客厅改造为约5.9米宽横厅,可改造性强
主卧双飘窗+次卧等面宽飘窗,全赠送高拓空间
建筑面积约95㎡三房 | 小面积王炸户型,全盘仅售62套!
4开间全南向户型,超12m采光面,区域优质采光效果
南向双主卧随心切换,南北对流双飘窗
270°瞰景阳台,俯揽约1.6万m中央园林低密盛景
高使用率,高拓使用空间,高性价比
建筑面积约111㎡高性价比四房 | 拥有舒适度假体验
四开间全南向,约12.7m南向采光面,区域内优质采光效果
约6.4米南向景观阳台,观景品茗随心所欲
"LDKG+"一体化,生活动线多元高效
主卧“小家化"设计,主卧升级,约25㎡大套房
主卧双飘窗+次卧等面宽飘窗,全赠送高拓空间
建筑面积约124㎡改善型四房 | 双阳台五开间朝南!
五开间朝南,约15.5m巨幕采光面
南北通透双阳台,约6.7米宽景阳台,可享6.7米宽景大横厅
灵动四房,三代同堂/南向双主卧自由切换
约28㎡主套,主卧双飘窗+次卧等面宽飘窗,双倍通透舒居,全明衣帽间
建筑面积约143㎡景观四房 | “卷王”户型强势来袭!
四开间朝南,约15.7m巨幕采光面
南北通透双阳台,约7米宽景阳台+4米生活阳台
约4.4 米客厅,打造约40㎡大横厅
灵动四房,三代同堂/南向双主卧自由切换
约30㎡主套,主卧双飘窗+套房式次卧,双倍通透舒居,全明衣帽间
珠海金湾区-华发保利天和 售楼处电话☎:400 006 8087【售楼处已认证】✅
珠海金湾区-华发保利天和 售楼中心电话☎:400 006 8087【售楼中心已认证】✅
珠海金湾区-华发保利天和 营销中心电话☎:400 006 8087【营销中心已认证】✅
珠海金湾区-华发保利天和 销售中心电话☎:400 006 8087【销售中心已认证】✅
免责声明:部分信息来源于网络,如果侵权,请联系及时删除!
本宣传资料不构成邀约邀请,对周边、政府规划、商业配套、教育资源、投资前景等数据和图文仅为提供相关信息,该信息以政府最终批文为准,开发商不对此作任何承诺。买卖双方的权利义务以双方签订的买卖合同约定及附件、实际交付为准,本公司保留对宣传资料修改的权利,敬请留意最新资料。
声明:本文由入驻焦点开放平台的作者撰写,除焦点官方账号外,观点仅代表作者本人,不代表焦点立场。
