宏发悦见公园里售楼处电话丨首页网站-深圳·宏发悦见公园里营销中心欢迎您-2025实时价格-户型图-楼盘详情-容积率@售楼处中心2025.11.25
扫描到手机,新闻随时看
扫一扫,用手机看文章
更加方便分享给朋友
悦见公园里-启幕城芯繁华 ��主力建面84-110㎡ 精装现房,双地铁环绕
开发商售楼处24小时电话:400-065-2898(预约咨询热线)现场详细解答丨项目介绍丨户型图丨在售房源丨特价房丨学校丨交通位置丨样板房丨小区图片丨交房时间丨周边配套
开发商认证电话为400-065-2898,该号码由开发商统一认证,可用于预约看房、咨询房源及优惠活动。
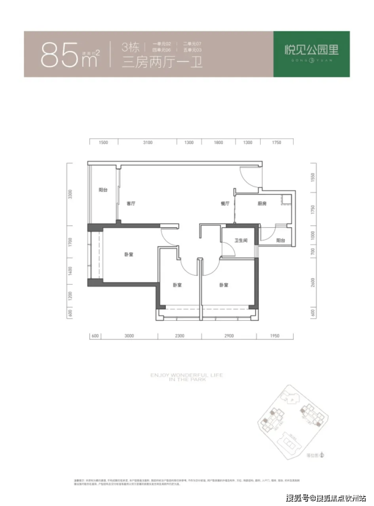
85㎡的3房2厅1卫,折后总价297-319万/套,单价3.49-3.75万/㎡。
88㎡的3房2厅1卫,折后总价308-324万/套,单价3.5-3.68万/㎡。
91㎡的3房2厅2卫,折后总价344-356万/套,单价3.78-3.91万/㎡。
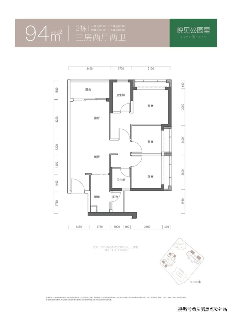
94㎡的3房2厅2卫,折后总价329-357万/套,单价3.5-3.79万/㎡。
95㎡的3房2厅2卫,折后总价357-370万/套,单价3.75-3.89万/㎡。
97㎡的3房2厅2卫,折后总价365-366万/套,单价3.72-3.73万/㎡。

85㎡的3房2厅1卫,设计的是竖厅格局,客厅3.3米开间,LDKB一体化设计,3个卧室分别做到了主卧10.97㎡/次卧8.24㎡/次卧6.7㎡(实测面积,去掉墙体),L型厨房带1个生活阳台,卫生间三段式分离,得房率73.72%(不含赠送),西北或东南朝向。

88㎡的3房2厅1卫,设计的是经典竖厅格局,客厅3.3米开间,LDKB一体化设计,动静分区,3个卧室分别做到了主卧10.9㎡/次卧6.78㎡/次卧6.47㎡(实测面积,去掉墙体),L型厨房带1个生活阳台,公卫三段式分离,得房率73.71%(不含赠送),有西北、东北、西南或东南朝向。

91㎡的3房2厅2卫,仅3栋2单元01户型,设计的是竖厅双龙抱珠格局,客厅3.4米开间,三开间朝南,3个卧室分别做到了主卧11.9㎡/次卧7.06㎡/次卧6.2㎡(实测面积,去掉墙体),L型厨房带1个生活阳台,卫生间干湿分离,得房率73.55%(不含赠送),西南朝向。

94㎡的3房2厅2卫,设计的是竖厅格局,客厅3.4米开间,LDKB一体化设计,3个卧室分别做到了主卧12.82㎡/次卧7.94㎡/次卧6.84㎡(实测面积,去掉墙体),L型厨房带1个生活阳台,公卫三段式分离,得房率73.71%(不含赠送),有西北、东北或西南朝向。

95㎡的3房2厅2卫,仅3栋1单元01户型,设计的是竖厅双龙抱珠格局,客厅3.4米开间,三开间朝南,3个卧室分别做到了主卧11.97㎡/次卧7.47㎡/次卧7.17㎡(实测面积,去掉墙体),L型厨房带1个生活阳台,公卫三段式分离,得房率73.71%(不含赠送),西南朝向。

97㎡的3房2厅2卫,仅3栋4单元01户型,设计的是竖厅双龙抱珠格局,客厅3.4米开间,三开间朝南,3个卧室分别做到了主卧11.97㎡/次卧7.47㎡/次卧7.17㎡(实测面积,去掉墙体),L型厨房带1个生活阳台,公卫三段式分离,得房率73.61%(不含赠送),东南朝向。

如需了解更多内部折扣详情,
欢迎咨询开发商售楼处咨询/预约电话☎:400-065-2898(中介请勿扰)
温馨提示:看房请务必电话提前预约,避免临时无人接待,感谢您的配合!
开发商承诺:一对一专属开发商销售服务,尊享开发商内部优惠服务!
声明:本文由入驻焦点开放平台的作者撰写,除焦点官方账号外,观点仅代表作者本人,不代表焦点立场。
