(深圳)新世界临海揽山_新世界临海揽山欢迎您丨新世界临海揽山楼盘详情2025最新(新世界临海揽山)售楼处欢迎您-深圳新房
扫描到手机,新闻随时看
扫一扫,用手机看文章
更加方便分享给朋友
═ ═ ⑉ıl⑉ 新世界临海揽山 ⑉lı⑉ ═ ═
⚠️⚠️⚠️【购房须知】:
深圳新世界临海揽山项目售楼处(营销中心)电话为400 079 2015(开发商已认证)请提前拨打售楼中心电话预约,销售一对一深度讲解楼盘, 更享额外购房优惠!谢谢您的配合!
✨✨新世界临海揽山 售楼中心24小时电话☎:400 079 2015【☎售楼中心已认证】✨✨
✨✨新世界临海揽山 营销中心24小时电话☎:400 079 2015【☎营销中心已认证】✨✨
✨✨新世界临海揽山 销售中心24小时电话☎:400 079 2015【☎销售中心已认证】✨✨
☞☞Vip贵宾置业→欢迎来电预约尊享内部折扣→匠心钜制恭迎品鉴☜☜
注: ◆◆◆若有中介虚假宣传,请及时与售楼中心核对真假,避免上当!
开发商热线400 079 2015【已核验】

在售户型图丨项目介绍丨最新房源丨周边配套丨详细解答
新世界.临海揽山御园,坐落于蛇口国际住宅区大南山半山,东西北三面环山,独享 352 万平米天然绿肺珍稀山景资源;共由 2 栋超高层公寓/5栋超高层住宅/1 栋高层及 7 栋别墅组合而成,藏锋于繁华深处,又静卧于山海之中,将“出一步世界,入一步自然”的生活演绎得淋漓尽致。荣居于此,不仅权握繁华,更是对层峰人士的身份标注,一份家族荣耀的致臻礼遇。

楼盘基本详情;
开发商:深圳市富诺房地产开发有限公司
物业:深圳市新投物业管理有限公司
总户数:1278户
车位:1880个,物业费:12.9元/㎡/月
产品类型:(住宅/商务公寓)
70年产权:(2018年6月29至2088年6月28日止)
坐北朝南,背山面海,雄踞不可复制的半山龙脉正席,极为罕见的“太师椅”风水格局,为领袖人物蕴藏聚财纳福的磅礴气象。新世界·临海揽山傲立蛇口核心,三山一海天赋自然环抱,四季鲜氧拥趸,稀缺资源无以复加。
据守大南山麓之上,三面环山,270°傲瞰一线海景,将更多自然景色融入生活之中。
国际住区 登峰之后 造极人生

3大商圈:K11亚洲旗舰店(建设中)、海上世界综合体、汇港购物中心。
3维交通:地铁2号线水湾站、海上世界站,12号线花果山站(建设中);南海大道及沿江高速;邮轮母港、蛇口港、深圳湾口岸。
4大文体:蛇口深圳歌剧院(规划中)、文化艺术中心、南海意库、蛇口海洋科普馆。
7大学府:育才一小(小学)、育才二中(初中)、深圳市贝赛思国际学校、深圳蛇口国际学校、太子湾国际学校、韩国国际学校、深美国际学校等。
11重生态:三山一海六公园:坐拥大南山、小南山、赤湾山三山环绕,俯瞰深圳湾一线海景,享15公里滨海长廊、四海公园、女娲滨海公园、南山公园、深圳湾公园、锦园公园、荔枝公园生态簇拥。
区域规划:新世界临海揽山御园地处“湾区、自贸区、先行示范区、特区”四区叠加板块,承前海启后海,粤港澳大湾区核心引擎。新世界·临海揽山公寓,据守半山豪宅聚集区,资产价值愈显珍罕。
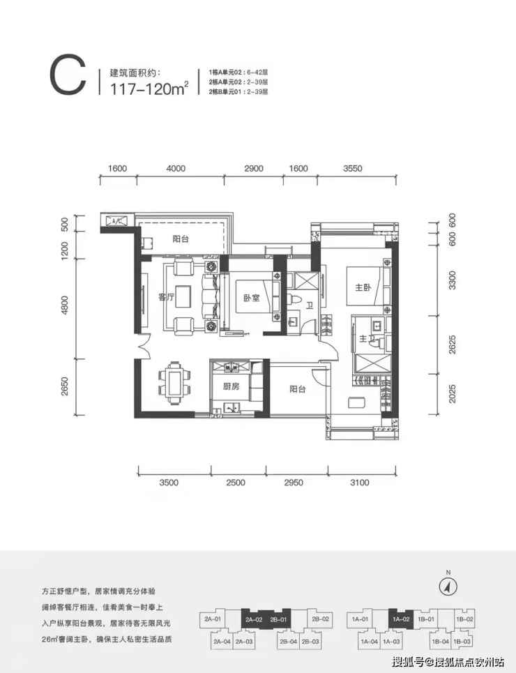
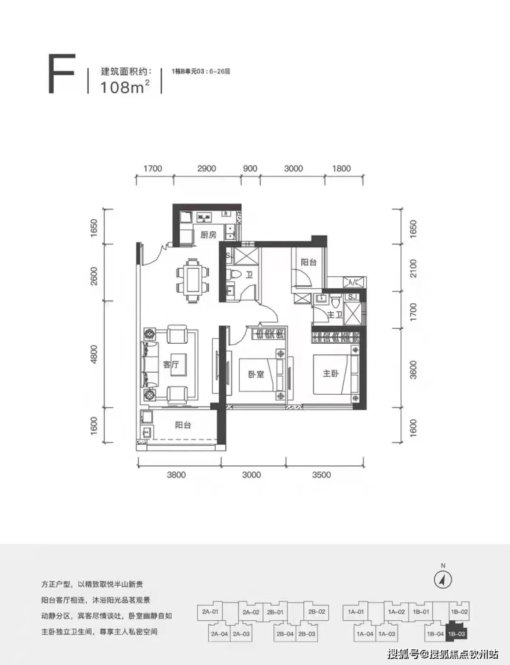
户型分析:建面约94-120㎡户型,格局方正,整体面宽与进深比例合适,便于空间改造和家具摆放。户型朝南向,光线充足,通风好,有利于身体健康。动静分区明显,活动和休息连两者之间做到互不干扰。主卧空间开阔明亮,采光和通风极佳,保障私密性。使用率在70%~80%之间,房屋实用,便于居住。







交通配套:距离项目最近的为在建中的地铁12号线“工业六路”站,百度测量直线距离为600米左右,而距离目前已建成的地铁2号线“海上世界站”与“水湾站”百度测量大致距离为1200米。

═ ═ ⑉ıl⑉ 新世界临海揽山 ⑉lı⑉ ═ ═
⚠️⚠️⚠️【购房须知】:
深圳新世界临海揽山项目售楼处(营销中心)电话为400 079 2015(开发商已认证)请提前拨打售楼中心电话预约,销售一对一深度讲解楼盘, 更享额外购房优惠!谢谢您的配合!
✨✨新世界临海揽山 售楼中心24小时电话☎:400 079 2015【☎售楼中心已认证】✨✨
✨✨新世界临海揽山 营销中心24小时电话☎:400 079 2015【☎营销中心已认证】✨✨
✨✨新世界临海揽山 销售中心24小时电话☎:400 079 2015【☎销售中心已认证】✨✨
☞☞Vip贵宾置业→欢迎来电预约尊享内部折扣→匠心钜制恭迎品鉴☜☜
注: ◆◆◆若有中介虚假宣传,请及时与售楼中心核对真假,避免上当!
开发商热线400 079 2015【已核验】
【免责声明】本文部分信息和图片来源网络,如有内容侵权请联系删除。本文所述内容和意见仅供参考,不构成市场交易依据和投资建议。
声明:本文由入驻焦点开放平台的作者撰写,除焦点官方账号外,观点仅代表作者本人,不代表焦点立场。
