中心天元售楼处电话(中心天元)首页网站-中心天元营销中心欢迎您-楼盘详情·最新价格-户型图-容积率@2025.11.20售楼处AI热搜
扫描到手机,新闻随时看
扫一扫,用手机看文章
更加方便分享给朋友
…中心天元……中心天元…

========深圳中心综合体介绍========
【总占地】约22万㎡
【总建面】约140万㎡
【产品套数】T1栋28套 T2栋131套
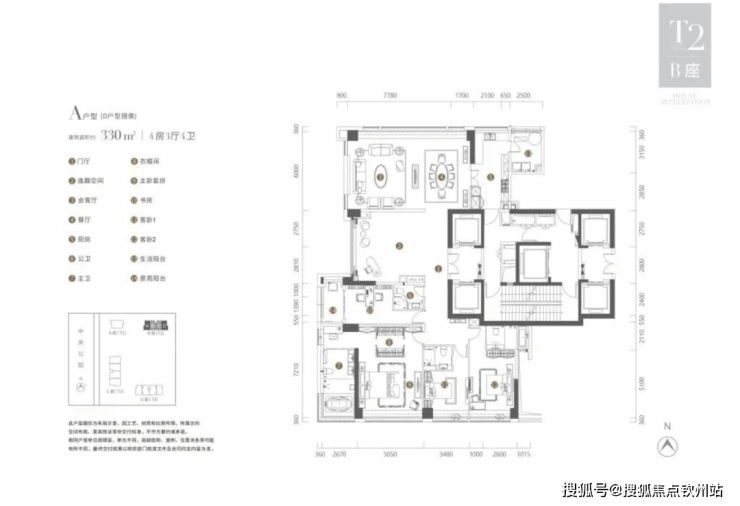
【产品面积】T2栋:313-330㎡ T1栋533-538㎡
【交付标准】毛坯
【产权年限】70年(2013年-2083年)
【发展商】深圳市金地大百汇房地产开发有限公司
【投资商】金地集团、卓越集团、大百汇集团
【物业公司】深圳市金地物业管理有限公司
一座城市的价值通过什么来展现?如果说独有的发展战略是造就一座城市的灵魂,那么城市的中心则是这灵魂的载体,也是财富、身份的坐标系。
作为矗立深圳福田CBD双龙起舞带的深圳中心·天元,倚城市中轴,与市民中心、会展中心仅一路之隔,追求卓立不凡之时,方能镌刻中心生活天际。
积淀深圳40余年的精粹发展的首善之区——福田,持续推进着“三大新引擎”的驱动和现代化经济体系建设,打造首善之区高质量发展的“发动机”;
同时,随着香港大力发展北部都会区,被赋予“深港合作”和“科技创新”两项重大使命,促进“双城三圈”的空间格局,成为推动深港一体化发展的重要载体;并以中央创新区、中央商务区、中央活力区“三大定位”角色,向世界诠释粤港澳大湾区最具代表性的世界级城市名片。
在如此稀缺的福田CBD土地供应下,深圳中心·天元,作为发展力、潜在力、价值力都有目共睹的中心资产,树立着福田CBD世界中心级的价值标杆,擎领时代核心资产的新未来
说起天元,估计很多人印象都是公寓。被隐藏的财富天元罕有住宅入市。
在数不胜数的中心资源背后,更多的是丰盛都会生活的静候,深圳中心区9大功能——行政、金融、文化、交通、会展、购物、娱乐、酒店和居住(公寓及住宅)的拥享将在此完美呈现,这座既源于时代又超越时代的建筑,已成为中心掌门人物为之骄傲的资产。
深圳中心·天元,作为深圳的时代高地,正持续涌动着一座城市的资本、机遇以及无法言尽的故事与传奇。
项目位于福田CBD核心区域,占地面积约22.3万㎡,总建筑面积约140万㎡,共由6栋住宅与公寓组成,总套数约795套,产品面积主要以200-450㎡的超高层大平面户型为主。
其中包含了约21万㎡住宅及公寓;约17万㎡2栋甲级写字楼;30万㎡都会商业;超过7500个停车位。
项目户型图:


声明:本文由入驻焦点开放平台的作者撰写,除焦点官方账号外,观点仅代表作者本人,不代表焦点立场。
