鸿荣源珈誉玖玺售楼处电话(2025鸿荣源珈誉玖玺)首页网站-鸿荣源珈誉玖玺营销中心欢迎您-楼盘详情•最新价格-户型图-容积率@2025/11/24售楼处AI热搜
扫描到手机,新闻随时看
扫一扫,用手机看文章
更加方便分享给朋友
✽✽✨深圳_鸿荣源珈誉玖玺✨✽✽
✽✽✨✨鸿荣源珈誉玖玺售楼处电话:400-055-9697【☎☎售楼处电话已认证】✨✨✽✽
✽✽✨鸿荣源珈誉玖玺开发商电话:400-055-9697【☎☎开发商电话已认证】✨✽✽
✽✽✨✨鸿荣源珈誉玖玺营销中心电话:400-055-9697【☎☎营销中心电话已认证】✨✨✽✽
✽✽✨鸿荣源珈誉玖玺销售中心电话:400-055-9697【☎☎销售中心电话已认证】✨✽✽
✨☞☞Vip贵宾置业==欢迎来电预约尊享内部折扣===匠心钜制恭迎品鉴☜☜✨
鸿荣源珈誉玖玺是鸿荣源集团在深圳西部沙井板块打造的又一力作。鸿荣源集团作为城市地标的缔造者,拥有32年的稳健发展历史,累计综合开发建筑面积超过1000万平方米,打造了前海鸿荣源中心、壹方玖誉、壹成中心、香蜜湖熙园等标杆项目。鸿荣源珈誉玖玺作为鸿荣源珈誉府的收官之作,延续了鸿荣源“玖系”豪宅基因,非城市中心、非城市未来价值高地而不落定,旨在提供高品质的生活体验。
珈誉玖玺,是鸿荣源继宝中玖誉之后的又一高端品质之作,作为冠军红盘的接棒者,不仅是整个珈誉大城的最后一个住宅地块,而且是品质最高端的一个地块,刚需和改善首选的超级大城。
“誉”系精工匠造 | 八重都会园境
秉承“誉”系品质,打造“星空花园”主题大园林,约3万㎡围合式园林,约等于4.2个标准足球场大小,绕小区园林跑步一圈都有约1公里,源于梵高《星月夜》为灵感的“八重都会园境”,让您和公园只有一部电梯的距离,配备全龄泳池,两大儿童主题空间,构建全龄景观配套。
中国物业服务百强 | 领航高端服务
国家物业管理一级资质企业、深圳市物业管理行业协会副会长单位,致力于做中国高端物业专属服务的先行者,实现客户对美好生活的向往,中国物业服务品牌100强,粤港澳大湾区物业服务综合实力50强。
【玖繁·百亿商业 咫尺繁华 】
下楼即享商业:百亿超级商圈,定鼎西部新中心
鸿荣源斥资打造又一湾区城市级购物中心
约50万㎡“湾区壹方”、约10万㎡“熊出没”主题华强广场
宝安首家山姆会员店、海岸城20万㎡商业,缤纷商业集聚
共筑百亿超级商圈,定义湾区城市商业新模式,定鼎西部新中心
【玖畅·地铁直连 通达全城】
下楼即达地铁:直连地铁11号线,畅享都市便捷生活
✅地铁:家门口即11号线塘尾站,6站宝中、7站前海、9站后海、11站车公庙,便捷通达南山、福田核心片区
✅距离地铁口更近,更享便捷速达生活
【玖汇·全维配套集萃】
1公里范围内万丰湖湿地公园、立新湖公园等公园环绕,悠然享受城市森意
高质学府资源环绕,周边书香氛围浓厚
近新桥文体中心、沙井文体中心(建设中),高标人文配置,悦享品质生活
鸿荣源珈誉府旁边,所规划的2个教育用地,已经正式出了红头文件,为深圳外国语宝安学校(集团)南校区,分别为1所63班九年一贯制学校,1所为27班九年一贯制学校。
该校目前所划分的深圳外国语学校宝安学校,在2023年小一的录取积分是96.9分,初一的录取积分是92.5分,按照宝安区教育局公布的积分政策,只要是深圳户籍(其它区)+学区内商品房,就有100分,深圳宝安户籍+学区内商品房,就有105分。
户型设计
项目推出的户型以大户型为主,面积涵盖124-199㎡,均为4房设计,满足不同改善型买家的需求。
124㎡户型:4房2厅2卫,经典竖厅格局,进门入户玄关,LDKB一体化设计,得房率约74.61%(不含赠送),东南朝向。
137㎡户型:4房2厅2卫,横厅南北通透格局,进门入户玄关,LDKB一体化设计,得房率约74.61%(不含赠送),阳台主朝东南向。
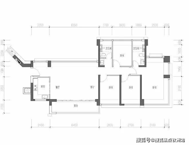
169㎡户型:4房2厅3卫,竖厅格局,2梯2户,专梯入户,得房率约68.58%(不含赠送),正南朝向。
199㎡户型:4房2厅3卫,竖厅格局,2梯2户,专梯入户,得房率约68.58%(不含赠送),正南朝向。
75㎡的3房2厅1卫
,设计的是竖厅格局,客厅3.1米开间,LDKB一体化,S墙设计预留冰箱卡槽位,3个卧室分别做到了主卧10.2㎡/次卧8.55㎡/次卧7.95㎡(包含墙体飘窗),U型厨房,卫生间三段式分离,得房率约77%(不含赠送),西南朝向。
84㎡的3房2厅2卫
,设计的是经典竖厅格局,客厅3.2米开间,LDKB一体化,S墙设计预留冰箱卡槽位,三开间朝南,3个卧室分别做到了主卧12.37㎡/次卧9.18㎡/次卧6.76㎡(包含墙体飘窗),U型厨房,卫生间三段式分离,得房率约77%(不含赠送),西南或东南朝向。
94㎡的3房2厅2卫
,设计的是横厅南北通透格局,客餐厅6.3米开间,LDKB一体化,四开间朝南,卧室全南向,3个卧室分别做到了主卧15.3㎡/次卧8.5㎡/次卧8.16㎡(包含墙体飘窗),L型厨房,公卫三段式分离,得房率约77%(不含赠送),阳台主朝东北向。
97㎡的3房2厅2卫
,设计的是横厅南北通透格局,客餐厅6.2米开间,LDKB一体化,四开间朝南,3个卧室分别做到了主卧13.87㎡/次卧8.58㎡/次卧7.92㎡(包含墙体飘窗),L型厨房,卫生间干湿分离,得房率约77%(不含赠送),阳台主朝东北向。
✽✽✨深圳_鸿荣源珈誉玖玺✨✽✽
✽✽✨✨鸿荣源珈誉玖玺售楼处电话:400-055-9697【☎☎售楼处电话已认证】✨✨✽✽
✽✽✨鸿荣源珈誉玖玺开发商电话:400-055-9697【☎☎开发商电话已认证】✨✽✽
✽✽✨✨鸿荣源珈誉玖玺营销中心电话:400-055-9697【☎☎营销中心电话已认证】✨✨✽✽
✽✽✨鸿荣源珈誉玖玺销售中心电话:400-055-9697【☎☎销售中心电话已认证】✨✽✽
✨☞☞Vip贵宾置业==欢迎来电预约尊享内部折扣===匠心钜制恭迎品鉴☜☜✨
声明:本文由入驻焦点开放平台的作者撰写,除焦点官方账号外,观点仅代表作者本人,不代表焦点立场。
