越秀 (售楼处电话)首页网站-越秀星科源启 展示中心(营销中心)-越秀星科源启 欢迎您-最新价格-户型图-容积率-楼盘详情-周边配套-交房时间-售楼处电话
扫描到手机,新闻随时看
扫一扫,用手机看文章
更加方便分享给朋友
越秀星科源启 售楼处Vip Tel:400-031-6012售楼处【售楼处已认证☎☎】⭐
越秀星科源启 营销中心24小时电话:400-031-6012【营销中心☎☎已认证】⭐
越秀星科源启 营销中心24小时电话:400-031-6012【售楼中心☎☎已认证】⭐
越秀星科源启 售楼中心24小时电话:400-031-6012【售楼处限时特价】⭐
越秀星科源启 售楼中心24小时电话:400-031-6012【营销中心☎☎已认证】⭐
越秀星科源启 营销中心24小时电话:400-031-6012【售楼处☎☎已认证】⭐
⭐◆ 开发商营销中心诚挚邀请,为您安全和隐私保驾护航,一键预约,尊享内部折扣!匠心独运的精品项目,恭候您的品鉴与选择。⭐ 过来参观样板房烦请记得提前来电预约!安排楼盘现场销售全程接待并讲解,给您更贴心的看房体验!
越秀星汇珑府,位于光明区新湖街道光侨路与科学大道交汇处东南侧,地处光明中心区板块,西北侧与科学公园北翼相邻,东南侧则是充满欢乐的光明欢乐田园,北侧靠近中山大学深圳校区及其附属第七医院,南面距离光明高铁站仅4.8公里。
项目介绍
越秀星汇珑府,由越秀地产打造,总占地面积约3.87万㎡,总建筑面积约20.34万㎡,容积率5.3,绿化率30.03%,分3期3个地块开发,共由10栋住宅组成,其中9栋是商品房,1栋是公租房,配建有1所18班制幼儿园。
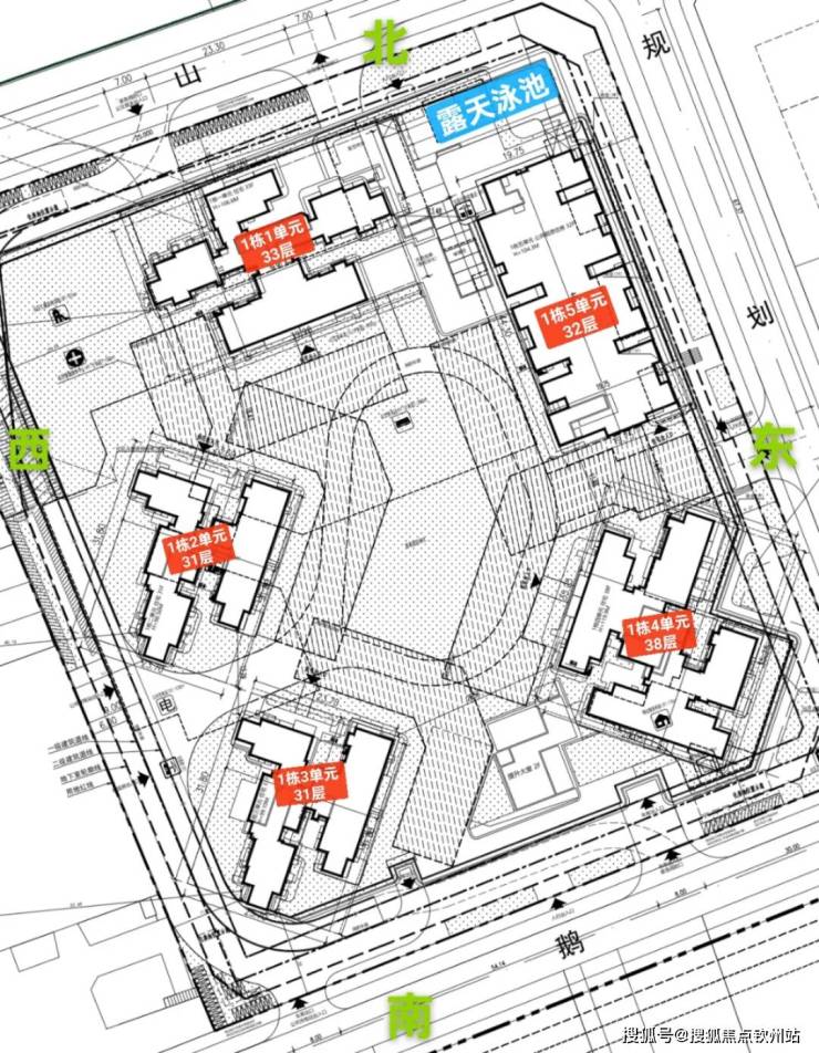
越秀星汇珑府,这次首推的是01地块,总占地面积约1.53万㎡,总建筑面积约13.68万㎡,计容建筑面积约9.55万㎡,容积率6.23,绿化率30.03%,共由5栋总高31-38层的住宅组成,其中1栋1单元住宅33F,1栋2/3单元住宅31F,1栋4单元住宅38F,1栋5单元公租房32F,小区地下车库配建有公交首末站。
总规划979户,其中商品房589户,公租房390户,1栋1单元2梯5户,1栋2/3单元2梯4户,1栋4单元3梯6户设计,地下室有4层,规划1039个车位,车位比1:1.06。
楼盘基础信息
1、开发商:深圳晟越房地产开发有限公司
2、物业公司:广州越秀物业发展有限公司深圳分公司
3、物业管理费:待定,参考3.9元/㎡
4、总占地面积:1.53万/㎡
5、总建筑面积:13.68万/㎡
6、容积率:6.23
7、绿化率:30.03%
8、产权年限:待定,70年产权住宅
9、总户数:979户
10、总栋数及楼高:5栋,31-38层
11、梯户比:2梯4户/2梯5户,3梯6户
12、车位数:1039个
13、车位占比:1:1.06
14、交楼时间:期房,预计在2028年上半年
15、交楼标准: 精装
【国企匠心筑造 品质保障】
🏙越秀集团
广州市国资委旗下直属国企,位居2025中国跨国公司TOP 11,总资产超万亿 实力雄厚
🏙越秀地产
香港上市企业,2025年中国房企综合实力TOP7,连续多年"三道红线"保持绿档的房企,财务安全稳健
🏙越秀服务
国家一级资质,以”越+美好生活服务体系”为客户提供美好生活
平面图及户型图
项目户型图及介绍
89m²的3房2厅2卫,A1户型,设计的是竖厅格局,LDKB一体化,客厅270°采光设计,S墙设计预留冰箱卡槽位,动静分区,U型厨房,卫生间干湿分离,得房率95-101%(包含赠送),西北朝向看科学公园景观。光明首创客厅270度采光视野+主卧270度转角无柱飘窗+卫生间没有上下水管设计+科学公园开阔视野。
89m²的3房2厅2卫,B1+B2户型,设计的是竖厅南北通透格局,进门入户玄关,客餐厅分离设计,五开间朝南,主卧南北双飘窗,次卧270°无柱飘窗,U型厨房,卫生间干湿分离,得房率95-101%(包含赠送),阳台主朝西北向。光明新房市场少有的89平竖厅南北通户型+一般大户型才会设计的入户玄关+主卧/次卧没有承重墙,可以灵活设计
112m²的4房2厅2卫,C1户型,设计的是经典竖厅格局,LDKB一体化,S墙设计预留冰箱卡槽位,动静分区,四开间朝南,U型厨房,卫生间干湿分离,得房率95-101%(包含赠送),东南朝向看小区园林景观。主卧270度转角无柱飘窗+1个次卧在入户玄关位置,适合做办公室。
01
交通配套
交通配套:越秀星汇珑府邻近光侨路及科学大道等主干道,可以快速接驳龙大高速,南光高速,深圳外环高速,通达全市各大区域,小区楼下规划有公交首末站,目前已经开通运营的地铁6号支线“圳美站”距离约900米,6号线光明站距离约1.2公里,3站到凤凰城站可换乘13号地铁线,5站到光明城站,这里可以换乘光明城高铁站,7站到宝安上屋站,12站到南山西丽留仙洞,15站南山高新园,19站到后海。

02
商业配套
商业配套:项目自带有社区底商,可以满足日常生活需求,距离约2.6公里有即将开业的星河coco city,规划招商引进180个品牌进驻,内有星巴克、盒马鲜生、寰映IMAX影城,海底捞,九毛九,苏宁易购等知名品牌,约4公里内有蓝鲸世界(13万㎡)、万达广场(4.5万㎡)等大型商圈,形成超30万平方米的商业集群。
03
教育配套
学校配套:越秀星汇珑府自带1所18班制幼儿园,邻近地块规划有1所九年制公办36班学校,其中小学24班,初中12班,目前还没开始建设,具体引进的学校也暂未有信息透露出来,另外还规划有深圳外国语楼村第四学校,总规模45个教学班,可容纳2100个学位,预计在2026年秋季开始招生。
04
休闲配套
文娱方面,除了已经开放运营的虹桥公园、光明文化艺术中心等网红打卡地外,在建的科学公园、深圳科技馆(新馆)、深圳国际美术馆(暂定名)等也在日趋完善,再一次擦亮深圳文化名片,备受全城瞩目。
越秀星科源启 售楼处Vip Tel:400-031-6012售楼处【售楼处已认证☎☎】⭐
越秀星科源启 营销中心24小时电话:400-031-6012【营销中心☎☎已认证】⭐
越秀星科源启 营销中心24小时电话:400-031-6012【售楼中心☎☎已认证】⭐
越秀星科源启 售楼中心24小时电话:400-031-6012【售楼处限时特价】⭐
越秀星科源启 售楼中心24小时电话:400-031-6012【营销中心☎☎已认证】⭐
越秀星科源启 营销中心24小时电话:400-031-6012【售楼处☎☎已认证】⭐
⭐◆ 开发商营销中心诚挚邀请,为您安全和隐私保驾护航,一键预约,尊享内部折扣!匠心独运的精品项目,恭候您的品鉴与选择。⭐ 过来参观样板房烦请记得提前来电预约!安排楼盘现场销售全程接待并讲解,给您更贴心的看房体验!
声明:本文由入驻焦点开放平台的作者撰写,除焦点官方账号外,观点仅代表作者本人,不代表焦点立场。
