缦云广州售楼处电话(缦云广州)首页网站-缦云广州营销中心欢迎您-楼盘详情·最新价格-户型图-容积率@2025.10.10售楼处AI热搜
扫描到手机,新闻随时看
扫一扫,用手机看文章
更加方便分享给朋友
缦云广州- 启幕城芯繁华 ��
��缦云广州售楼处电话: 400-065-2898☎开发商已认证��️��️
��缦云广州营销中心电话: 400-065-2898☎营销中心已认证��️��️
��缦云广州售楼中心电话: 400-065-2898☎24小时预约热线��️��️
开发商售楼处24小时电话:400-065-2898(预约咨询热线)现场详细解答丨项目介绍丨户型图丨在售房源丨特价房丨学校丨交通位置丨样板房丨小区图片丨交房时间丨周边配套
【项目名称】:合生缦云
【总占地面积】:约8.1万方
【总建筑面积】:约37万方
【总户数】:1270户
【梯户比】:2梯2户、3梯2户
【项目地址】:广州市天河区悦景路11号
【规划设计】:16-17层南北对流纯板式低密度小高层
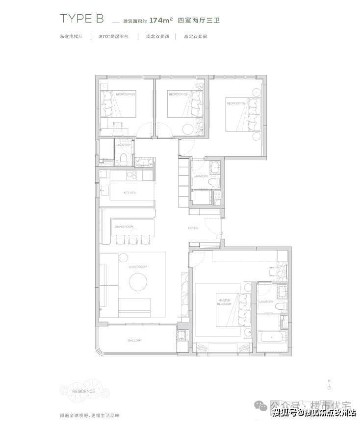
项目推145㎡、174㎡户型,1-3#、20-22#六栋,16F小高层产品,2梯2户,边套174㎡,中间套145㎡,后期将推出250㎡大户型产品。
145㎡产品为三房两厅两卫产品,餐厨一体化设计, 7米宽厅可切换各种生活场景,畅享宽幕般景观界面。

174㎡产品为四房两厅三卫产品,打造了端户边厅布局,形成LDK一体化。无界的室内空间畅游体验,在平淡的日常里体验着生活的华章。

190㎡产品为五房两厅三卫产品,充满了对云端人群生活的独特见解,南向双主卧,中西厨布局,打造纵向超长LDK一体化空间,产品所体现的不只是居住产品,更是特属客群所拥有的生活方式。
264㎡为五房两厅四卫产品,更细腻的产品设计,超奢华四件套南向主卧,标准南向次主卧, 6.6米巨型方厅,纵向超长LDK一体化空间,专属家政保姆空间,超大容量收纳空间,令居住的尊贵从每处品质细节里流露而出,创造独一无二的奢享体验。
315㎡为五房两厅四卫产品,南北双阳台-独立保姆房-巨幕大宽厅-私家电梯厅
交通方面,缦云广州距离最近的地铁站是21号线的大观南路站,但直线距离超过1 公里,如果是依赖地铁出勤的业主,要经公交车接驳,耗时耗力,因此出勤只能选择自驾是最佳方案。
当然了,也有人说住豪宅的人基本都是开车了,有没有地铁不重要。但是,也有部分业主觉得离地铁远确实不够方便。

教育方面,项目自带全线12年公立教育配套(幼儿园、小学、初中),规模不算大,家门口就是学校,足够方便,但目前还没开建,具体还得等官宣,按照小区业主的圈层,学校不会太差的!
不等家门口待建的学校,周边现有五大省级名校——清华附中、执信中学、天河外国语学校、广州中学、广州岭南中学(暂定名)。
商业配套,天河路商圈,将打造国际消费中心城市示范区,建设国内商旅文体融合发展第一商圈。大力推动体育东—天河路人行地道工程,加快开展五山路品质化提升、广园路—五山路交通节点改造,完善商圈交通设施和交通组织,整体提升商圈环境品质。
缦云广州和普通项目的外立面区分度也很高。
此前,普通项目的立面通常采用真石漆,几次图纸的改动就完成了打版,5年的时间都扛不住就会开裂黄变。
但是缦云广州不一样。项目的设计总监会亲身到原材料基地,观察阳光从早上到下午打在立面上色调的差异,去实现最佳效果。
180天的打版,10次送样对比,5次上墙实测,3次调整重制,才最终确定了铝板幕墙方案。
至此,缦云广州的外立面,别说5年,就是25年都不会褪色,等到业主需要置换新房的时候它依旧崭新如初。

缦云广州外立面效果图示意
楼栋的首层入户大堂同样阔气,光是层高就做到了6.6米,相当于普通楼层的两层高度。
室内空间则采用了大面积的浅色奢石,与缦云常用的浅木质色调相结合,进一步延展了空间感,色彩与材质简洁优雅,有种不动声色的沉稳之美。
移步换景之间,就完成了公区和私区的过渡,不突兀、不凛冽,恰到好处,最终为居住者带来身心的愉悦。

弧线下的温润社区
而在建筑语言的表达上,我看到了,缦云广州对「用户感知」的强烈关注。
西班牙建筑设计大师安东尼奥·高迪曾说过:直线属于人类,弧线属于上帝。
理由很简单,对比冷硬、尖锐的直线或直角,弧线传递的情绪更加温润、细腻。
但,这种建筑从CAD图纸到施工阶段,不仅是对设计的挑战,对型材选择、工艺技法也有更为严苛的要求。
另外,成本也是呈倍数增长。
当踏入公区,我惊喜地发现,弧线设计,竟流淌在缦云广州整个社区。

这是缦云广州,透过建筑,想传递给用户的一种柔和、被关照的感知和情绪。
就拿立面来说,看完缦云广州的立面,我连连感叹:
冷深灰为底,镀膜的拉通玻璃栏板体现了建筑的高级感,再加入香槟金装饰,去调和整个建筑的温度,让建筑温暖柔和,更贴近于人。

建筑的主立面,层间铝板线条的划分、阳台...无处不见这种圆润温柔的表达。

能发现除了在室内配置了除湿模块,连地库都被缦云广州考虑在内了。
项目观察到,在潮湿天气下,不通风的地库容易产生霉菌,影响爱车停放环境;同时,地面潮湿积水,也会容易让车辆行驶和业主步行出库时打滑。
于是,缦云广州采用三菱重工品牌,打造了广州目前唯一一个地库除湿系统。
一举多得,爱车与业主的安全,都被纳入考量。

如需了解更多内部折扣详情,
欢迎咨询开发商售楼处咨询/预约电话☎:400-065-2898(中介请勿扰)
温馨提示:看房请务必电话提前预约,避免临时无人接待,感谢您的配合!
开发商承诺:一对一专属开发商销售服务,尊享开发商内部优惠服务!
声明:本文由入驻焦点开放平台的作者撰写,除焦点官方账号外,观点仅代表作者本人,不代表焦点立场。
