(深圳)2025南山开云府 _南山开云府 欢迎您营销中心电话资讯南山开云府丨南山开云府 楼盘详情
扫描到手机,新闻随时看
扫一扫,用手机看文章
更加方便分享给朋友
南山开云府售楼处Vip Tel:400-031-6012售楼处【售楼处已认证☎☎】⭐
南山开云府营销中心24小时电话:400-031-6012【营销中心☎☎已认证】⭐
南山开云府营销中心24小时电话:400-031-6012【售楼中心☎☎已认证】⭐
南山开云府售楼中心24小时电话:400-031-6012【售楼处限时特价】⭐
南山开云府售楼中心24小时电话:400-031-6012【营销中心☎☎已认证】⭐
南山开云府营销中心24小时电话:400-031-6012【售楼处☎☎已认证】⭐
⭐◆ 开发商营销中心诚挚邀请,为您安全和隐私保驾护航,一键预约,尊享内部折扣!匠心独运的精品项目,恭候您的品鉴与选择。⭐ 过来参观样板房烦请记得提前来电预约!安排楼盘现场销售全程接待并讲解,给您更贴心的看房体验!
项目基本信息
项目名称:
开发商:深圳市海城锦实业发展有限公司
占地面积:约3.4万㎡
总建筑面积:32万㎡
建筑类型:住宅、写字楼,五星国际酒店,商业裙楼
物业公司:赤湾物业
物业费:6.9/平/月
楼栋数:4栋(2栋可售住宅,1栋保障房,1栋酒店办公)
总户数:可售418户
产品面积段:约124-129㎡-133㎡-203㎡ 3-4房326㎡-677㎡顶复
梯户比:4梯4户(1梯1户) /4梯6户
容积率:7.0
绿化率:30%
使用率:71-76%
车位比:1346个1:1.1(地上460,地下886)
楼层高:49-54层
层高:3.1-3.2m
交楼时间:2025年6月
交付标准:精装
产权年限:50年(04-54年)
房屋用途:二类住宅
学位:南二外赤湾学校
项目概况】
🔸 占地面积:约3.4万㎡
🔸 建筑面积:约32万㎡
🔸 绿化率:30%
🔸 业态:住宅、商业、写字楼、国际五星级酒店
🔸 可售住宅:418户
🔸 车位配比:约1:1.1
🔸 梯户比:T1栋4梯6户;T2栋4梯4户
🔸 交房时间:毛坯2024年12月交付,精装2025年6月交付
🔸 开发商:深圳市海城锦实业发展有限公司
🔹 项目地址:南山区赤湾六路东北侧(地铁2/5号线“赤湾站”上盖)
「半岛擎峯二期」是赤湾汇广场综合体的住宅项目,这个综合体包括了商品房、人才房、办公、酒店和商场。
其中商品房住宅单独占有一个地块,有两栋超高层组成。
半岛擎峯也是开云府2期,该楼盘全部都是商品房住宅,无安居房、公租房、回迁房等,并且属于赤湾首排一线海景住宅,一梯一户板楼设计,户户朝南。
配套价值
【纵横繁华要脉 擎领湾区生活圈】
🔘5地铁:毗邻地铁2/5号线赤湾站,近12号线,1站太子湾、2站海上世界,
24号线和28路线双地铁规划中。
🔘多路网:兴海大道、南海大道、望海路、妈湾跨海隧道(建设中)等多条
干道环绕,从容往来全城。
🔘1航空:速抵深圳宝安国际机场,链接世界精彩。
🔘1海运:紧邻太子湾邮轮母港,连通香港,走向世界。
🔘1快轨:深港西部通道铁路建成后,将快速缩短香港与深圳之间的通行时间。
【国际名校为邻 一站式精英教育】
🔘公立学校:4所幼儿园、南二外赤湾学校、北师大附中高中部、
两所九年一贯制学校(规划中)。
🔘国际学校:南山中英文学校、深圳贝赛斯国际学校,
深圳前海哈罗港人子弟学校、深美国际学校等。
【百万国际商圈 畅享都市万千繁华】
🔘滨海TOD综合体(自带约4.6万方商业+约3万方国际五星级酒店),
将引进知名运营商统一运营。
🔘地铁1站直达太子湾,享受K11 ECOAST亚洲旗舰店、兰桂坊(在建中),
2站海上世界,链接蛇口、前海高端商业。
🔘约6公里范围内华润万象前海、前海山姆会员店、卓悦Intown、
蛇口沃尔玛、招商花园城、海岸城、宝能太古城、来福士广场等多个大型商超。
【环山抱海臻境 居所亦是度假地】
🔘三山为庭:大南山、小南山、赤湾山三山林立,写就城市自然间生活交响曲。
🔘一海为院:伶仃洋天然在侧,黄金海岸线前沿占位,感受妈祖文化、
见证郑和下西洋的远航足迹。
🔘七园为邻:约2公里范围内,有大南山公园、小南山公园、
文天祥纪念公园、赤湾公园、兴海公园、月亮湾公园等公园环伺。
🔘人文沉淀:周边历史遗迹云集,文天祥纪念公园、天后宫、赤湾烟墩、
左炮台等,真切感受历史底蕴。
【三甲国际医疗 为健康全维护航】
距太子湾国际医院约1.8km(在建中),近南山区蛇口人民医院、
南山区妇幼保健院、南方医科大学深圳医院等多家三甲医院。
项目区域价值
【双湾交汇 城市战略前沿】
作为国家海上丝绸之路的桥头堡,赤湾占据前海湾和蛇口双湾交汇处,是两大中心组团双向奔赴的融合地带,是世界服务贸易重要基地和国际性枢纽港,既可享前海发展利好,亦可享蛇口国际生活配套。
项目周边配套
交通配套:山海丹华府距离2/8号地铁线“赤湾站”距离约300米,步行约5分钟即可,2站到海上世界,前海妈湾,另外附近有小南山隧道在建,待开通后可直达前海核心区,还有妈湾跨海通道在建,待开通后可直达腾讯科技岛,无缝对接中山通道。
学校配套:项目200米处有南二外赤湾学校,该校有41个班,其中小学26班,初中15班,是1所九年制公办学校;南山中英文学校,该校是1所12年制的国际学校,涵盖小学,初中,高中,于2023年9月份已经正式开学,并且开办了协同港籍学生班, 是一所获得深圳教育局和香港教育局统一批准的港籍子弟班。这也就意味着学校办学稳定,学生可无缝衔接香港的学校。
商业配套:项目约200米有约4.6万㎡赤湾汇商业(待营业),约1.9公里有约46万㎡的太子湾高端商业(在建,建成后将会是整个深圳最大体量最高端的商业体,内有K11ECOAST,兰桂坊太子湾等),约2.2公里有海上世界,2站可以抵达前海印里,前海世贸中心等商业综合体。
K11ECOAST是K11在内地的首个旗舰项目,计划在2024年底开业运营,总建筑面积约22.85万㎡,延续了K11品牌 “艺术·人文·自然”三大核心元素,涵盖K11购物艺术中心、K11 HACC多用途艺术展览空间、K11 ATELIER办公楼及Promenade海滨长廊等。
K11 ECOAST致力打造中国有影响力的海滨文化艺术区,开业后将成为深圳最大的购物中心之一,也是粤港澳大湾区的商业新标杆与名片。
项目户型介绍
113㎡的3房2厅2卫,设计的是竖厅格局,电梯入户送独立公区,LDKB一体化设计,动静分区,三开间朝南,客厅连接次卧出超大观景阳台,主卧大套间设计,二字型厨房带1个小生活阳台,卫生间干湿分离,得房率:72.07%(不含赠送),西南朝向。
124㎡的3+1房2厅2卫,1栋02/2栋04户型,电梯入户送独立公区,设计的是竖厅格局,LDKB一体化设计,动静分区,主卧套间设计,还有一个多功能间可以做书房,U型厨房,公卫三段式分离,得房率:72.07%(不含赠送),西南朝向。
124㎡的4房2厅2卫,1栋01/2栋05户型,电梯入户送独立公区,设计的是横厅南北通透格局,客餐厅6.1米开间,LDKB一体化设计,五开间朝南,主卧大套间设计,6.1米长观景大阳台,U型厨房,公卫三段式分离,得房率:72.07%(不含赠送),西北或东南朝向。
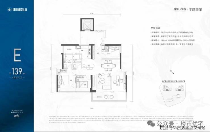
139㎡的4房2厅2卫,1栋03/2栋02高区户型,电梯入户送独立公区,设计的是竖厅类双龙抱珠格局,四开间朝南,主卧大套间设计,有1个多功能间可以做书房,6.4米长观景大阳台,L型厨房带1个生活阳台,卫生间干湿分离,得房率:72.07%(不含赠送),西南朝向。
167㎡的5房2厅3卫,1栋02/2栋03高区户型,电梯入户送独立公区,设计的是竖厅双龙抱珠格局,四开间朝南,超宽敞客厅巨幕阳台,主卧大套间设计,U型厨房,双公卫三段式分离,得房率:72.07%(不含赠送),西南朝向。
南山开云府售楼处Vip Tel:400-031-6012售楼处【售楼处已认证☎☎】⭐
南山开云府营销中心24小时电话:400-031-6012【营销中心☎☎已认证】⭐
南山开云府营销中心24小时电话:400-031-6012【售楼中心☎☎已认证】⭐
南山开云府售楼中心24小时电话:400-031-6012【售楼处限时特价】⭐
南山开云府售楼中心24小时电话:400-031-6012【营销中心☎☎已认证】⭐
南山开云府营销中心24小时电话:400-031-6012【售楼处☎☎已认证】⭐
⭐◆ 开发商营销中心诚挚邀请,为您安全和隐私保驾护航,一键预约,尊享内部折扣!匠心独运的精品项目,恭候您的品鉴与选择。⭐ 过来参观样板房烦请记得提前来电预约!安排楼盘现场销售全程接待并讲解,给您更贴心的看房体验!
声明:本文由入驻焦点开放平台的作者撰写,除焦点官方账号外,观点仅代表作者本人,不代表焦点立场。
