珠海卓越唐家墅官方售楼处电话丨官方首页网-官方售楼处欢迎您-最新价格-户型图-容积率-地址-楼盘详情
扫描到手机,新闻随时看
扫一扫,用手机看文章
更加方便分享给朋友

唐家湾腹心,背倚凤凰山麓,头排与55公里海岸线一路之隔,对望淇澳岛,近享红树林湿地公园,天赋山海半岛。
三层独栋,豁朗进深,阔绰门廊,全套房设计,私家泳池,私家地库,私享花园。210-375㎡尊嵩大宅。
这栋别墅令你的朋友羡慕不已的是:它拥有双首层立体花园,独门独院,有天有地,任谁有多深的“庭院情结”都会感到满足。
赠送首层空间,超200%空间使用率,昭示家族专属领地;
私家庭院,无论是家宴或聚会,推杯换盏间,总有阵阵花香萦绕;
室外可设恒温泳池、双车库;室内多功能空间,私我的演绎场,可涵盖健身房、酒窖、品酒区、茶室、棋牌室、工具间、视听室等多样化功能,标榜豪宅身份,满足业主奢华居家需求;
4.5米挑高,大开间设计,可作私人宴会厅,宴请宾朋,会晤彰显财富魅力;
可设佣人房,主佣分区,不干扰主人私生活。
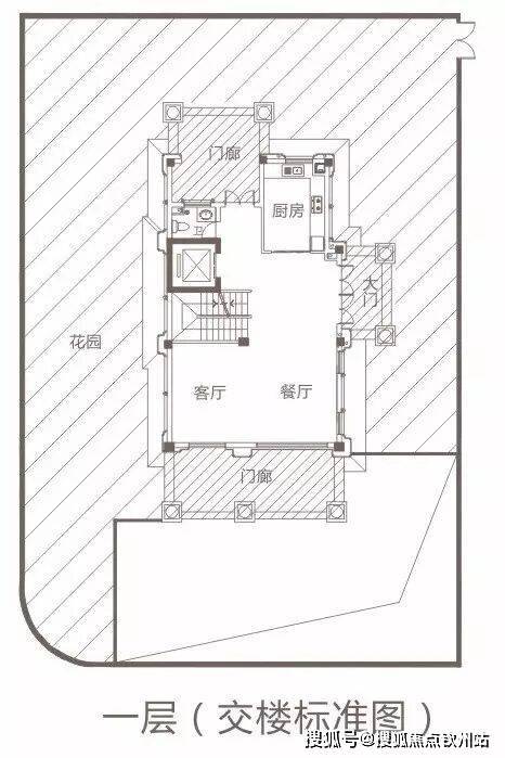
首层户型鉴赏:
一层赠送露天花园:
赠送一层露天花园,种花品茶,和煦阳光下静静阅读,享悠闲时光;
室内可设中西双厨及双餐厅,中西餐满足家庭不同口味需求,凸显主人尊崇的居家品味,尽显优越气派生活。来访的友人会惊叹这里细腻的生活乐趣,主人却如此自在地出入平常;
饮食与起居完全分开,健康优雅生活本就该隔绝油烟。
一层户型鉴赏
二层豪华双套房设计:
双套间设计,家族成员间,既有自己性格的空间,彼此融合,又保有绝对私密性;
小套间享独立天地,大套间可作长辈房或客卧,穿过书房推门即是景观阳台,俯瞰楼下立体花园,错落间美不胜收。

二层户型鉴赏:
三层主人豪华套间:
令人惊羡的是主人房居然占据整个三层平面;
主人房豪华套间设计,配备独立洗盥间、衣帽间、阳光书房,或阅读,或音乐,或浅睡,或长谈,动静之间即见布局大略;
如果你有思考时踱步的习惯,独立无忧的书房外空阔的大露台,最适合不过了。

卓越唐家墅售楼中心电话:400-605-8819【☎☎已认证】
卓越唐家墅售楼处电话:400-605-8819【☎☎已认证】
卓越唐家墅营销中心电话:400-605-8819【☎☎已认证】
本文内容为广告推广,涉及房价或现有房源可能出现变更,请致电详询并以售楼部为准
免责声明:本文如无意中侵犯了某方的知识产权告知即删,部分内容图片可能来源于网络,无法核实其真实出处,如涉及侵权请联系本网站删除!!
声明:本文由入驻焦点开放平台的作者撰写,除焦点官方账号外,观点仅代表作者本人,不代表焦点立场。
