壹城中心十区寓营销中心欢迎您-周边配套-楼盘详情-最新价格-备案价@售楼处
扫描到手机,新闻随时看
扫一扫,用手机看文章
更加方便分享给朋友
壹城中心十区售楼处电话:400-066-0916【售楼处已认证】
壹城中心十区开发商电话:400-066-0916【售楼处已认证】
✅ 为您安排楼盘现场销售全程接待并讲解,给您更贴心的看房体验!
壹城中心十区营销中心电话:400-066-0916【售楼处已认证】
壹城中心十区展示中心电话:400-066-0916【售楼处已认证】
☞☞Vip贵宾置业==欢迎来电预约尊享内部折扣===匠心钜制恭迎品鉴☜☜
✅ 过来参观样板房烦请记得提前来电预约!
项目基本信息
开发商:鸿荣源地产
地址:深圳市龙华区景龙建设路与景龙太平路交汇处
占地:130万㎡(十区:2.53万㎡)
建面:320万㎡(十区:29万㎡)
产权:70年(15-95年)
总户数:1656可售1056
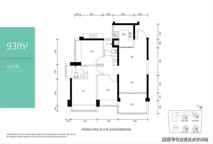
面积:85-93㎡3房2卫
车位比:1600个1:0.97
梯户比:3梯6户
价格:6.1.-7.4万
交楼标准:精装
物业公司:鸿荣源物业
物业管理费:5.3元/㎡
容积率:5.9
绿化:40%
交楼时间:2024年12月
建筑类型:住宅
层高:3米
使用率:80%
楼层高:47-49层
栋数:4栋
水电:民水民电
学校:龙华创新实验
开发商品牌与楼盘品质
壹城中心十区是由鸿荣源打造,作为深圳本土知名开发商,鸿荣源在房地产领域深耕多年,开发了多个标杆项目 ,如鸿荣源壹方中心等。其品牌在市场上拥有较高的认可度和美誉度,购房者对其品质和物业服务也较为信赖。在建筑质量上,壹城中心十区的用材和工艺都展现出较高水准 ,小区的园林景观、公共设施等也都经过精心设计与维护。
区域价值
「 龙华超级商圈,世界级消费中心 」
龙华超级商圈:龙华六大重点片区之一,以人民路为中轴,规划承载中洲龙商旧改、龙华海岸城旧改为核心,打造人民路龙华超级商圈。
世界级消费中心:未来龙华超级商圈将成为规模超200万㎡、产值超500亿的市级核心商圈和世界级未来消费体验中心。
【千万级城市更新】——40+品牌房企入驻
(片区约4个百万体量、7个50万以上体量旧改;如中洲、德业基、卓越、华润等一线房企

2022年5月底,深圳首个超级商圈震撼启动——龙华超级商圈,萃取龙华中心区约3.25平方公里黄金地段,意在打造规模超200万㎡的市级核心商圈和世界级未来消费体验中心。近日,深圳市商务局官网发布《深圳市商业网点规划(2023-2035)(征求意见稿)》,龙华超级商圈被划定为7个“全国引领级商圈”之一。
交通配套
距离4号线龙华站直线距离约500m
未来壹成四周有望环绕25/27/22号线
25、27号线线路规划草案已公布
地铁方面:距离最近的4号线龙华站,800米左右,步行约12分钟,也是离地铁相对较近的一个区。附近目前没有在建的地铁,规划中的有27号线的油福站和25号线的景龙站,兑现周期比较长。

教育配套
龙华创新实验学校及其附属幼儿园:九年一贯制公办学校,初中24个,小学36个共计60个教学班,附属幼儿园18个教学班,三所公立幼儿园【均已开学】(鸿创、鸿悦、鸿尚)

一所9班幼儿园(规划中)24班初中(规划中),龙华第二实验学校【已开学】:是一所书院式、园林式的现代化创新型公立九年一贯制实验学校(小学48班,初中24班)
商业配套
深圳最大体量城市集群型商业
壹方天地——五大主题商业精彩兑现
云集超1000家品牌商家,其中网红轻奢餐饮超50家、品牌美食超90家、娱乐潮玩超20家、国际一线美妆超20家、潮流服饰超300家
医疗配套
三甲医疗配套环伺,健康养老有“医”靠
新华医院(在建中)
深圳市首座超大型医疗综合体总建筑面积50.9万平方米,规划床位2500张是一家集医疗、科研、教学为一体的三级甲等综合医院。
深圳第二儿童医院(在建中)
总建设用地面积约40072.95 m2,规划床位1500张集儿科医疗、教学、科研、健康体检于一体定位为区域性中心医院,服务范围辐射深圳全市。
生态配套
城市公园环绕,城央稀缺生态绿氧生活
坐拥红木山水库、红木山郊野公园(规划中),生态绿氧环绕。政府斥资16亿打造生态绿谷之城,全长9公里的绿谷景观轴,中轴景观地标。附近还有德逸公园,龙塘公园,绿廊公园,北站中心公园,西头社区公园,油松滨水公园,龙胜公园,阳台山森林公园,龙华公公园,黄金山公园,清华文化公园等

文体配套
【樾人文】泱泱文脉艺术馆藏
深圳美术馆新馆:建面约6.56万㎡,建成将是深圳最大美术馆(预计2023年建成)
深圳图书馆北馆:建面约7.2万㎡,规模超越深圳图书馆(预计2023年建成)
深圳文化馆新馆:建面约8.33万m²,覆盖各类群体、艺术门类的地标建筑(预计2025年建成)

展览馆:室内展厅建面约1500㎡,市外园林建面约3000m²,中轴又一文化、艺术交流中心(已开馆)
演艺馆:建面约1.2万m²,比肩深圳欢乐海岸水秀剧场规模(已开馆)
简上体育综合体:建面约6.4万m²,龙华全民健身中心,综合性体育场馆(已开馆)
户型鉴赏



鸿荣源壹城中心十区(深圳龙华)
壹城中心十区售楼处电话:400-066-0916【售楼处已认证】
壹城中心十区开发商电话:400-066-0916【售楼处已认证】
壹城中心十区营销中心电话:400-066-0916【售楼处已认证】
壹城中心十区展示中心电话:400-066-0916【售楼处已认证】
☞☞Vip贵宾置业==欢迎来电预约尊享内部折扣===匠心钜制恭迎品鉴☜☜楼盘最新介绍:备案价、折扣、学区、地铁、交通、
户型图、特价房、优缺点、得房率、优惠活动、小区图片、开盘时间、交房时间、周边配套、最新详情等咨询。
声明:本文由入驻焦点开放平台的作者撰写,除焦点官方账号外,观点仅代表作者本人,不代表焦点立场。
