万丰海岸城檀府(万丰海岸城檀府售楼处)首页网站电话-万丰海岸城檀府营销中心电话-2025-欢迎您-楼盘详情-最新价格-户型图-容积率@售楼处中心2025.10.6
扫描到手机,新闻随时看
扫一扫,用手机看文章
更加方便分享给朋友
…万丰海岸城檀府……万丰海岸城檀府…


Part 1:购买理由:1中心+1地铁+2商业+2名校+3公园
————————————
1⃣西部中心 | 深圳西部城市中心 超500万㎡海岸大城顶流归来
2⃣顶级配套|深外双名校+ 海岸城&山姆会员店+ 11号线地铁+ 楼下三大公园
3⃣产品革新|B区新规首发进阶之作,最高约104%实际使用率!
4⃣稀缺品质 | 宝安北人居天花板,精工铸就豪宅级品质

Part 2: 看得见的大城配套
————————————
【2平方公里国际生活先进城区】
万丰区域城市更新项目总占地面积约2平方公里,由世界上最大的建筑设计公司之一的美国CRTKL公司本部进行设计。
万丰海岸城檀府为B区首发之作 围绕看得见的大城顶级配套+宝安北品质天花板+新规升级产品,打造超预期的中国四好房子深圳样板

【好商业 超预期—家楼下约20万㎡海岸城购物中心】
宝安北目前最大商业综合体近300+品牌入驻,超100家宝安北首店,享升级版后海商圈;
约20万㎡潮流生活聚场,家楼下日常吃喝玩乐购一站式搞定,好友聚会想逛就逛。

【好商业 超预期—家楼下畅享山姆生活】
山姆选址,必定中心,宝安首家山姆会员店,落子万丰海岸城,目前已正式挂牌,预计10月开业;
别人堵车也想逛的山姆,是你下楼遛弯的日常。

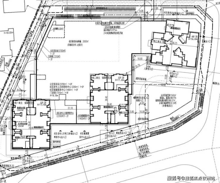
其中北边的01-01、01-02两宗为二类居住用地,即"檀府"项目的两个地块。
檀府效果图
檀府项目由分南北两个地块组成,共有7栋超高层住宅和1所幼儿园,其中:5栋为商品房住宅,2栋为保障房,规划总户数2496户,其中普通商品房1392户,保障房1104户。
北地块(01-01),建设用地面积1.89万㎡,总建筑面积17.93万㎡,计容建筑面积12.85万㎡,容积率6.78。
规划建设4栋(45-47层)超高层住宅和1所幼儿园,该地块为纯商品房,总户数为1100户,机动停车位1309个。
北地块楼栋平面图
【3栋一单元】建筑层数45层,3梯7户,标准层层高3M
【户型品鉴】89-103㎡3-4房
约89㎡3房2厅2卫
史上入驻海岸城!!最低门槛户型!!
户型亮点:
玄关“S”墙设计,满足冰箱和入户收纳柜
进深约1.75m大阳台,轻松打造私家小花园
U型厨房设计,洗切炒动线合理布局
主卧衣帽间+双面飘窗,小户型大享受
约91㎡3房2厅2卫
四开间朝公园,约11米通风采光面!
户型亮点:
进深约1.7m大阳台,轻松打造私人小花园
玄关“S”墙设计,满足冰箱和入户收纳柜
U型厨房设计,洗切炒动线合理布局
主卧南北通透设计,双飘窗,更懂收纳
约93㎡4房2厅2卫
稀缺极致4房设计,改善首置一步到位!
户型亮点:
四开间朝南,约11.7米采光面更通透
主卧双飘窗,享全明空间亦可承载更多收纳空间
货量稀缺,仅约40套,本次推售最高使用率户型
约103㎡4房2厅2卫
改善舒居,进阶四房,轻松三代同堂!
户型亮点:
玄关“S”墙设计,满足冰箱和入户收纳柜
宽约1.7m大阳台,轻松打造私人小花园
四开间约12米采光面,室内环境更通透
主卧双飘窗+进门过道,可承载更多收纳空间
【3栋二单元】楼王单位,建筑层数46层,3梯4户,豪宅级梯户比,标准层层高3.05M
约121/125㎡4房2厅2卫
约13米四开间!!永久无遮挡公园景观!!
270度主卧飘窗 !!4个卧室空间足够大 !!
户型亮点:
长约6.5m大阳台,打造私人花园,生活休闲两不误
主卧L型飘窗,奢享270度环幕公园景观
约139㎡5房2厅2卫
南向横厅大五房,南北通透,片区独有!
户型亮点:
15米大面宽,约6.8米景观阳台,无遮挡公园视野
奢配主卧进深4.5米,主卫双飘窗采光可作双台盆
全屋12个飘窗,懂收纳更懂空间使用
169平楼王单位,更做到了大6房,仅约40席!
很方正的南北通透户型,全屋11个飘窗,收纳空间相当充足。
超16米东南采光面,阳台超7米宽;主卧进深4.5米,L型飘窗可270度景观。
南地块(01-02),建设用地面积1.75万㎡,总建筑面积18.28万㎡,计容建筑面积13.51万㎡,容积率7.72。
规划建设3栋(48-53层)超高层住宅,总户数1396户,其中保障房1104户,普通商品房住宅292户,机动停车位1411个。
声明:本文由入驻焦点开放平台的作者撰写,除焦点官方账号外,观点仅代表作者本人,不代表焦点立场。
