文谷庄园售楼处(文谷庄园&凤仪园)首页网站-文谷庄园营销中心欢迎您-楼盘详情-最新价格-户型图-容积率
扫描到手机,新闻随时看
扫一扫,用手机看文章
更加方便分享给朋友
文谷庄园-联排 双拼 独栋单套面积:199-280㎡空中墅邸 拓展率高达200%
文谷庄园售楼处电话: 400-016-8586 【已认证】(营销中心)
温馨提示:来电预约看房、尊享更多现场优惠!(中介勿扰)
文谷庄园售楼中心热线: 400-016-8586 (售楼处)【VIP贵宾专线】
文谷庄园楼盘最新介绍:备案价、折扣、学区、地铁、交通、户型图、特价房、优缺点、得房率、优惠活动、小区图片、开盘时间、交房时间、周边配套、最新详情等咨询。
深圳凤仪园位于深圳市龙岗区布吉,银湖山郊野公园南坑水库路,银湖山郊野公园位于罗湖区、福田区、龙岗区、龙华区四个行政区域交汇处的景点,东起清平快速干道,西达梅观高速公路,南起泥岗路,北至梅林关口南坪快速干道北侧,交通便利。
基本情况‼
产品类型:联排 双拼 独栋
🏡单套面积:199.07㎡——280㎡。
🏛赠送面积:375㎡~700㎡
价格区间:500万~1000万元/栋
🏘付款方式:一次性;
分期付款:首付5成,一年免息。
物业费:8元/㎡
水费:4.38元/吨
🏛电费:1.06元/度
🕌燃气:市政标准
🕍产权性质:大红本,40大栋共120套别墅为一个房产证
土地年限:50年不动产权,1998年—2048年
交易方式:共同出资合作建房协议。
别墅总套数200套+
全自然美景山林别墅
安静+舒适+高赠送+现房
现代建筑与大自然的完美结合
通勤罗湖区福田区零距离
通勤20分钟直达南山区
零距离罗湖区+福田口岸
距离深圳市民中心11公里
01、交通配套
长龙地口1.7km,下水径地铁口1.9km,德兴地铁口2km,布吉地铁口2.3km,上水径地铁口2.4km,文博宫公交站300米,莲花山庄公交站825米。
02、商业配套
凯旋荟购物中心,景华汇购物中心,布吉万象汇,天虹商场,8号仓,万河丰美食城,信达美食广场,布吉老街。
03、教育配套
龙岗区东方幼儿园,凤凰第一幼儿园,德福花园幼儿园,深圳市东升学校,布吉中学,百合外国语学校,启元学校,深圳市华龙学校,倚翠实验学校,科学高中五和学校,龙领学校,龙领初级中学。
04、医疗配套
龙岗区第二人民医院,深圳中海医院,翠湖社区建康服务中心,下水径社区建康服务中心,百姓大药房,瑞草堂大药房,康之源大药房,南北药行。
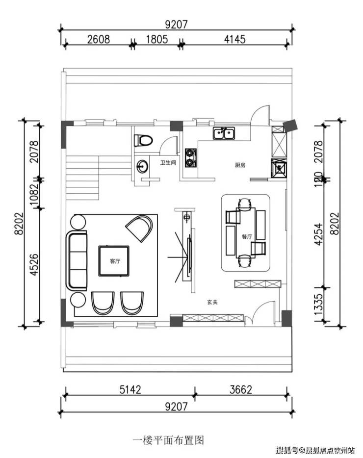
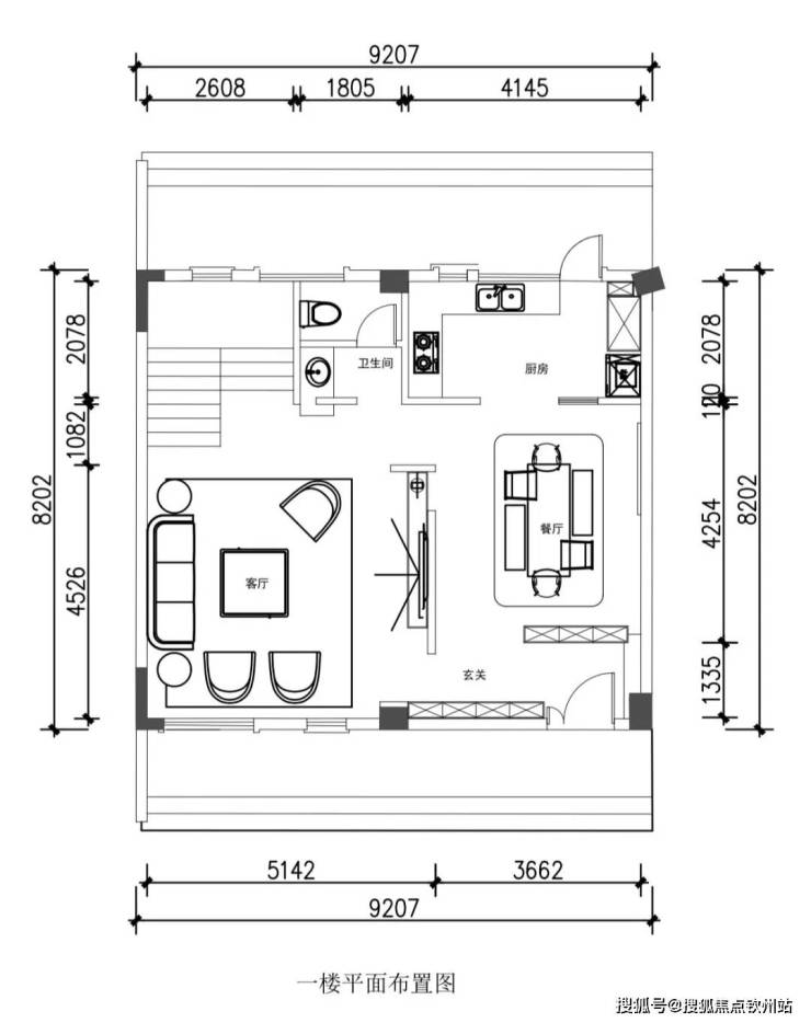
平面布置图:
楼顶花园效果图(参考):
后花园效果图(参考):
————【文谷庄园】————
开发商售楼处热线:400-016-8586 【营销中心】
本文内容为广告推广,涉及房价或现有房源可能出现变更,请致电详询并以售楼部为准
免责声明:本文如无意中侵犯了某方的知识产权告知即删,部分内容图片可能来源于网络,无法核实其真实出处,如涉及侵权请联系本网站删除!!!
声明:本文由入驻焦点开放平台的作者撰写,除焦点官方账号外,观点仅代表作者本人,不代表焦点立场。
