绿景白石洲首页网站-绿景白石洲售楼处欢迎您|楼盘详情/样板间/价格/户型/容积率/小区环境/售楼处地址@营销中心24小时热线
扫描到手机,新闻随时看
扫一扫,用手机看文章
更加方便分享给朋友
——【项目基础信息】——
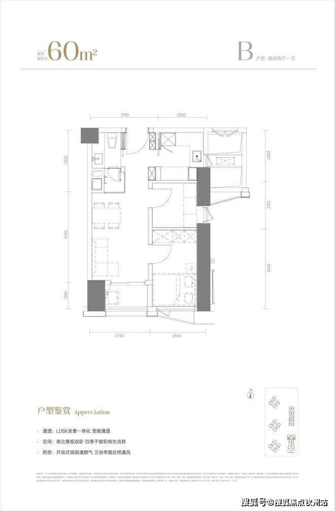
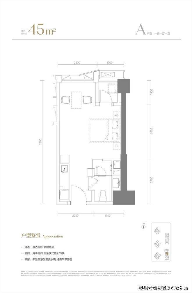
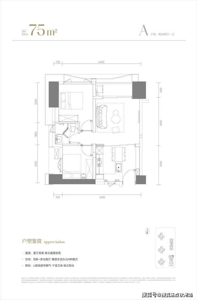
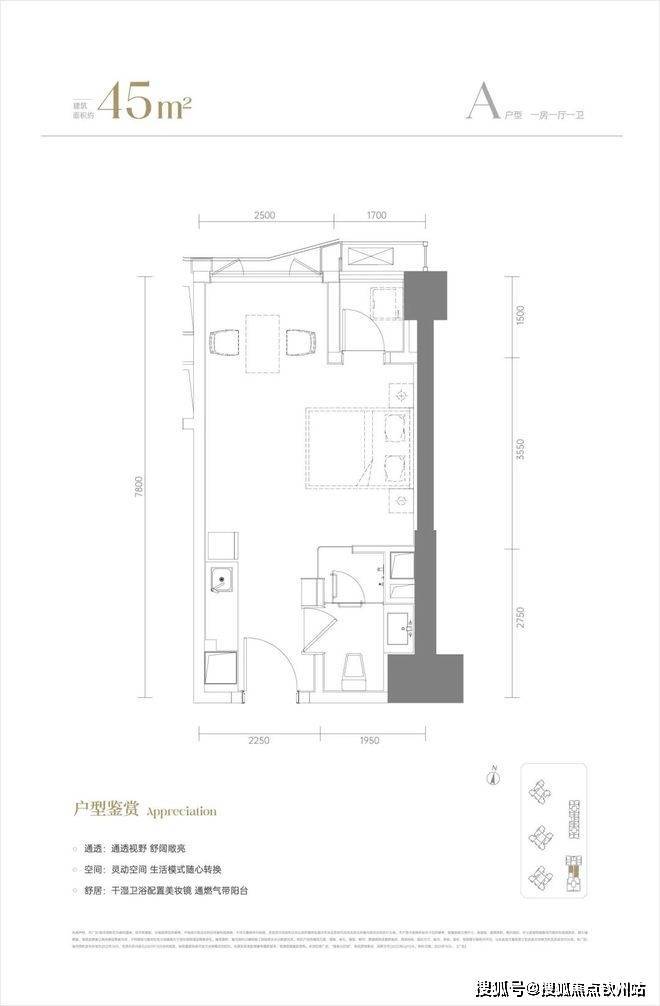
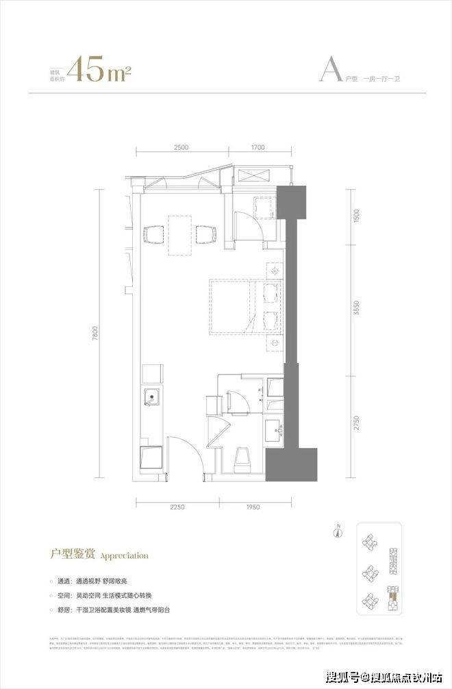
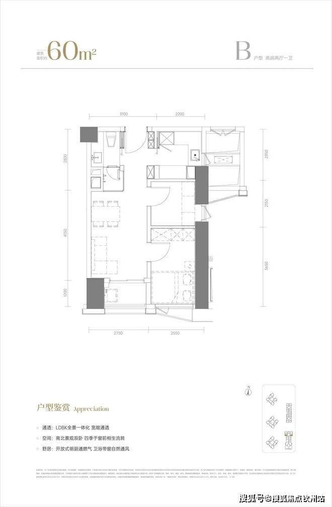
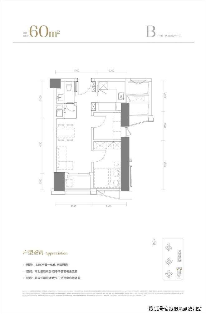
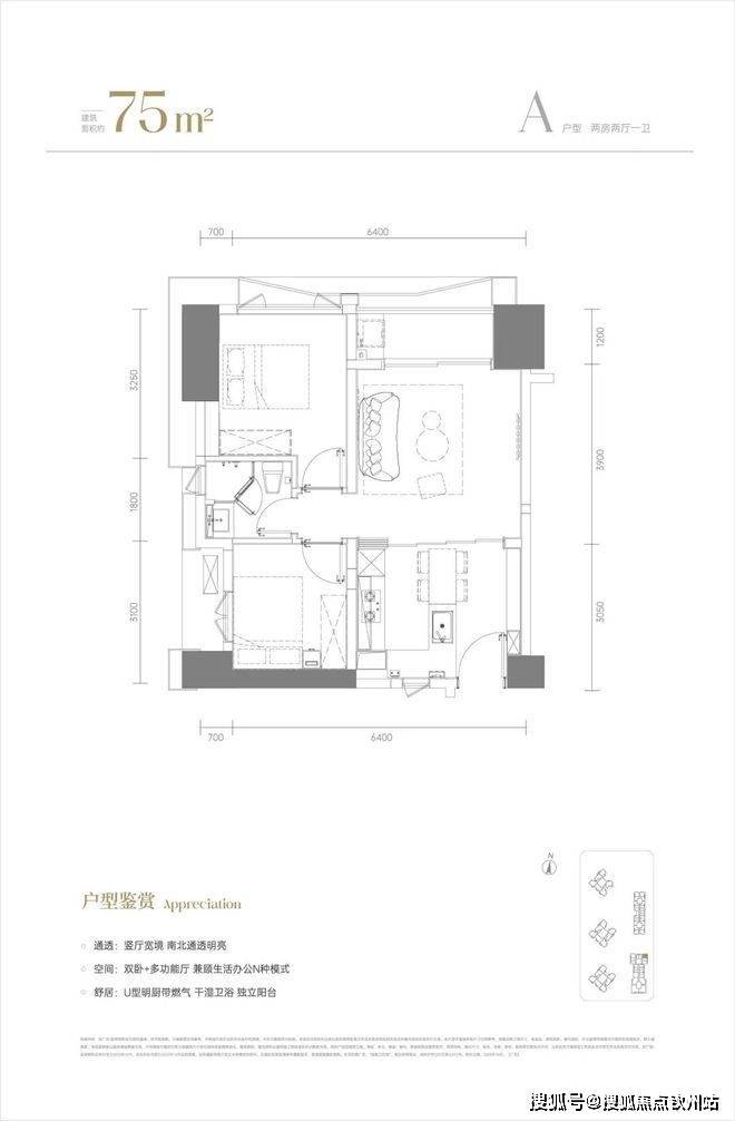
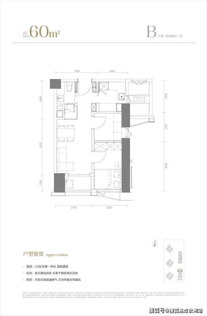
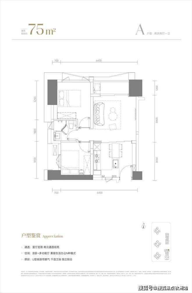
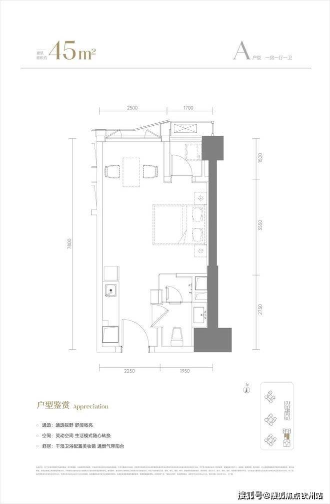
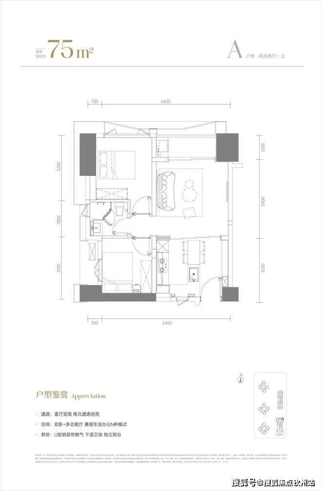
产品信息:约45-180㎡核心臻装真公寓
产权年限:70年
阳台:户户带阳台
水电:民水民电
梯户比:南段三梯四户,中段/北段 三梯八户
物业公司:深圳市绿景物业管理有限公司
物业管理费:8.8元/㎡·月
【核芯地标】——深圳湾CBD
区域价值
绿景白石洲位位于深圳 gdp 首区南山区的核心地段,深南大道横轴和大沙河科创走廊纵轴交汇的超级十字轴心,链接四大总部基地,聚合城市发展能量,为未来总部基地规划的精英技术人才打造高端生活配套区,代言深圳价值高度。
2035规划中深圳中央公园 高阶峰层资产
深圳市南山区国土空间分区规(2021-2035年)(审批中)中提出深圳唯一的"中央公园",以深圳湾 Cbd +中央公园构筑深圳核芯引擎,集聚全球总部企业、高端居住圈层和高阶完善配套,一座中央公园代表深圳未来的价值选择,看见未来全球高级别城区风范。
交通配套
一期绿景璟庭离1号线白石洲站约800米左右,离2号线的世界之窗站约1.5公里;此外还有29号线白石洲北(2023年已经开始建了,预计28年通车)就在一期璟庭楼下;29号线自南向北连接南山红树湾到光明科学城,未来三站即可到达深圳最大高铁站西丽高铁站(在建中)。
自驾出行也很方便,连接深南大道、北环大道、沙河东路等城市干道,而且都耗资做了地下层通道,可以直通项目地下停车场,能避免部分拥堵。
商业配套
自带超40万m²城市旗舰级商圈,涵盖国际购物中心、立体生态街区、地下步行街、高端社区 Mall 等全业态、全场景,一条1.2公里中央绿轴串联各业态空间,形成集购物、旅游、文娱为一体的城市新潮打卡地。
教育配套
白石洲1公里范围内,聚集了5所初中,7所小学。项目所处片区已纳入南山外国语集团教学,现在周边有沙河小学,南山第二实验学校,且项目自身带4所幼儿园共57班,3所九年一贯制学校共90班,学校都会在一期建成时共同交付。
医疗配套
楼盘3公里范围覆盖香港大学深圳医院、华侨城医院、沙河医院等康体医疗资源,其中一级甲等公立医院沙河医院距离项目仅为百米之内,未来本项目业主可以近享一站式高品质健康诊疗服务。
生态配套
约3.4平方公里中央公园、约24万m2燕晗山郊野公园、约68.5万m2华侨城国家湿地公园、深圳湾超总十字生境、绿景白石洲约1.2公里中央绿轴,约15km滨海长廊,与华侨城三大主题公园,共同组成深圳超级公园带,每一次呼吸与远眺,都有来自国家级生态保护区的气息
声明:本文由入驻焦点开放平台的作者撰写,除焦点官方账号外,观点仅代表作者本人,不代表焦点立场。
