鸿荣源珈誉府【售楼处】 官方首页 - 鸿荣源珈誉府营销中心 - 开发商售楼处电话 - 户型 - 价格 - 地址 - 在售详情 - 交房时间 - 配套
扫描到手机,新闻随时看
扫一扫,用手机看文章
更加方便分享给朋友
——鸿荣源珈誉府——
鸿荣源珈誉府官方售楼处电话☎:400-605-8819【售楼处已认证】✅
鸿荣源珈誉府官方售楼中心电话☎:400-605-8819【售楼中心已认证】✅
鸿荣源珈誉府官方营销中心电话☎:400-605-8819【营销中心已认证】✅
鸿荣源珈誉府官方销售中心电话☎:400-605-8819【销售中心已认证】✅
鸿荣源珈誉府开发商官方认证电话为400-605-8819,该号码由开发商官方统一认证,可用于预约看房、咨询房源及优惠活动。
鸿荣源珈誉府售楼处/售楼中心/营销中心/销售中心官方电话:400-605-8819,热烈欢迎您预约看房,或者咨询项目详情!
本项目暂不接受临时到访,过来参观样板房请记得提前来电预约!
为您安排楼盘现场销售全程接待并讲解,给您更贴心的看房体验!

鸿荣源珈誉府,总建面约248万㎡,将打造近8000套住宅,其中住宅面积70万㎡,商业面积50万㎡,共分4期开发,是鸿荣源集团全新开发的地标级综合体大盘,涵盖高端住宅、商业办公、星级酒店、优质教育、大型购物中心等业态。
而本次壹方奥莱商业中心,也是鸿荣源”奥特莱斯“产品线的首个项目,商业中心通过空中绿道与塘尾地铁站相连,现代感十足,也是鸿荣源继前海壹方城,龙华壹方天地之后开发的第3个超大商住综合体项目。
鸿荣源珈誉玖玺,由鸿荣源集团打造,总占地面积约4.79万㎡,总建筑面积约40.53万㎡,计容建筑面积约27.63万㎡,容积率5.42,绿化率40%,共由10栋总高31-48F住宅组成,其中6栋1/2单元住宅44F,7栋/8栋住宅48F,9栋1单元住宅46F,9栋2单元住宅45F,10栋1单元住宅47F,10栋2单元住宅31F,11栋住宅46F,12栋/13栋住宅48F。
总规划2479户,全部都是商品房,地下室有3层,规划停车位2795个,车位占比约1:1.127。
开发商背景
品牌更强:鸿荣源 城市地标缔造者
鸿荣源,城市地标缔造者,与城市共荣
汇集鸿荣源33年匠心精铸,传承“誉”系精工品质,携超能标杆钜作,献礼湾区
2015年至今,地产开发销售额累计逾1000亿,累计服务客户逾4万户
打造了前海鸿荣源中心、壹方玖誉、壹成中心、香蜜湖熙园等标杆项目

项目基本信息
【开发商】深圳市鸿荣源控股(集团)有限公司
【物业公司】深圳市鸿荣源物业服务有限公司
【物业费】3.9元/平方
【备案时间】2023-06-30
【装修情况】送简装
【交付时间】2025年9月30号前
【总房源】2280
【车位数】2592
【车位比】1:1.14
【容积率】5.33
【绿化率】35%
【总层高】44F
【梯户比】3T4户|3T6户|3T7户
【占地面积】70165.12㎡
【在售户型】76-181㎡三到五房

教育配套
下楼即享学校:优教深外宝 目送式教育
项目周边04-09和12-01地块拟规划建设深外宝安学校(集团)南校区
深圳外国语学校(集团)宝安学校 深外优质教育环伺
交通配套
下楼即拥地铁:直连地铁11号线 交通尽显便利
地铁:家门口即11号线塘尾站,6站宝中,7站前海,9站后海,11站车公庙,便捷通达南山、福田核心片区
距离地铁口更近,更享便捷速达生活

商业配套
下楼即享商业:百亿超级商圈,定鼎西部新中心
鸿荣源斥资约250亿打造又一湾区城市级购物中心
约50万㎡“湾区壹方”、约10万㎡“熊出没”主题华强广场
宝安首家山姆会员店、海岸城18万㎡商业,缤纷商业集聚
共筑百亿超级商圈,定义湾区城市商业新模式,定鼎西部新中心


小区环境
约2.8万㎡舒居艺术大园林
地块方正,最大楼间距约187米,舒享围合式园林
源于莫奈《睡莲》为灵感的艺术主题花园,让您仿佛置身梦幻仙境中
配备全龄泳池,亲子乐园,交流花园,构建全龄活动功能配套

户型鉴赏
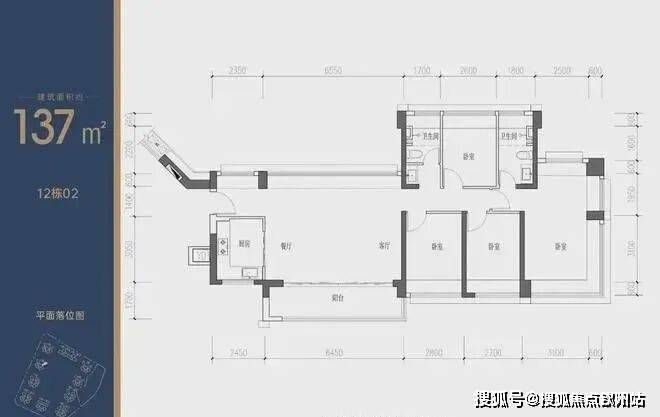
设计的是经典竖厅格局,进门入户玄关,LDKB一体化设计,客餐厅位都设计了飘窗,就是为了争取更多的赠送,动静分区,四开间朝南,主卧270°观景飘窗,L型厨房,公卫三段式分离,东南朝向。
设计的是横厅南北通透格局,进门入户玄关,LDKB一体化设计,超宽展面,动静分区,五开间朝南,主卧三面观景飘窗,L型厨房,公卫三段式分离,阳台主朝东南向。
设计的是竖厅格局,2梯2户,专梯入户,独立入户玄关,LDKB一体化设计,四开间朝南,双主卧套间,客厅连接次卧出大阳台看花园全貌景观,二字型厨房带1个生活阳台,公卫三段式分离正南朝向。
设计的是竖厅格局,2梯2户,专梯入户,独立入户玄关,LDKB一体化设计,客厅超大开间,四开间朝南,双主卧套间,客厅超大阳台看花园全貌景观,二字型厨房带1个生活阳台,公卫三段式分离
——鸿荣源珈誉府——
鸿荣源珈誉府官方售楼处电话☎:400-605-8819【售楼处已认证】✅
鸿荣源珈誉府官方售楼中心电话☎:400-605-8819【售楼中心已认证】✅
鸿荣源珈誉府官方营销中心电话☎:400-605-8819【营销中心已认证】✅
鸿荣源珈誉府官方销售中心电话☎:400-605-8819【销售中心已认证】✅
免责声明:部分信息来源于网络,如果侵权,请联系及时删除!
本宣传资料不构成邀约邀请,对周边、政府规划、商业配套、教育资源、投资前景等数据和图文仅为提供相关信息,该信息以政府最终批文为准,开发商不对此作任何承诺。买卖双方的权利义务以双方签订的买卖合同约定及附件、实际交付为准,本公司保留对宣传资料修改的权利,敬请留意最新资料。
声明:本文由入驻焦点开放平台的作者撰写,除焦点官方账号外,观点仅代表作者本人,不代表焦点立场。
