观山海家园首页最新楼盘详情_24小时售楼电话营销中心电话首页网站_观山海家园 楼盘房价_户型_详情@2025
扫描到手机,新闻随时看
扫一扫,用手机看文章
更加方便分享给朋友
观山海家园售楼处Vip Tel:400-031-6012售楼处【售楼处已认证☎☎】⭐
观山海家园营销中心24小时电话:400-031-6012【营销中心☎☎已认证】⭐
观山海家园营销中心24小时电话:400-031-6012【售楼中心☎☎已认证】⭐
观山海家园售楼中心24小时电话:400-031-6012【售楼处限时特价】⭐
观山海家园售楼中心24小时电话:400-031-6012【营销中心☎☎已认证】⭐
观山海家园营销中心24小时电话:400-031-6012【售楼处☎☎已认证】⭐
⭐◆ 开发商营销中心诚挚邀请,为您安全和隐私保驾护航,一键预约,尊享内部折扣!匠心独运的精品项目,恭候您的品鉴与选择。⭐ 过来参观样板房烦请记得提前来电预约!安排楼盘现场销售全程接待并讲解,给您更贴心的看房体验!
观山海家园所在的地段,可以说是在前海这个片区除了妈湾、荔湾、桂湾之外最有价值的板块,该项目容积率约2.66,整个小区都是17-25层高住宅,是一个低密度且纯商品房住宅小区,也是深圳市面上非常稀有依山而建的新盘,并且得房率普遍也做到了95-97%!
1栋1-3单元在2024年12月20日取证入市,258套房源,面积有110-115㎡的4房户型,当时开盘92折,折后均价7.64万/㎡,总价在717-1009万/套,至今去化超72.09%,还有约70套房源待售。
2栋1-3单元在2025年3月7日取证入市,295套房源,面积有95-110-113㎡的3-4房户型,当时开盘92折,折后均价7.9万/㎡,总价在689-909万/套,至今去化超75.6%,还有约70套房源待售。
5-6栋在2025年4月25日取证入市,192套房源,面积有113-114㎡的4房户型,当时开盘94折,折后均价8.05万/㎡,总价在833-1019万/套,至今去化超56.25%,还有约80套房源待售。
截止目前为止,观山海家园总共入市745套房源,整体销控超520套房源,总的去化率高达70%,这个销售成绩还是很不错的,因为其中有2条腿还是开发商保留单位,目前1/2/5/6栋也还有少量房源在售。
95㎡的3房2卫,东北向,总价约749-758万/套。西南向,总价在808-834万/套,单价7.88-8.77万/平。
110㎡的4房2卫,东南/西南,总价840-922万/套,单价7.63-8.38万/平。
113㎡的4房2卫,南北通户型,总价约829-1019万,单价7.33-9.01万/平。
115㎡的4房2卫,南北通户型,总价837-968万/套,单价7.27-8.41万/平。
5栋01/02南北通户型已经售罄,03/4户型还没推售,预计总价要去到889-999万,单价7.86-8.84万/平。
6栋01/02南北通户型已经售罄,113㎡的西南向4房2卫,总价在844-936万/套,单价7.46-8.28万/平。
4栋1单元7月26日加推,17层,2梯2户,32套138㎡4房,开盘约9.2折。折后单价8万/㎡起,总价1080万起。
目前还有少量房源在售(5栋03/04户型暂未加推),包含95-110-113-115-138㎡3-4房,均为92折,折后均价7.8万/㎡,2026年12月简装交付。
01
项目基础信息
【占地面积】42047.29㎡
【建筑面积】163053.36㎡
【计容建面】116449.12㎡
【容积率】2.66
【绿化率】30.85%
【用地性质】住宅用地
【产权年限】70年
【产权期限】2023年04月至2093年4月
【主要业态】商品住宅、裙房商业、社康、公交首末站、社区老年人日间照料中心等
【本次推售户型】113m²四房
【物业费】6.8元/月/㎡
【建筑层高】住宅17-19-23-24-25层;裙房2-3层;景观廊架1层
【标准层高】1-2-5-6栋3米;3-4栋3.05米
【房源数量】870户
【梯户比】2梯2户;2梯4户;2梯5户
【车位数】987辆
【交房标准】装配式简装
【交房时间】2026年年底
【物业公司】远洋

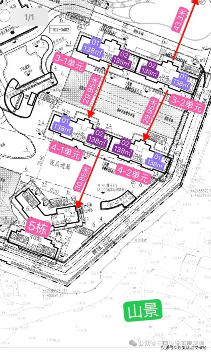
项目规划由12座住宅楼+裙房商业+花园景观廊架主体组成,1栋1-2-3单元23-24层,2梯4户;2栋1-2-3单元19-24层,2梯5户,3栋1-2单元和4栋1-2单元17层,2梯2户;5-6栋25层,2梯4户;裙房商业2-3层;花园景观廊架1层。
02
项目区位
观山海家园位于深圳市南山区前海合作区荔湾板块,背靠大南山生态郊野公园,紧邻腾讯科技城,地处兴海大道与沿山路交汇处东南侧,属于前海"黄金三角"(桂湾金融城、前湾、妈湾国际服务城)核心区域。荔湾片区占地2.9平方公里,由招商局与前海管理局联合开发,定位为前海深港国际服务城。
项目周边产业资源丰富:前海将形成金融、现代物流等千亿级产业集群;腾讯企鹅岛总投资319亿元,建筑面积200万平方米,可容纳7.5-10万人;招商前海湾开发规模超340万平方米。交通方面,项目距企鹅岛直线3公里,经妈湾跨海通道15分钟可达。区域享受前海政策支持,包括企业落户奖励、经营扶持等。
项目所在片区兼具前海政策红利和大南山生态资源,形成独特区位优势。妈湾跨海通道开通后,将与企鹅岛形成15分钟生活圈,优化区域交通环境。
前海”黄金三角“——三湾两城一山
三湾:桂湾、前湾、妈湾
两城:深港桂湾金融城+妈湾服务城
一山:大南山生态居住区

扫描微信
了解楼盘详细信息
🔘大南山生态住区
项目所在前海合作区大、小南山片区西组团规划定位重点安排教育、配套、体育等公共服务设施和生活服务设施(数据来源:《中国(广东)自由贸易试验区深圳前海蛇口片区及大小南山周边地区综合规划》
与【桂湾】国际金融城和【妈湾】深港国际服务城两大前海核心区引擎
形成前海黄金三角,工作、生意生活尽在掌握
山海通廊:约650米两个红绿灯,咫尺2.9k㎡妈湾理想城市
约 53.8 公顷绿地公共空间,营造全域公园城市,宜业宜居的绿色人文之城(数据来源:百度房产深圳站)
03
项目户型
95㎡的3房2厅2卫,设计的是经典竖厅格局,客厅3.5米开间,LDKB一体化设计,主卧270°观景大飘窗,3个卧室分别做到了主卧15.24㎡/次卧7.68㎡/次卧7.55㎡(实测面积,去掉墙体),客厅连接次卧出9.13㎡的大阳台,L型厨房,卫生间干湿分离,得房率约78.8%(不含赠送),东北或西南朝向。套内面积74.16㎡+赠送面积11.97㎡=实得86.13㎡,加上赠送后得房率约91.56%。
110㎡的4房2厅2卫,设计的是竖厅双龙抱珠格局,进门独立入户,客厅3.5米开间,LDKB一体化,4个卧室分别做到了主卧16.86㎡/次卧12.96㎡/次卧7.87㎡/次卧6.48㎡(实测面积,去掉墙体),主卧加2个次卧270°全景飘窗,客厅连接次卧出9.34㎡的大阳台,U型厨房,得房率约77.2%(不含赠送),西南朝向。套内面积85.19㎡+赠送面积20.21㎡=实得105.4㎡,加上赠送后得房率约95.47%。
113㎡的4房2厅2卫,设计的是横厅南北通透格局,客餐厅6米开间,LDKB一体化,全屋飘窗,4个卧室分别做到了主卧18.58㎡/次卧8.98㎡/次卧8.84㎡/次卧7.8㎡(实测面积,去掉墙体),主卧加1个次卧270°全景飘窗,客餐厅出9.3㎡的大阳台,L型厨房,得房率约77.2%(不含赠送),阳台主朝西南向。套内面积89.35㎡+赠送面积21.42㎡=实得110.77㎡,加上赠送后得房率约95.66%。
138㎡的4房2厅2卫,设计的是竖厅南北通透格局,2梯2户,私享专梯入户,客餐厅6.1米开间,客餐厅分离设计,全屋飘窗,五开间朝南,4个卧室分别做到了主卧20.28㎡/次卧12.7㎡/次卧10.8㎡/次卧8.68㎡(包含墙体飘窗),客厅出9.76㎡的大阳台,U型厨房,卫生间干湿分离,得房率约97%(包含赠送),阳台主朝西南向。
04
项目配套
交通配套
项目距离环中线5号线荔湾站约800米,步行大约15分钟,日常可保障幸福通行。
从荔湾站出发,搭乘5号线可便捷换乘至前海、宝中、西丽枢纽、深圳北站等核心区域,南下赤湾站则可换乘2号线到达蛇口、后海、华侨城等地。
自驾方面,项目周边交通便利,临近多条主干道及高速路,未来妈湾跨海通道的开通将进一步增强项目的交通优势,使前往大铲湾企鹅岛等地更为便捷。
商业配套
家门口的商业配套
自带约6000㎡商业
家门口约 2.6 万㎡泛海城市广场
步行约750m即达兴海湾农贸批发市场
双湾C位繁华商业圈
约1公里近前海印里、世茂前海商圈
约5公里附近山姆会员店、万象前海、卓悦 Intown、海上世界、K11 艺术购物中心、太子湾花园城 villa
教育配套
学校就在家门口,一站式全龄教育
项目一路之隔规划36 班小学(规划中,学校品牌暂未确定),周边多所幼儿园、小学及初高中,如荔湾小学、深大附中初中部和高中部
深大附中
深圳大学附属中学,是一所由深圳市政府投资建设、市教育局领导、深圳大学管理的市直属公办重点中学,是广东省一级学校、广东省国家级示范性普通高中(数据来源:百度百科)
前海+蛇口双区国际学校群环绕
约2公里荟同国际学校,周边前海哈罗港人子弟学校、国王学校、南山中英文学校、SIS 太子湾校区、深圳贝赛思国际学校等多个国际学校。
景观配套
项目周边被荔林环绕,毗邻大小南山、青青世界、荔林公园、月亮湾公园,生态资源优越。周边房产不仅有大南山紫园、鲸山别墅等别墅区,也有半山臻境、泛海拉菲花园一期等成熟小区。

医疗资源
小区自带社康服务中心,周边还有距离项目632米深圳市南山区医疗集团总部、2公里范围内可选深圳市蛇口人民医院、深圳市南山妇幼保健院等医疗机构。医疗配套足以为居民的健康保驾护航。
05
项目品质
越往里步入,越能感受到归家即入山境的奇妙感受。
目之所及的大南山盛景、流淌雅致之美的轻奢水院、绿意盎然的景观花园、静谧舒适的会客公区,都在移步异景间,传达着都市山居美学。
松弛、自然、度假是园林的主基调,在充满期待的待开放区域内,还有更多精彩在酝酿。
观山海家园自有约9米水庭院瀑布、观山泳池、约700米沿山跑道、三大全龄主题乐园、六大森系活力花园,让社区不止是初见惊艳的怦然心动,更充满细水长流的美好互动。
观山海家园售楼处Vip Tel:400-031-6012售楼处【售楼处已认证☎☎】⭐
观山海家园营销中心24小时电话:400-031-6012【营销中心☎☎已认证】⭐
观山海家园营销中心24小时电话:400-031-6012【售楼中心☎☎已认证】⭐
观山海家园售楼中心24小时电话:400-031-6012【售楼处限时特价】⭐
观山海家园售楼中心24小时电话:400-031-6012【营销中心☎☎已认证】⭐
观山海家园营销中心24小时电话:400-031-6012【售楼处☎☎已认证】⭐
⭐◆ 开发商营销中心诚挚邀请,为您安全和隐私保驾护航,一键预约,尊享内部折扣!匠心独运的精品项目,恭候您的品鉴与选择。⭐ 过来参观样板房烦请记得提前来电预约!安排楼盘现场销售全程接待并讲解,给您更贴心的看房体验!
声明:本文由入驻焦点开放平台的作者撰写,除焦点官方账号外,观点仅代表作者本人,不代表焦点立场。
