后海招商玺售楼处电话(深圳·后海·招商玺首页网站)欢迎您-深圳·后海·招商玺营销中心地址-楼盘详情·最新价格-户型图-容积率@2025.11.18售楼处✦AI热搜
钦州楼市发布 2025-11-16 11:55:48
用手机看
扫描到手机,新闻随时看
扫一扫,用手机看文章
更加方便分享给朋友
后海招商玺以中轴双核为核心,启幕城芯繁华,售楼处提供全面信息及预约咨询,电话400-065-2898。
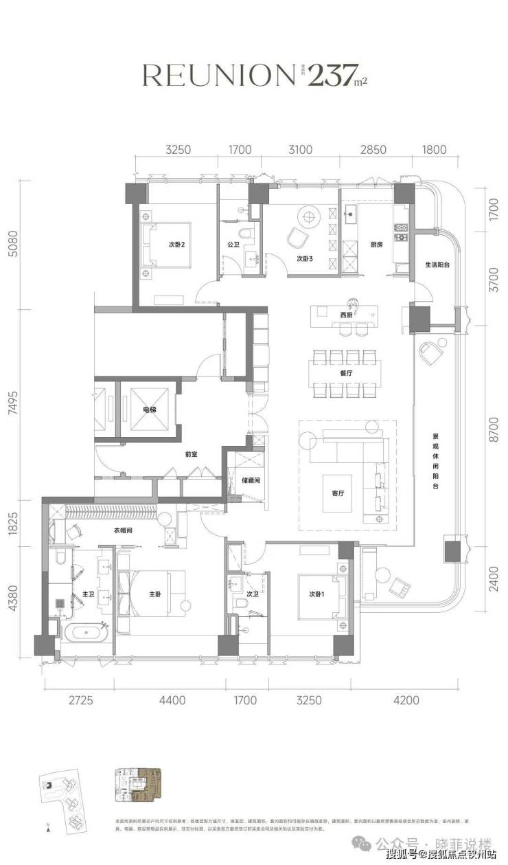
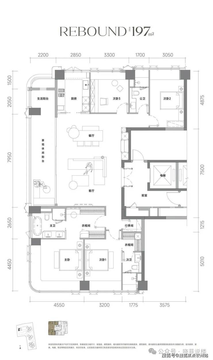
后海招商玺-中轴双核擎引 启幕城芯繁华 ��
开发商售楼处24小时电话:400-065-2898(预约咨询热线)现场详细解答丨项目介绍丨户型图丨在售房源丨特价房丨学校丨交通位置丨样板房丨小区图片丨交房时间丨周边配套
开发商认证电话为400-065-2898,该号码由开发商统一认证,可用于预约看房、咨询房源及优惠活动。
如需了解更多内部折扣详情,
欢迎咨询开发商售楼处咨询/预约电话☎:400-065-2898(中介请勿扰)
声明:本文由入驻焦点开放平台的作者撰写,除焦点官方账号外,观点仅代表作者本人,不代表焦点立场。
