翰熙典居售楼处电话-翰熙典居欢迎您-营销中心电话-楼盘详情-户型配套-容积率
扫描到手机,新闻随时看
扫一扫,用手机看文章
更加方便分享给朋友


翰熙典居位于全国第一街道——粤海街道。这里是中国的科创高地,几乎汇聚了深圳最稀缺的城市资源,驻扎着最顶尖的科技企业,涌动着最密集的创新资源,也活跃着最强劲的资本力量。
粤海街道,中国科创心脏
粤海街道被称为中国最牛街道:这里集聚了超1600家国家级高新技术企业,孕育出112家上市企业。2024年创造产值近4500亿元,以不足南山十分之一的土地面积,擎起全区47%的经济命脉!人均GDP更是早就超过166万,比全球人均GDP最高的国家卢森堡还高!
这里名企云集:腾讯、中兴、大疆、迈瑞医疗、今日头条、阿里巴巴等世界名企,都聚集于此;就连华为、比亚迪、华大基因也是从这里走出去的。
这里顶尖人才聚集:据人口普查数据,粤海街道大学学历以上的人口占比超55%,位居全市第一。
产城融合,高净值人群聚集:百家上市公司汇聚于此,形成强大经济引擎,持续吸引全球顶尖人才涌入,自然造就高净值人群聚集地。

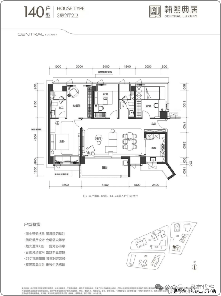
首推02地块,105-120-140㎡的3-4房,精装交付。已按新规调整户型,由原套内80%左右增加到现套内90%。按内部流传实用率将近100%!规划总建面约16万㎡,容积率9.12。规划住宅建面约8.37万㎡,商业建面约1万㎡,办公面积约1.7㎡。
规划为4栋超高层塔楼,2栋一单元住宅174米53层,2栋二单元办公130米27层,2栋三单元住宅168米51层,2栋4单元住宅175米53层。
规划872套,其中回迁544套+可售328套,停车位747个。
【交通】
轨道交通-双地铁枢纽地铁上盖TOD:9/15号线地铁上盖TOD,无缝连接9/15号线深大南站,9号线2站高新园、3站超总湾、4站达大前海区域,“深圳黄金内环”15号线(在建中)预计2028年开通。
道路交通——四横三纵立体路网,四横有滨海大道、深南大道、北环大道、学府路;三纵有南海大道、后海大道、白石路出行,多主干道快速分流,畅达全城。项目直线距离蛇口码头约6.7公里,直线距离宝安国际机场也仅约15公里。
城际铁路——近距离通达双城际线。深惠城际(在建中,预计2026年通车,项目3km至怡海/鲤鱼门站)、穗莞深城际线(在建中,预计2025年通车,项目3.8km至前海站/超级总部站)。
(*以上所有交通规划最终通车时间以政府最新工程进度落实为准)

【学校】
项目内规划1所3200㎡12班制幼儿园
项目西侧红线外规划有1所30班小学
处南二外学府一小和南二外学府中学学区范围内,直线距离500米范围内有省一级学校深圳南山中加学校(学区范围如有变动,以南山区教育局最新颁布政策为准)
紧邻深圳大学粤海校区、沧海校区


在商业配套方面, 项目自带约5000㎡的商业规划。2公里范围内有海岸城、茂业百货、海雅百货等大型商超,日常购物娱乐皆能满足。
文体休闲方面, 3公里范围内汇聚文心公园、南山书城,荷兰花卉小镇、南头古城、荔香公园、深圳人才公园等,各种休闲娱乐设施一应俱全。

105㎡ ,110套,均9.4万,总868-1200万
120㎡ ,181套,均10万,总1008-1378万
140㎡ ,43套,均10.8万,总1400-1706万



声明:本文由入驻焦点开放平台的作者撰写,除焦点官方账号外,观点仅代表作者本人,不代表焦点立场。
