珠海正方南湾首府最新价格,正方南湾首府在售户型朝向及楼盘详情
扫描到手机,新闻随时看
扫一扫,用手机看文章
更加方便分享给朋友
正方南湾首府❄ஐ❄(珠海正方南湾)
正方南湾首府❄ஐ❄售楼处电话:400 066 0916【☎☎已认证】
❄ஐ❄正方南湾首府❄ஐ❄售楼处24小时电话:400 066 0916【☎☎已认证】
楼盘项目全面介绍:含开盘消息、交房时间、楼盘详情、房价、户型、详情、得房率、售楼处地址、首页网站、销售中心、楼盘地址、户型图、交通、备案价、项目配套、营销中心、开发商、周边配套等详情咨询
开发商现场销售专业介绍楼盘 预约看房尊享优惠内部折扣
項目簡單資料
産品類別:①疊墅;②大平層143-185㎡;③高層76-99㎡
項目戶數:2,126戶(高層2,066戶;疊墅60戶)
産權年限:住宅70年
物業服務:正方物業
正方·南湾首府
位于南屏科技生态城,南屏水库北侧,珠海大道南侧。项目占地面积约8.25万㎡,总建设规模达到约32.22万㎡。用地性质涵盖高层住宅、别墅、幼托、邻里中心等。

项目还配建的5000㎡邻里中心,涵盖市民艺术中心、卫生服务中心、家庭服务中心、养老服务中心等配套
项目位置 珠海·香洲·南湾·珠海大道1123号·正方南湾首府
项目示范区设计,从岭南本地传统文化中挖掘精髓和质感,提取、精炼岭南传统建筑元素中的柱廊、重檐、花窗等意象,用简约现代的设计手法,塑造大气简洁、精致细腻、雅致轻逸的现代新中式建筑。
上图:正方南湾首府示范区实景图
一半湖山,一半城;善择依山傍水·藏风善水之地
珠海南湾城心,最珍贵的湖岸线
▼城市片区鸟瞰图
湖山怀里,城市心上
▼城市片区鸟瞰图
▼正方南湾首府项目总平面图
▼正方南湾首府项目鸟瞰图
▼揽湖大平层效果图
▼涵山叠墅效果图
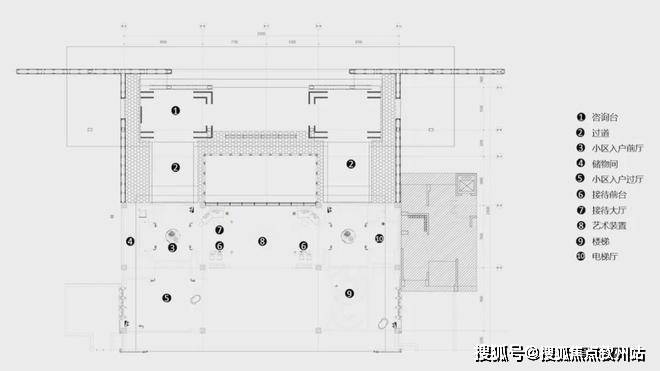
▼楼层平面图
“空山新雨后,天气晚来秋”。依山畔水之地,自古都是文人墨客笔中的向往之地。
山水乐居是刻在人们心中,对生活的憧憬。
▼正方南湾首府示范区实景图
传承岭南文化,演绎现代中式
提取岭南传统建筑元素,将传统手法用现代语言演绎,
诠释东方韵味。
示范区在正方南湾首府整个社区的中心位置,形成入口空间的昭示性。充分利用地势之差,通过酒店式落客前厅、行政酒廊、沙盘洽谈区、泳池会所、后场景观几个部分,形成错落有致、形式丰富的空间结构,充分强调了社区的归家礼序。
▼正方南湾首府示范区总平面图
▼空间结构
▼空间结构
形体上重檐的屋顶勾勒主体建筑的上部轮廓,用柱廊强调建筑立面纵向的韵律感,再辅以精细密集的花窗,营造了简约大气,气势恢宏,又不失精致的现代新中式建筑。
▼正方南湾首府示范区实景图
基于在地性的深入探讨,从岭南传统建筑元素中提取柱廊、重檐、花窗等意象,将传统手法用现代设计语言演绎,既是对岭南文化的承袭,也是对现代生活礼序的再创,诠释出了新时代的东方韵味。
▼正方南湾首府示范区实景图
色调以古铜色为主,用古铜色铝材穿插大面积落地玻璃,突出品质感,线条简约大气,打造复古的尊贵空间,实现由城市生活到社区归家的空间和情绪转换。
▼正方南湾首府示范区实景图
庭院参照传统建筑院落,按照两轴三庭、五进六园的形式排布。用山石松韵、平湖秋月、玲珑雅苑三庭,山水明堂、林泉映月等六个园林小景。
▼正方南湾首府示范区实景图
借用“四水归堂”的理念,引入方方正正的大尺度水景,寄寓“四方之财如天上之水,源源流入院墙府内”的美好愿望,层层递进,撩拨无尽的诗意,再现岭南风雅。
▼正方南湾首府示范区实景图
▼方案设计平面图
▼立面技术图纸
▼户型一:高层平层85m2三房两厅两卫
▼户型二:高层平层143m2四房两厅两卫
▼户型三:高层平层185m2四房两厅三卫
▼户型四:叠墅下叠180m2四房两厅三卫
❄ஐ❄珠海正方南湾首府❄ஐ❄售楼处电话:400 066 0916【☎☎已认证】
❄ஐ❄正方南湾首府❄ஐ❄售楼处24小时电话:400 066 0916【☎☎已认证】
免责声明:本文部分内容来自网络,如无意中侵犯了某方的知识产权,告之即删。
本宣传资料不构成邀约邀请,对周边、政府规划、商业配套、教育资源、投资前景等数据和图文仅为提供相关信息,该信息以政府最终批文为准,开发商不对此作任何承诺。买卖双方的权利义务以双方签订的买卖合同约定及附件、实际交付为准,本公司保留对宣传资料修改的权利,敬请留意最新资料。联系号码:400 066 0916
声明:本文由入驻焦点开放平台的作者撰写,除焦点官方账号外,观点仅代表作者本人,不代表焦点立场。
