聚焦新房! 玖玖颂阁【深圳】售楼处◆最新房价 | 楼盘详情 | 户型图 | 配套 | 开发商售楼处电话
扫描到手机,新闻随时看
扫一扫,用手机看文章
更加方便分享给朋友
✅玖玖颂阁售楼处电话:400-605-8819【已认证】
✅玖玖颂阁营销中心电话:400-605-8819【已认证】
✅玖玖颂阁开发商直售专线:400-605-8819【已认证】
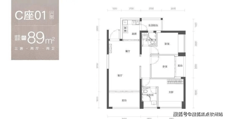
在售户型图丨项目介绍丨最新房源丨周边配套丨详细解答〢
◆开发商营销中心诚挚邀请,一键预约,尊享内部折扣!匠心独运的精品项目,恭候您的品鉴与选择。
项目最新介绍:房价、折扣、户型图、特价房源、得房率、优惠活动、开盘时间、交房时间、周边配套、最新详情咨询。


基础信息
基础资料
🔻开发商:深圳市俊弘星实业有限公司
🔻占地面积:1.4万㎡
🔻总建面:10.41万㎡
🔻产权:70年(18-88年)
🔻总户数:667户
🔻面积:89㎡3房1卫。89㎡3房2卫,128-133㎡4房2卫,
🔻车位比:752个1:1.12
🔻梯户比:2梯4户/2梯5户
🔻价格:8.2-9万/㎡
🔻交楼标准:精装
🔻物业公司:中熙物业
🔻物业管理费:6元/㎡
🔻容积率:5.04
🔻绿化:40%
🔻交楼时间:现楼
🔻建筑类型:住宅
🔻层高:3米
🔻使用率:77-79%
🔻楼层高:A座31层,B座31层,C座31层,D座13层
🔻栋数:4栋
🔻水电:民水民电


【小区园林】:
从入口处拾级而上,就是层叠的水景,有一个好听的名字—树心池,有点像一个浅浅的许愿池,未来住进来后,孩子们应该会非常喜欢在这个区域玩耍,整个园林以探索和童趣为主题,像一个巨大的游乐空间,大草地上还摆放了几个帐篷,休闲感特别足,这也是孩子们喜欢的。

项目区域板块:
本身地处宝安老城区新安板块,周边配套全部兑现完善了,刚需或是改善所需要的配套全部都可以所见即所得,不用等规划 但也因为发展的早,所以整体的城市面貌也会显得比较老,老小区也居多

【交通配套】:
项目临近12号线上川站,步行距离大概10分钟左右,走路过去不算太远,而且以后还有新开的15号线环中线大概700m左右临近了宝安大道,平时出门开车或者坐地铁去前海宝中都很方便,通勤这点不需要太头疼





✅玖玖颂阁售楼处电话:400-605-8819【已认证】
✅玖玖颂阁营销中心电话:400-605-8819【已认证】
✅玖玖颂阁开发商直售专线:400-605-8819【已认证】
本文内容为广告推广,涉及房价或现有房源可能出现变更,请致电详询并以售楼部为准
免责声明:本文如无意中侵犯了某方的知识产权告知即删,部分内容图片可能来源于网络,无法核实其真实出处,如涉及侵权请联系本网站删除!!
声明:本文由入驻焦点开放平台的作者撰写,除焦点官方账号外,观点仅代表作者本人,不代表焦点立场。
