。◕‿◕。2025玖玖颂阁欢迎您-玖玖颂阁售楼处电话-玖玖颂阁最新房价|户型|价格@2025.10.1玖玖颂阁营销中心
扫描到手机,新闻随时看
扫一扫,用手机看文章
更加方便分享给朋友
【玖玖颂阁】开发商着急回款,单价6.7万以上就卖,数量有限,先来先得!89平3房3卫,总价598万起!双地铁,南北通,三阳台,前海唯一在售,板式精装现房
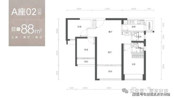
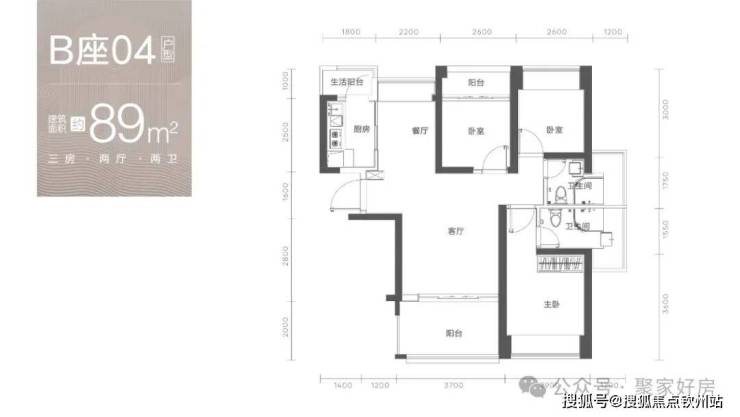
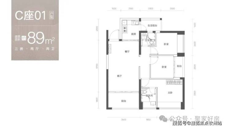
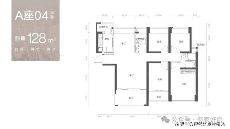
玖玖颂阁项目位于深圳宝安区,占位前海黄金圈内环,享受宝中醇熟配套。项目在售建面89-133㎡三至四房,全南向板楼设计,通风采光佳;建面89㎡三房两厅两卫,人生第一套房不必迁就;建面128-133㎡四房两厅两卫,阔绰奢宅,三代同堂的进阶之选。
《项目概况》
开发商:深圳市俊弘星实业有限公司
项目位置:宝安区新安街道新安四路与建安一路交汇处
总占地:约1.4万㎡
总建面:约10.41万㎡
可售套数 :379
推售面积段:83-90㎡3房(745万-858万);128-133㎡4房(1160万- 1245万)
梯户比:A-C座2梯4户,D座2梯5户
容积率:5.04
车位数:714
物业公司:中熙物业
物业费:住宅6.00元/平方米·月
产权年限:70年 (2018年-2088年)
交楼标准:精装交付

折后总价:单价7.8-9万
88-90㎡3房2卫660-793万 单价7.8-8.8万
129-132㎡4房2卫1050-1161万 单价8.4-9万
项目配套
商业:全市最密集商圈,满足不同人群生活需求全深圳密度最高的商圈,其中2个高端购物中心壹方城、海雅缤纷城,驱车10分钟即达,楼下就有天虹、沃尔玛,满足日常购物逛街需求。

教育方面:家楼下两所双省一级学校,步行式上学
楼下就是两所省一级、历史悠久的学校(弘雅小学20年建校史、文汇学校30年建校史),弘雅小学是宝安区“窗口型艺术特色示范学校”,文汇学校升学率排名宝安区前列。
交通配套
北环大道、G107国道、宝安大道在侧,通达千万级湾区都市圈,自驾由广深公路行、宝安大道,可达福田、南山、宝安中心区。
毗邻双地铁,项目距今年将开通的12号线(上川站)500米,距规划中15号线(流塘站)仅700米。
通过地铁3站到宝中,6站到南山,10站可达福田。开车出行通过新安四路转宝安大道,107国道15分钟可到前海宝中,连接北环、滨海、深南,20分钟可达南山,30分钟可达福田。
生态配套
项目周边配备13大公园,流塘公园、宝安公园、碧海湾公园、西乡公园、灵芝公园、新安公园、滨海文化公园等,项目距离宝安公园直线距离仅1.5公里,距离流塘公园直线距离仅607米,出入公园环绕,宜居属性高。
医疗:
开车20分钟内可达宝安区人民医院,宝安区中医院,宝安区中心医院,宝安区妇幼保健院,宝安区中西结合医院。
区域优势:
占位前海黄金圈,圈定深圳一环
包含:2大CBD,深圳湾CBD和前海CBD;
三大总部基地:后海中心总部基地、留仙洞总部基地、深圳湾高新区总部基地;
两大交通枢纽中心,7条地铁线;
300家以上世界 500 强企业;
深圳最具实力企业和创富能力的人才以及最高价值的资产都在圈内
超千万旧改塑造全新城市面貌,引领片区价值跃升,区域内旧改体量超过1000万㎡,项目2km内汇聚8个旧改,焕新城市面貌。近5年新安房价涨幅高达111%,最具发展潜力的片区,前景十分可期
小区•品质


♬❄♬Vip贵宾置业==欢迎来电预约尊享内部折扣===匠心钜制恭迎品鉴♬❄♬温馨提示:网上展示中心〢欢迎来电咨询〢安全通话隐藏真实号码
声明:本文由入驻焦点开放平台的作者撰写,除焦点官方账号外,观点仅代表作者本人,不代表焦点立场。
